西池本田ビル(物件No:41584158)
西池本田ビルは、豊島区西池袋にある貸事務所物件です。最寄り駅は、JR線、東京メトロ丸ノ内線、東京メトロ有楽町線、東武東上線、東京メトロ副都心線、西武池袋線の池袋駅です。1988年竣工で、基準階が59.53坪の賃貸オフィスビルです。天高は2420mmで、床はOAフロアとなっております。空調は個別空調です。複数路線利用可能な、アクセスの良い豊島区西池袋の貸事務所です。
-
物件情報
-
設備情報
- トイレ
- 室外男女別
- 床
- フリーアクセス
- 空調
- 個別空調
- セキュリティ
- -
- 駐車場
- 無
- 会議室
- -
- エレベーター
- 1基
- 天井高
- 2390mm
-
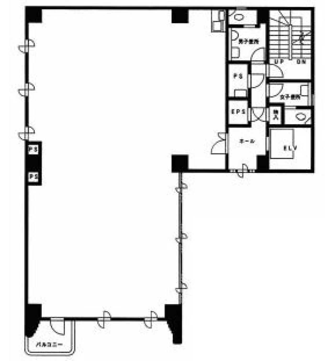
間取り図
-
近隣相場情報
西池袋3丁目(50~100坪)の相場
21371 円 (坪)
※ビルサク調べ
周辺施設情報
| コンビニ |
まいばすけっと/西池袋3丁目店/350m(徒歩4分) ローソン/Echika池袋/150m(徒歩3分) |
|---|---|
| 郵便局/銀行 |
りそな銀行/ATM 東武百貨店池袋店出張所/[営業時間]全日/5:00~24:00 ※毎月第二土曜日23:00~翌日8:00はご利用になれません/350m(徒歩5分) みずほ銀行/ATM 東武百貨店B1出張所/[営業時間]平日 5:00~25:00 土曜日 5:00~22:00 日曜日 8:00~21:00 祝日・振替休日 曜日に準ずる 備考 *月曜日の5:00~7:00はご利用いただけません。 *設置施設休業日はご利用いただけません。 *通帳はご利用いただけません。/400m(徒歩5分) |
| 飲食店 |
the BAR ACE/17時00分~2時00分/200m(徒歩2分) 卓尚記/12時00分~23時30分/140m(徒歩2分) |
| カフェ |
ヴィ・ド・フランス/池袋/[営業時間]7:00~21:00 [備考]Web予約受け取り/カフェスペース/フリー Wi-Fi/禁煙/300m(徒歩4分) キャピタルコーヒー/カフェ・キャピタル 東武池袋店/[営業時間]10:30~19:00(ラストオーダー 18:30) [備考]45席/350m(徒歩4分) |
| コインパーキング |
タイムズ/西池袋3丁目第2 [料金] [全日]通常料金 0:00~0:00 20分 440円 [最大料金] [全日]最大料金(繰り返し適用)20:00~8:00 最大料金550円 [台数]1台 SANパーク/西池袋 1 [料金] 8時~22時 15分200円 22時~8時 30分100円 [最大料金] 最大 夜間(22時~8時)最大1000円 [台数]車:7台 |
周辺地図
西池本田ビルは、豊島区西池袋にある貸事務所物件です。最寄り駅は、JR線、東京メトロ丸ノ内線、東京メトロ有楽町線、東武東上線、東京メトロ副都心線、西武池袋線の池袋駅です。1988年竣工で、基準階が59.53坪の賃貸オフィスビルです。天高は2420mmで、床はOAフロアとなっております。空調は個別空調です。複数路線利用可能な、アクセスの良い豊島区西池袋の貸事務所です。
全フロア情報
更新日:2025年10月31日
| 階 | 面積 | 賃料 | 共益費 | 敷金 | 入居日 | お問合せ | お気に入り | |
|---|---|---|---|---|---|---|---|---|
| 1F |
37.6 坪 124.3 ㎡ |
※現在空室情報はございません |
※現在空室情報は 確認する |
|||||
| 2F |
56.11 坪 185.49 ㎡ |
※現在空室情報はございません |
※現在空室情報は 確認する |
|||||
| 4F |
59.53 坪 196.79 ㎡ |
※現在空室情報はございません |
※現在空室情報は 確認する |
|||||
| 7F |
40.19 坪 132.86 ㎡ |
※現在空室情報はございません |
※現在空室情報は 確認する |
|||||
| 8F |
40.19 坪 132.86 ㎡ |
542,565 円 13,500 円(坪) |
140,665 円 3,500 円(坪) |
6,510,780 円 12 ヶ月 |
2026/04/01 |
|
|
|
お問い合わせ
似た条件の物件はこちら
-
池袋MIBビル
東京都豊島区池袋2-68-9
坪数:43.12 坪
坪単価:10,436 円(坪)
-
サンポウ池袋ビル
東京都豊島区池袋4-32-8
坪数:41.87 坪
坪単価:13,000 円(坪)
-
エキニア池袋
東京都豊島区西池袋1-17-10
坪数:55.34 坪
坪単価:27,000 円(坪)
-
K&Hビル
東京都豊島区西池袋3-30-4
坪数:57.32 坪
坪単価:14,000 円(坪)
-
いちご南池袋ビル
東京都豊島区南池袋2-27-17
坪数:41.32 坪
坪単価:21,500 円(坪)
-
山の手ビル東館
東京都豊島区南池袋1-19-12
坪数:60.07 坪
坪単価:18,000 円(坪)
-
太陽ビル
東京都豊島区東池袋1-19-10
坪数:52.64 坪
坪単価:28,495 円(坪)
-
南水ビル
東京都豊島区南池袋2-27-8
坪数:64.78 坪
坪単価:20,299 円(坪)
-
東都自動車ビルディング
東京都豊島区西池袋5-13-13
坪数:64.29 坪
坪単価:12,000 円(坪)
-
第5アムスビル
東京都豊島区東池袋1-15-10
坪数:67.56 坪
坪単価:37,004 円(坪)