いろいろ聞いてみる

上野の賃貸オフィス

美鈴ビル(物件No:41386198)

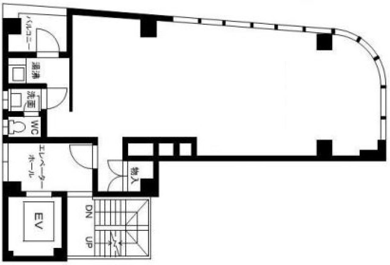
美鈴ビルは台東区上野にある地上8階建ての賃貸事務所です。最寄駅はJR線の御徒町駅から徒歩1分、東京メトロ日比谷線の仲御徒町駅から徒歩1分です。1987年3月竣工の鉄骨造です。設備としては、エレベーターが1基あります。空調は個別空調です。耐震設計となっている、最寄駅から近くて便利な台東区上野の賃貸オフィスです。

  • 美鈴ビル
  • 美鈴ビル
  • 美鈴ビル
  • 美鈴ビル
面積 賃料 共益費 敷金 入居日 お問合せ お気に入り
5F

21 坪

69.42 ㎡

※現在空室情報はございません

※現在空室情報は
ございません

最新情報を
確認する

周辺地図

美鈴ビルは台東区上野にある地上8階建ての賃貸事務所です。最寄駅はJR線の御徒町駅から徒歩1分、東京メトロ日比谷線の仲御徒町駅から徒歩1分です。1987年3月竣工の鉄骨造です。設備としては、エレベーターが1基あります。空調は個別空調です。耐震設計となっている、最寄駅から近くて便利な台東区上野の賃貸オフィスです。

全フロア情報

更新日:2025年10月29日

面積 賃料 共益費 敷金 入居日 お問合せ お気に入り
4F

21 坪

69.42 ㎡

※現在空室情報はございません

※現在空室情報は
ございません

最新情報を
確認する
5F

21 坪

69.42 ㎡

※現在空室情報はございません

※現在空室情報は
ございません

最新情報を
確認する
6F

21 坪

69.42 ㎡

※現在空室情報はございません

※現在空室情報は
ございません

最新情報を
確認する
7F

21 坪

69.43 ㎡

※現在空室情報はございません

※現在空室情報は
ございません

最新情報を
確認する

お問い合わせ

必須
必須
必須
必須
必須

似た条件の物件はこちら

関連エリアから探す

駅から探す

お問い合わせ

物件に関してのお問い合わせ

「失敗しないオフィス移転サポート」物件探しから移転までスムーズで担当者様がとにかく楽になるサービスです。

050-7587-0049平日 9:00~18:00

メールでお問い合わせ

フリーワード検索