フィールド北参道(物件No:41282015)
フィールド北参道は、渋谷区千駄ヶ谷にある貸事務所物件です。最寄駅は、東京メトロ副都心線北参道駅、JR、都営大江戸線駅代々木駅です。2008年竣工で、基準階が101.06坪の賃貸オフィスビルです。床はOAフロアで、天井の高さは2800mm。トイレは男女別で、空調は個別空調です。エレベーターは1基あり、駐車場が利用可能です。最寄駅から徒歩3分。複数路線利用可能で交通アクセスの良い、渋谷区千駄ヶ谷の貸事務所です。
-
物件情報
-
設備情報
- トイレ
- 男女別
- 床
- フリーアクセス
- 空調
- 個別空調
- セキュリティ
- 有
- 駐車場
- 有
- 会議室
- -
- エレベーター
- 1基
- 天井高
- 2800mm
-
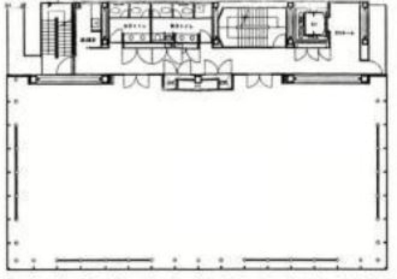
間取り図
-
近隣相場情報
千駄ヶ谷4丁目(100坪以上)の相場
25500 円 (坪)
※ビルサク調べ
周辺施設情報
| コンビニ |
ローソン/北参道駅前/50m セブンイレブン/渋谷千駄ヶ谷3丁目/550m(徒歩7分) |
|---|---|
| 郵便局/銀行 |
ローソン銀行/国立能楽堂前共同出張所/[営業時間]24時間 サービス提供時間は、設置先の営業時間に準じます(設置している店舗等の営業時間により、一部時間帯でご利用いただけない場合があります) [取扱]本人確認サービス対応、ATMチャージ/ATM払戻サービス、スマホATM(QR入出金)、海外発行カード/海外送金、視覚障害者対応 [備考]当/400m(徒歩6分) みずほ銀行/ATM ミニストップ千駄ヶ谷駅前店出張所/[営業時間] [ATM]平日 0:00~24:00 土曜日 0:00~22:00 日曜日 8:00~24:00 祝日・振替休日 曜日に準ずる/750m(徒歩10分) |
| 飲食店 |
北参道 hug /17時00分~0時00分/190m(徒歩2分) 向日葵/11時30分~14時00分/350m(徒歩5分) |
| カフェ |
樹安亭/8時00分~18時00分/450m(徒歩6分) チサ カフェ/11時00分~17時00分/400m(徒歩6分) |
| コインパーキング |
京王コインパーク/原宿 [料金] 8:00~24:00 10分/100円 24:00~8:00 60分/100円 [最大料金] 夜間(24:00~8:00)最大400円 ●営業時間:24時間営業・年中無休 ●2台 タイムズ/千駄ヶ谷4丁目第5 [料金] [月~金]通常料金 / 0:00~0:00 20分 330円 [土・日・祝]通常料金 / 0:00~0:00 20分 330円 [最大料金] [月~金]8:00~20:00 最大料金2400円 20:00~8:00 最大料金500円 [土・日・祝]8:00~20:00 最大料金1700円 20:00~8:00 最大料金500円 [台数]4 |
周辺地図
フィールド北参道は、渋谷区千駄ヶ谷にある貸事務所物件です。最寄駅は、東京メトロ副都心線北参道駅、JR、都営大江戸線駅代々木駅です。2008年竣工で、基準階が101.06坪の賃貸オフィスビルです。床はOAフロアで、天井の高さは2800mm。トイレは男女別で、空調は個別空調です。エレベーターは1基あり、駐車場が利用可能です。最寄駅から徒歩3分。複数路線利用可能で交通アクセスの良い、渋谷区千駄ヶ谷の貸事務所です。
全フロア情報
更新日:2025年12月1日
| 階 | 面積 | 賃料 | 共益費 | 敷金 | 入居日 | お問合せ | お気に入り | |
|---|---|---|---|---|---|---|---|---|
| 1F |
61.43 坪 203.07 ㎡ |
※現在空室情報はございません |
※現在空室情報は 確認する |
|||||
| 2F |
101.06 坪 334.08 ㎡ |
※現在空室情報はございません |
※現在空室情報は 確認する |
|||||
| 3F |
101.06 坪 334.08 ㎡ |
※現在空室情報はございません |
※現在空室情報は 確認する |
|||||
| 4F |
100.91 坪 333.59 ㎡ |
相談 |
込 |
12ヶ月 |
相談 |
|
|
|
|
4F
(A区画) |
50.53 坪 167.04 ㎡ |
※現在空室情報はございません |
※現在空室情報は 確認する |
|||||
|
4F
(B区画) |
50.53 坪 167.04 ㎡ |
※現在空室情報はございません |
※現在空室情報は 確認する |
|||||
| 6F |
101.06 坪 334.08 ㎡ |
※現在空室情報はございません |
※現在空室情報は 確認する |
|||||
お問い合わせ
似た条件の物件はこちら
-
千駄ヶ谷ESビル
東京都渋谷区千駄ヶ谷3-40-4
坪数:108.98 坪
坪単価:21,000 円(坪)
-
榊????原記念ビルディング
東京都渋谷区代々木2-5-4
坪数:86.52 坪
坪単価:34,000 円(坪)
-
セントヒルズ代々木内海ビル
東京都渋谷区代々木1-55-14
坪数:87.65 坪
坪単価:20,536 円(坪)
-
代々木センタービル
東京都渋谷区代々木1-57-1
坪数:83.92 坪
坪単価:24,000 円(坪)
-
MFビル
東京都渋谷区代々木1-6-12
坪数:91.2 坪
坪単価:25,000 円(坪)
-
代々木フォレストビル
東京都渋谷区千駄ヶ谷5-18-20
坪数:84.82 坪
坪単価:18,000 円(坪)
-
イワオアネックス新館
東京都渋谷区千駄ヶ谷5-8-10
坪数:106.5 坪
坪単価:15,000 円(坪)