カプリース青山(物件No:41188114)
カプリース青山は、港区北青山にある貸事務所物件です。最寄り駅は東京メトロ銀座線、半蔵門線の表参道駅、東京メトロ銀座線線の外苑前駅、東京メトロ副都心線の明治神宮前駅です。1974年竣工で、基準階が80.49坪の賃貸オフィスビルです。空調は個別空調です。駐車場があり、エレベーターは2基あります。複数路線利用可能な、アクセスの良い港区北青山の貸事務所です。
| 階 | 面積 | 賃料 | 共益費 | 敷金 | 入居日 | お問合せ | お気に入り | |
|---|---|---|---|---|---|---|---|---|
|
3F
(01+02区画) |
69.44 坪 229.55 ㎡ |
※現在空室情報はございません |
※現在空室情報は 確認する |
|||||
-
物件情報
-
設備情報
- トイレ
- 室内男女別
- 床
- -
- 空調
- -
- セキュリティ
- -
- 駐車場
- 有
- 会議室
- -
- エレベーター
- 2基
- 天井高
- -
-
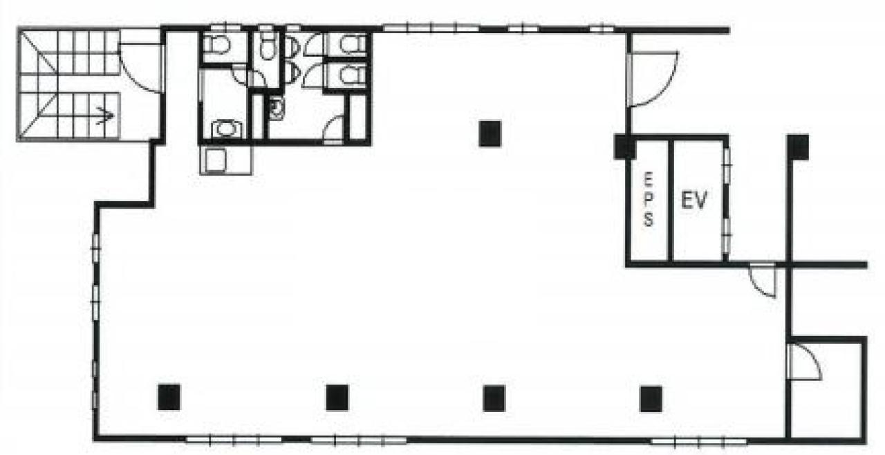
間取り図
-
近隣相場情報
北青山3丁目(50~100坪)の相場
24568 円 (坪)
※ビルサク調べ
周辺施設情報
| コンビニ |
ファミリーマート/青山オーバルビル店/190m(徒歩2分) ローソン/北青山三丁目/180m(徒歩2分) |
|---|---|
| 郵便局/銀行 |
三井住友銀行/ATM 青山共同出張所/[営業時間]平日 0:00~24:00 土曜日 0:00~23:50 日・祝日 4:00~21:00/74m(徒歩1分) 郵便局/ATM ファミリーマート青山オーバルビル店内出張所/[ATM]平日0:05~23:55、土曜0:05~23:55、日曜0:05~23:55/190m(徒歩2分) |
| 飲食店 |
青山もくち/17時00分~23時00分/35m(徒歩1分) ハブモアカレー/11時30分~20時30分/41m(徒歩1分) |
| カフェ |
プロント/青山店/[営業時間]平日:カフェ 7:00~17:30 バー 17:30~23:00 土曜:カフェ 8:00~17:30 バー 17:30~23:00 日曜:カフェ 8:00~17:30 バー 17:30~22:30 祝日:カフェ 8:00~17:30 バー 17:30~22:30 [休業日]無休 [備考]108席/分煙/3m(徒歩1分) CARAVAN COFFEE/紀ノ国屋 バールイルプリマリオ/[営業時間]9:30 - 21:00/80m(徒歩1分) |
| コインパーキング |
タイムズ駐車場/北青山AO [料金] [月~金]通常料金 / 08:00-23:30 30分 400円 23:30-08:00 30分 400円 [土・日・祝]通常料金 / 08:00-23:30 30分 400円 23:30-08:00 30分 400円 [最大料金] [月~金]08:00-23:30 最大料金2400円 [台数]88 三井のリパーク/北青山3丁目第2 [料金] 全日 08:00~00:00 20分/500円 全日 00:00~08:00 60分/200円 [台数]11 |
周辺地図
カプリース青山は、港区北青山にある貸事務所物件です。最寄り駅は東京メトロ銀座線、半蔵門線の表参道駅、東京メトロ銀座線線の外苑前駅、東京メトロ副都心線の明治神宮前駅です。1974年竣工で、基準階が80.49坪の賃貸オフィスビルです。空調は個別空調です。駐車場があり、エレベーターは2基あります。複数路線利用可能な、アクセスの良い港区北青山の貸事務所です。
全フロア情報
更新日:2025年10月27日
| 階 | 面積 | 賃料 | 共益費 | 敷金 | 入居日 | お問合せ | お気に入り | |
|---|---|---|---|---|---|---|---|---|
|
2F
(201区画) |
18.5 坪 61.16 ㎡ |
※現在空室情報はございません |
※現在空室情報は 確認する |
|||||
|
3F
(01+02区画) |
69.44 坪 229.55 ㎡ |
※現在空室情報はございません |
※現在空室情報は 確認する |
|||||
|
3F
(303区画) |
22.75 坪 75.21 ㎡ |
※現在空室情報はございません |
※現在空室情報は 確認する |
|||||
|
4F
(405区画) |
6.44 坪 21.29 ㎡ |
※現在空室情報はございません |
※現在空室情報は 確認する |
|||||
|
4F
(407区画) |
7.8 坪 25.79 ㎡ |
※現在空室情報はございません |
※現在空室情報は 確認する |
|||||
|
5F
(504区画) |
6.44 坪 21.29 ㎡ |
※現在空室情報はございません |
※現在空室情報は 確認する |
|||||
|
6F
(604区画) |
6.44 坪 21.29 ㎡ |
※現在空室情報はございません |
※現在空室情報は 確認する |
|||||
|
6F
(608区画) |
7.64 坪 25.26 ㎡ |
※現在空室情報はございません |
※現在空室情報は 確認する |
|||||
|
7F
(707区画) |
7.8 坪 25.79 ㎡ |
※現在空室情報はございません |
※現在空室情報は 確認する |
|||||
|
8F
(802区画) |
6.44 坪 21.29 ㎡ |
※現在空室情報はございません |
※現在空室情報は 確認する |
|||||
|
9F
(902区画) |
6.44 坪 21.29 ㎡ |
※現在空室情報はございません |
※現在空室情報は 確認する |
|||||
お問い合わせ
似た条件の物件はこちら
-
NH青山ビル
東京都港区北青山3-2-5
坪数:67.1 坪
坪単価:22,000 円(坪)
-
GOODWILL青山
東京都港区南青山2-4-16
坪数:59.42 坪
坪単価:23,000 円(坪)
-
リビエラ南青山ビル
東京都港区南青山3-3-3
坪数:67.32 坪
坪単価:30,000 円(坪)
-
神宮外苑ビル
東京都港区北青山2-7-25
坪数:73.69 坪
坪単価:19,000 円(坪)
-
青山SGKビル
東京都港区南青山2-7-6
坪数:57.63 坪
坪単価:16,500 円(坪)
-
青山サンライトビル
東京都港区南青山6-5-55
坪数:83.77 坪
坪単価:20,000 円(坪)
-
Victory Aoyama
東京都港区南青山6-8-11
坪数:71.67 坪
坪単価:36,000 円(坪)