代々木モダンビル(物件No:32122026)
代々木モダンビルは渋谷区代々木にある地上8階建ての賃貸事務所です。最寄駅はJR線の代々木駅から徒歩1分、都営大江戸線の代々木駅から徒歩1分です。1988年4月竣工の鉄骨造です。設備としては、エレベーターが1基あります。空調は個別空調です。耐震設計となっている、最寄駅から近くて便利な渋谷区代々木の賃貸オフィスです。
-
物件情報
-
設備情報
- トイレ
- 室内男女別
- 床
- -
- 空調
- 個別空調
- セキュリティ
- -
- 駐車場
- -
- 会議室
- -
- エレベーター
- 1基
- 天井高
- -
-
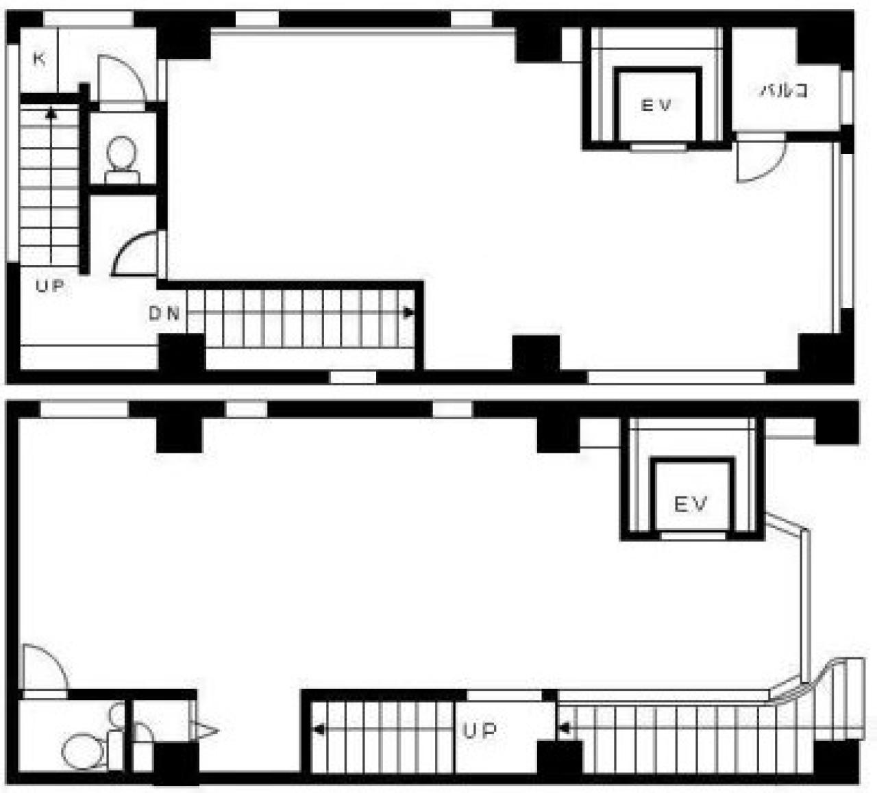
間取り図
-
近隣相場情報
代々木1丁目(20~30坪)の相場
22350 円 (坪)
※ビルサク調べ
周辺施設情報
| コンビニ |
ファミリーマート/南新宿駅前店/350m(徒歩4分) NewDays/代々木/100m(徒歩1分) |
|---|---|
| 郵便局/銀行 |
ビューアルッテ/JR代々木駅北口券売機横/[営業時間]全日/4:55~24:55※毎月第二土曜日23:00~翌日8:00はご利用になれません。※駅や店舗の営業時間により、ATM営業時間が変更となる場合があります [取扱]お引出し・残高照会のみ/100m(徒歩1分) イーネット/ファミリーマート代々木東口/[営業時間]0:00~24:00/250m(徒歩3分) |
| 飲食店 |
ごちとん 代々木本店/11時00分~22時30分/180m(徒歩2分) えび豚骨拉麺 春樹 代々木店/11時00分~23時00分/68m(徒歩1分) |
| カフェ |
星乃珈琲店/代々木店/[営業時間]平日8:00~22:00(LO 21:15)土日祝9:00~21:00(LO 20:15)モーニング Open~11:00 ランチ(平日)11:00~14:00 [備考]禁煙(喫煙ブースあり)/100m(徒歩1分) タリーズ/代々木駅北口店/[営業時間]平日:7:00~21:00(L.O.20:45)土:8:00~20:00(L.O.19:45)日祝:9:00~20:00(L.O.19:45) [備考]Tully's Wi-Fi、加熱式たばこ専用室あり(飲食可)/100m(徒歩1分) |
| コインパーキング |
NTTル・パルク/代々木駅前第1 [料金] 7:00~23:00 20分 300円 [最大料金] 当日7:00~23:00 2,200円(1回限り) [台数]:46台 ユアーズ・パーキング/代々木第1 [料金] 8時~22時 20分/100円 22時~8時 60分/100円 [最大料金] 昼最大料金1800円 夜最大料金500円 [台数]5台 |
周辺地図
代々木モダンビルは渋谷区代々木にある地上8階建ての賃貸事務所です。最寄駅はJR線の代々木駅から徒歩1分、都営大江戸線の代々木駅から徒歩1分です。1988年4月竣工の鉄骨造です。設備としては、エレベーターが1基あります。空調は個別空調です。耐震設計となっている、最寄駅から近くて便利な渋谷区代々木の賃貸オフィスです。
全フロア情報
更新日:2025年11月5日
| 階 | 面積 | 賃料 | 共益費 | 敷金 | 入居日 | お問合せ | お気に入り | |
|---|---|---|---|---|---|---|---|---|
| 2-3F |
24.5 坪 80.99 ㎡ |
※現在空室情報はございません |
※現在空室情報は 確認する |
|||||
| 6F |
13 坪 42.98 ㎡ |
※現在空室情報はございません |
※現在空室情報は 確認する |
|||||
お問い合わせ
似た条件の物件はこちら
-
VORT代々木
東京都渋谷区千駄ヶ谷5-15-6
坪数:23.67 坪
坪単価:21,000 円(坪)
-
羽田ビル
東京都渋谷区代々木2-5-1
坪数:23.56 坪
坪単価:22,037 円(坪)
-
メゾン・ドゥ・ボナール
東京都渋谷区千駄ヶ谷4-22-4
坪数:28.89 坪
坪単価:12,461 円(坪)
-
代々木オーシャンビル
東京都渋谷区代々木3-35-10
坪数:22.72 坪
坪単価:15,405 円(坪)
-
アカデミービル
東京都渋谷区千駄ヶ谷3-7-4
坪数:21.24 坪
坪単価:16,992 円(坪)
-
ザ・シーザープレイス代々木
東京都渋谷区代々木1-51-7
坪数:22.54 坪
坪単価:24,179 円(坪)
-
エディフィス代々木
東京都渋谷区代々木2-22-1
坪数:22.77 坪
坪単価:13,175 円(坪)
-
新代々木ビル
東京都渋谷区代々木1-19-12
坪数:22 坪
坪単価:16,000 円(坪)
-
アイワハウス
東京都渋谷区千駄ヶ谷2-2-4
坪数:22.8 坪
坪単価:23,923 円(坪)
-
日綜代々木ビル
東京都渋谷区代々木1-31-12
坪数:28.8 坪
坪単価:24,306 円(坪)