ymビル(物件No:31884046)
ヤマベビルは、渋谷区恵比寿にある貸事務所物件です。最寄り駅は、恵比寿駅、JR線の恵比寿駅、東京メトロ日比谷線の広尾駅です。1997年竣工で、基準階が33.02坪の賃貸オフィスビルです。天高は2500mmで、床はOAフロアとなっております。空調は個別空調で、トイレは男女別です。機械警備で、エレベーターは1基あります。恵比寿駅から徒歩3分と、アクセスの良い渋谷区恵比寿の貸事務所です。
-
物件情報
-
設備情報
- トイレ
- 男女別
- 床
- フリーアクセス
- 空調
- 個別空調
- セキュリティ
- 有
- 駐車場
- -
- 会議室
- -
- エレベーター
- 1基
- 天井高
- 2500mm
-
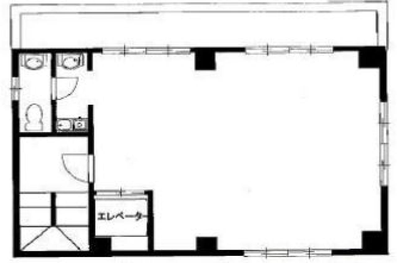
間取り図
-
近隣相場情報
恵比寿1丁目(20~30坪)の相場
23550 円 (坪)
※ビルサク調べ
周辺施設情報
| コンビニ |
ローソン/恵比寿三丁目/270m(徒歩4分) ファミリーマート/恵比寿銀座通り店/600m(徒歩8分) |
|---|---|
| 郵便局/銀行 |
ゆうちょ/渋谷恵比寿郵便局/[営業時間] [窓口]平日 9:00~16:00 土曜日 - 日曜日・休日 - [ATM]平日 9:00~19:00 土曜日 9:00~17:00 日曜日・休日 9:00~17:00 [駐車場]なし [取扱]郵便/貯金/保険/ATM [備考]※新型コロナウイルスに感染した社員が発生した場合、窓口業務/250m(徒歩3分) ビューアルッテ/JR恵比寿駅西口/[営業時間]全日/4:35~25:10※毎月第二土曜日23:00~翌日8:00はご利用になれません。※駅や店舗の営業時間により、ATM営業時間が変更となる場合があります [取扱]お引出し・残高照会のみ/450m(徒歩6分) |
| 飲食店 |
Bar MARTHA/19時00分~3時00分/220m(徒歩3分) ラオン/17時00分~1時00分/220m(徒歩3分) |
| カフェ |
プロント/恵比寿東口店/[営業時間]平日:カフェ 7:00~20:00 土曜:カフェ 9:00~18:00 日曜:カフェ 9:00~18:00 祝日:カフェ 9:00~18:00 [休業日]無休 [備考]66席/分煙(禁煙席/加熱式たばこ専用席)/270m(徒歩4分) 猿田彦珈琲/別館 豆屋/[営業時間]12:00~19:30/350m(徒歩4分) |
| コインパーキング |
タイムズ/JR恵比寿ビル(立体) [料金] [全日]6:30~23:30 30分 450円 [全日]23:30~6:30 30分 450円 [最大料金] [全日]駐車後24時間 最大料金2700円 [台数]139 コインパーク/恵比寿1丁目 [料金] 【全日】■通常料金【オールタイム(24時間)】12分/400円 [最大料金] 【全日】■最大料金【0:00~8:00】800円 [台数] [車: 5台] |
周辺地図
ヤマベビルは、渋谷区恵比寿にある貸事務所物件です。最寄り駅は、恵比寿駅、JR線の恵比寿駅、東京メトロ日比谷線の広尾駅です。1997年竣工で、基準階が33.02坪の賃貸オフィスビルです。天高は2500mmで、床はOAフロアとなっております。空調は個別空調で、トイレは男女別です。機械警備で、エレベーターは1基あります。恵比寿駅から徒歩3分と、アクセスの良い渋谷区恵比寿の貸事務所です。
全フロア情報
更新日:2025年12月4日
| 階 | 面積 | 賃料 | 共益費 | 敷金 | 入居日 | お問合せ | お気に入り | |
|---|---|---|---|---|---|---|---|---|
| 1F |
11.22 坪 37.09 ㎡ |
※現在空室情報はございません |
※現在空室情報は 確認する |
|||||
| 4F |
33.02 坪 109.16 ㎡ |
※現在空室情報はございません |
※現在空室情報は 確認する |
|||||
| 5F |
26.47 坪 87.5 ㎡ |
460,000 円 17,378 円(坪) |
無 |
2,300,000 円 5 ヶ月 |
即日 |
|
|
|
| 6F |
20.74 坪 68.56 ㎡ |
※現在空室情報はございません |
※現在空室情報は 確認する |
|||||
お問い合わせ
似た条件の物件はこちら
-
プラザ恵比寿南
東京都渋谷区恵比寿南2-8-3
坪数:21.02 坪
坪単価:26,641 円(坪)
-
コマンドプロンプト広尾
東京都渋谷区広尾5-17-9
坪数:23.65 坪
坪単価:36,490 円(坪)
-
ウインズビル
東京都渋谷区恵比寿西2-7-2
坪数:19.81 坪
坪単価:18,021 円(坪)
-
プロフィットマート代官山
東京都渋谷区恵比寿西2-6-2
坪数:18.73 坪
坪単価:16,000 円(坪)
-
ミツワマンション
東京都渋谷区恵比寿西2-1-7
坪数:15.72 坪
坪単価:19,084 円(坪)
-
デリス第2ビル
東京都渋谷区恵比寿1-16-29
坪数:20.01 坪
坪単価:19,490 円(坪)
-
代官山コーポラス
東京都渋谷区猿楽町12-1
坪数:20.89 坪
坪単価:15,231 円(坪)
-
レジデンス広尾
東京都渋谷区広尾3-5-27
坪数:22.54 坪
坪単価:16,327 円(坪)
-
代官山エーデルハイム
東京都渋谷区代官山町3-13
坪数:16.13 坪
坪単価:14,259 円(坪)
-
恵比寿ネオナートアネックス
東京都渋谷区恵比寿4-1-22
坪数:23.11 坪
坪単価:25,000 円(坪)