MOMON六本木ビル(物件No:31687155)
MOMON六本木ビルは、港区元麻布にある地上6階建ての賃貸事務所です。最寄駅は東京メトロ日比谷線の広尾駅から徒歩12分、都営大江戸線の六本木駅から徒歩8分、東京メトロ日比谷線の六本木駅から徒歩8分、東京メトロ南北線の麻布十番駅から徒歩12分です。1988年5月竣工の基準階面積が71.87坪の鉄骨鉄筋コンクリート造です。設備としては、エレベーターが1基あり、駐車場もあります。セキュリティは機械警備です。トイレは室外男女別です。空調は個別空調です。天高は2400mmです。耐震設計となっている、複数駅利用可能なアクセスの良い港区元麻布の賃貸オフィスです。
-
物件情報
-
設備情報
- トイレ
- 室外男女別
- 床
- -
- 空調
- 個別空調
- セキュリティ
- 有
- 駐車場
- 有
- 会議室
- -
- エレベーター
- 1基
- 天井高
- 2400mm
-
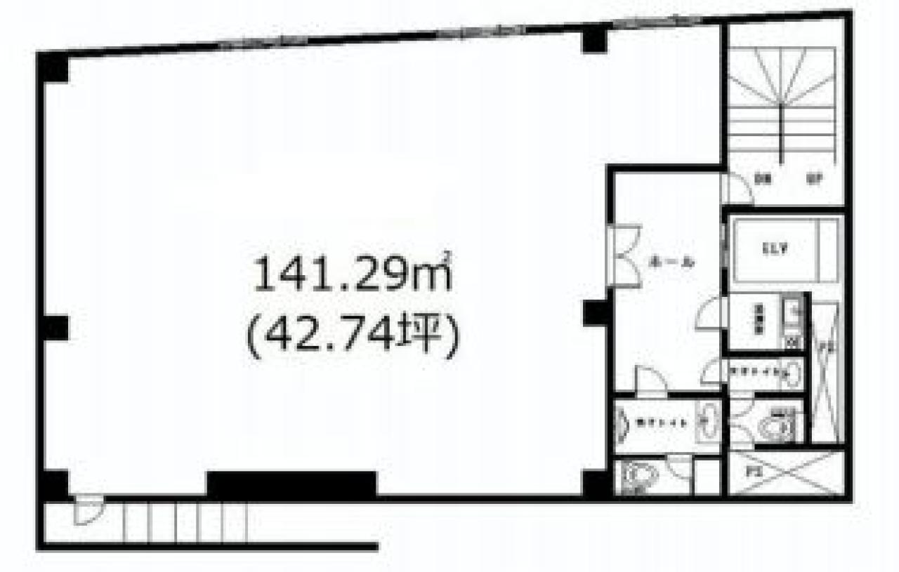
間取り図
-
近隣相場情報
元麻布3丁目(40~50坪)の相場
調査中
周辺施設情報
| コンビニ |
ファミリーマート/六本木テレ朝通り店/140m(徒歩2分) ローソン100/元麻布/85m(徒歩1分) |
|---|---|
| 郵便局/銀行 |
郵便局/ATM ファミリーマート六本木テレ朝通り店内出張所/[ATM]平日0:05~23:55、土曜0:05~23:55、日曜0:05~23:55/140m(徒歩2分) みずほ銀行/ATM リンコス六本木ヒルズ店出張所/[営業時間]ATM 平日 /Monday - Friday 0:00~24:00 土曜日/Saturday 0:00~22:00 日曜日/Sunday 8:00~24:00 祝日・振替休日 /Public Holidays 曜日に準ずる 備考 通帳繰越機 設置なし/700m(徒歩8分) |
| 飲食店 |
ASIAN DINING&BAR ガネーシャ/11時00分~22時00分/48m(徒歩1分) HONA azabu/18時00分~0時00分/57m(徒歩1分) |
| カフェ |
ANTICO CAFFE/六本木ヒルズ店/[営業時間]7:00~23:00(土・日・祝9:00~22:00)/550m(徒歩7分) ショートリンクサーキット/[火~金]/18:00~24:00/[土・日・祝]/13:00~24:00/400m(徒歩5分) |
| コインパーキング |
PEN/港区西麻布3丁目パ-キング [料金] 全日【通常】8:00~22:00 15分 200円 全日【通常】22:00~8:00 60分 100円 [最大料金] 全日【最大】12時間最大2600円(一回限り) [台数]10台 タイムズ駐車場/西麻布3丁目第2 [料金] [全日]00:00-00:00 30分 500円 [最大料金] [全日]駐車後6時間 最大料金2000円 [台数]2 |
周辺地図
MOMON六本木ビルは、港区元麻布にある地上6階建ての賃貸事務所です。最寄駅は東京メトロ日比谷線の広尾駅から徒歩12分、都営大江戸線の六本木駅から徒歩8分、東京メトロ日比谷線の六本木駅から徒歩8分、東京メトロ南北線の麻布十番駅から徒歩12分です。1988年5月竣工の基準階面積が71.87坪の鉄骨鉄筋コンクリート造です。設備としては、エレベーターが1基あり、駐車場もあります。セキュリティは機械警備です。トイレは室外男女別です。空調は個別空調です。天高は2400mmです。耐震設計となっている、複数駅利用可能なアクセスの良い港区元麻布の賃貸オフィスです。
全フロア情報
更新日:2025年10月24日
| 階 | 面積 | 賃料 | 共益費 | 敷金 | 入居日 | お問合せ | お気に入り | |
|---|---|---|---|---|---|---|---|---|
|
3F
(1区画) |
71.87 坪 237.59 ㎡ |
※現在空室情報はございません |
※現在空室情報は 確認する |
|||||
|
5F
(1区画) |
47.64 坪 157.49 ㎡ |
※現在空室情報はございません |
※現在空室情報は 確認する |
|||||
|
6F
(1区画) |
42.74 坪 141.29 ㎡ |
※現在空室情報はございません |
※現在空室情報は 確認する |
|||||
お問い合わせ
似た条件の物件はこちら
-
Dear西麻布
東京都港区西麻布3-1-20
坪数:34.8 坪
坪単価:26,149 円(坪)
-
NS麻布十番ビル
東京都港区麻布十番3-6-2
坪数:35.01 坪
坪単価:22,000 円(坪)
-
大昌第2ビル
東京都港区六本木5-18-2
坪数:50.5 坪
坪単価:18,000 円(坪)
-
井門西麻布ビル
東京都港区西麻布1-14-1
坪数:35.2 坪
坪単価:17,000 円(坪)
-
秀和六本木レジデンス
東京都港区六本木7-17-22
坪数:38.61 坪
坪単価:23,310 円(坪)
-
ラベイユ麻布十番
東京都港区麻布十番2-8-6
坪数:32.03 坪
坪単価:30,000 円(坪)
-
ほうらいやビル
東京都港区六本木5-2-1
坪数:33 坪
坪単価:21,212 円(坪)
-
宮下ビル
東京都港区麻布十番1-7-8
坪数:50.52 坪
坪単価:11,876 円(坪)
-
福吉町ビル
東京都港区六本木2-2-6
坪数:45.76 坪
坪単価:14,113 円(坪)
-
マルマン六本木ビル
東京都港区六本木3-4-33
坪数:41.03 坪
坪単価:22,750 円(坪)