玉家ビル(物件No:31682144)
玉家ビルは、港区芝大門にある貸事務所物件です。最寄り駅は都営三田線御成門駅、大江戸線、浅草線大門駅、JR浜松町駅です。1990年竣工で基準階が27.90坪の賃貸オフィスビルです。床はタイルカーペットで、天井の高さは2360mm。空調は個別空調です。エレベーターは1基あり、セキュリティは機械警備となっています。複数路線利用可能で交通アクセスの良い、港区芝大門の貸事務所です。
-
物件情報
-
設備情報
- トイレ
- 室外
- 床
- タイルカーペット
- 空調
- 個別空調
- セキュリティ
- 有
- 駐車場
- 無
- 会議室
- -
- エレベーター
- 1基
- 天井高
- 2360mm
-
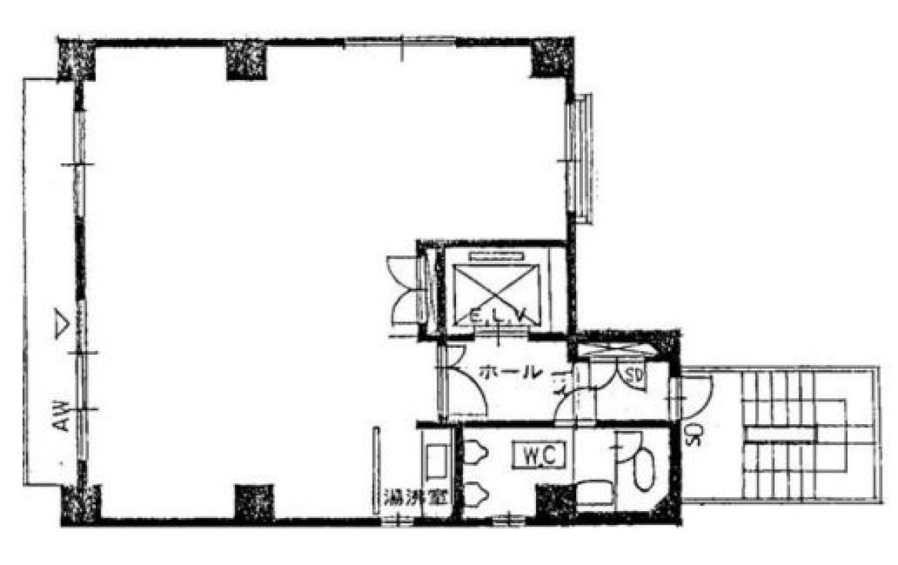
間取り図
-
近隣相場情報
芝大門1丁目(20~30坪)の相場
16764 円 (坪)
※ビルサク調べ
周辺施設情報
| コンビニ |
ファミリーマート/名鉄イン浜松町店/250m(徒歩3分) ローソン/ナチュラル 芝大門一丁目/150m(徒歩2分) |
|---|---|
| 郵便局/銀行 |
東日本銀行/浜松町支店/[営業時間]平日 9:00~15:00 [ATM]平日 8:00~21:00 土曜 8:00~21:00 日祝 8:00~21:00 当座預金へのご入金は平日15:00までです。 硬貨のご入金は平日17:00までです。/200m(徒歩2分) 郵便局/ATM ファミリーマート芝公園一丁目店内出張所/[ATM]平日0:05~23:55、土曜0:05~23:55、日曜0:05~23:55/270m(徒歩3分) |
| 飲食店 |
串料理 ふくでん/11時30分~14時30分、17時00分~0時00分/120m(徒歩1分) 鶏繁 芝大門店 はなれ/17時00分~23時00分/30m(徒歩1分) |
| カフェ |
プロント/ウインズ汐留店/[営業時間]平日:カフェ 7:30~17:30 バー 17:30~22:00 土曜:カフェ 8:00~18:00 日祝:カフェ 8:00~18:00 [休業日]不定休 [備考]80席/空間分煙※一部の時間帯のみ/600m(徒歩7分) 珈琲社中/7時00分~20時00分/140m(徒歩2分) |
| コインパーキング |
タイムズ駐車場/芝大門第7 [料金] [月~土]通常料金 / 08:00-22:00 15分 400円 22:00-08:00 60分 100円 [日・祝]08:00-22:00 15分 400円 22:00-08:00 60分 100円 [最大料金] [日・祝]当日1日最大料金2000円(24時迄) [台数]3 NTTル・パルク/清和芝パークホテル別館地下 [料金] オールタイム 20分 200円 [最大料金] 駐車後24時間毎 3,200円(繰返しOK) [台数]:19台 |
周辺地図
玉家ビルは、港区芝大門にある貸事務所物件です。最寄り駅は都営三田線御成門駅、大江戸線、浅草線大門駅、JR浜松町駅です。1990年竣工で基準階が27.90坪の賃貸オフィスビルです。床はタイルカーペットで、天井の高さは2360mm。空調は個別空調です。エレベーターは1基あり、セキュリティは機械警備となっています。複数路線利用可能で交通アクセスの良い、港区芝大門の貸事務所です。
全フロア情報
更新日:2025年12月9日
| 階 | 面積 | 賃料 | 共益費 | 敷金 | 入居日 | お問合せ | お気に入り | |
|---|---|---|---|---|---|---|---|---|
| 4F |
27.9 坪 92.23 ㎡ |
※現在空室情報はございません |
※現在空室情報は 確認する |
|||||
| 4-5F |
52.73 坪 174.31 ㎡ |
※現在空室情報はございません |
※現在空室情報は 確認する |
|||||
| 5F |
24.83 坪 82.08 ㎡ |
360,000 円 14,499 円(坪) |
込 |
2,160,000 円 6 ヶ月 |
2026/1 |
|
|
|
| 6F |
20.24 坪 66.91 ㎡ |
※現在空室情報はございません |
※現在空室情報は 確認する |
|||||
お問い合わせ
似た条件の物件はこちら
-
マリンクス・タワー
東京都港区海岸1-9-11
坪数:17.73 坪
坪単価:16,000 円(坪)
-
武藤ビル
東京都港区芝浦3-11-9
坪数:21.35 坪
坪単価:12,000 円(坪)
-
芝サニーハイツ
東京都港区芝5-27-4
坪数:17.28 坪
坪単価:11,574 円(坪)
-
グランディックビル
東京都港区芝5-14-14
坪数:16.5 坪
坪単価:18,182 円(坪)
-
My Maison
東京都港区芝3-16-9
坪数:15.13 坪
坪単価:16,530 円(坪)
-
山口ビル
東京都港区芝公園1-7-7
坪数:22 坪
坪単価:11,364 円(坪)
-
YKホープ芝大門
東京都港区芝大門1-3-9
坪数:15.56 坪
坪単価:12,211 円(坪)
-
EARTH SHIBA BLD
東京都港区芝2-10-6
坪数:22.47 坪
坪単価:29,000 円(坪)
-
星野ビル
東京都港区浜松町1-15-6
坪数:15 坪
坪単価:12,000 円(坪)
-
奥山ビル
東京都港区芝5-20-10
坪数:23.74 坪
坪単価:12,637 円(坪)