浜松町ゼネラルビル(物件No:31586165)
浜松町ゼネラルビルは、港区浜松町にある貸事務所物件です。最寄り駅はJR浜松町駅、都営大江戸線、浅草線大門駅です。1987年竣工の賃貸オフィスビルです。床はOAフロアとなっています。トイレは男女別で、空調は個別空調です。エレベーターは1基あり、セキュリティは機械警備となっています。複数路線利用可能で交通アクセスの良い、港区浜松町の貸事務所です。
| 階 | 面積 | 賃料 | 共益費 | 敷金 | 入居日 | お問合せ | お気に入り |
|---|---|---|---|---|---|---|---|
| 9F |
35.94 坪 118.81 ㎡ |
449,250 円 12,500 円(坪) |
125,790 円 3,500 円(坪) |
2,695,500 円 6 ヶ月 |
2026/02 |
|
|
| 階 | 面積 | 賃料 | 共益費 | 敷金 | 入居日 | お問合せ | お気に入り |
|---|---|---|---|---|---|---|---|
| 9F |
35.94 坪 118.81 ㎡ |
449,250 円 12,500 円(坪) |
125,790 円 3,500 円(坪) |
2,695,500 円 6 ヶ月 |
2026/02 |
|
|
-
物件情報
-
設備情報
- トイレ
- 室内男女別
- 床
- -
- 空調
- -
- セキュリティ
- 有
- 駐車場
- -
- 会議室
- -
- エレベーター
- 1基
- 天井高
- -
-
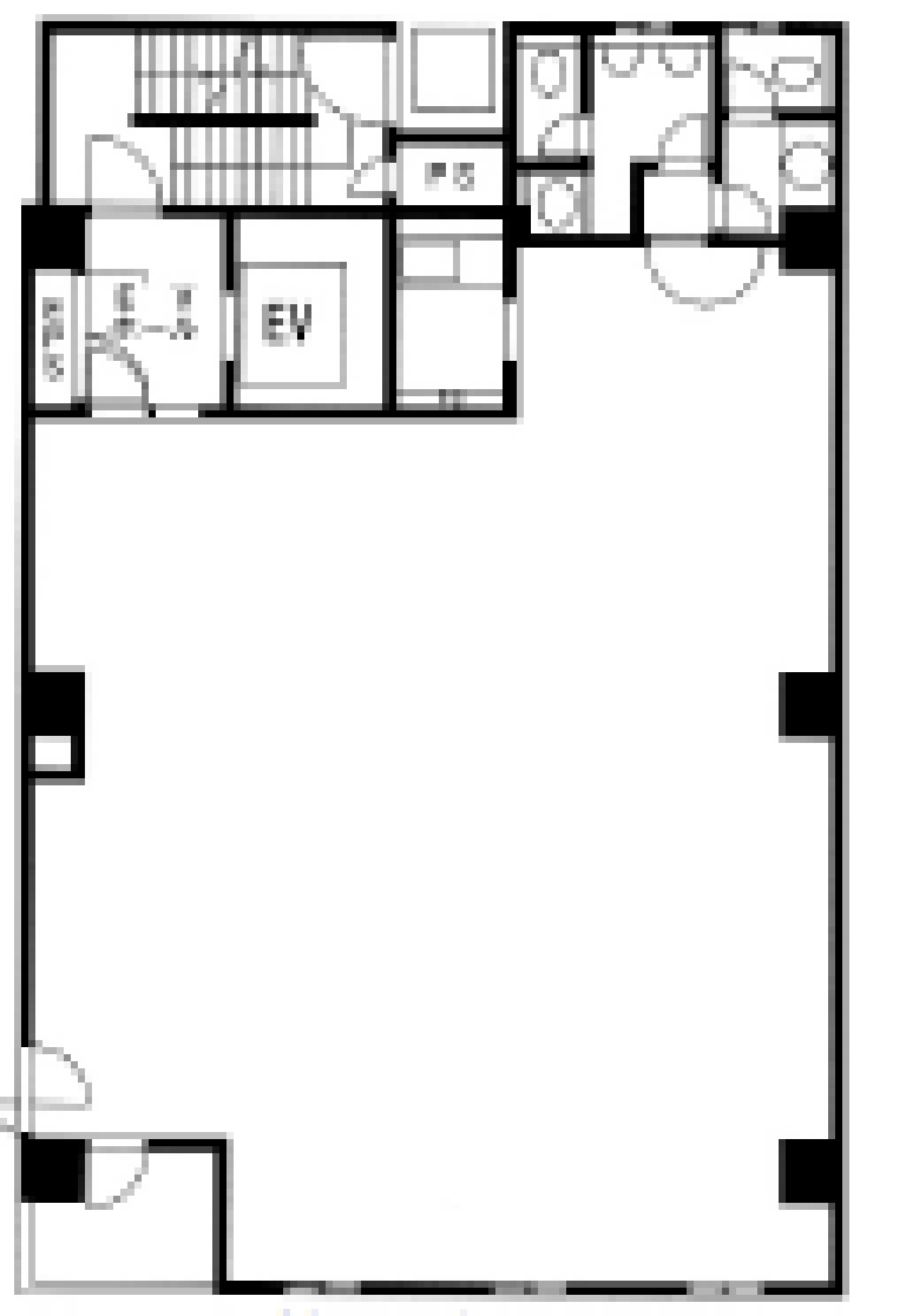
間取り図
-
近隣相場情報
浜松町2丁目(30~40坪)の相場
21000 円 (坪)
※ビルサク調べ
周辺施設情報
| コンビニ |
セブンイレブン/芝大門2丁目/160m(徒歩3分) ファミリーマート/HPS浜松町モノレール店/350m(徒歩4分) |
|---|---|
| 郵便局/銀行 |
ローソン銀行/文化放送メディアプラス共同出張所/[営業時間]24時間 [取扱]海外発行カード対応、視覚障害者対応 [備考]ご利用可能な金融機関 当店のATM管理はローソン銀行です/400m(徒歩5分) 三菱UFJ銀行/ATM 浜松町駅/[営業時間] [ATM]平日 7:00~24:00 土曜日 7:00~24:00 日・祝日 7:00~24:00 *毎月第2土曜日の21:00~翌朝7:00はご利用いただけません/350m(徒歩4分) |
| 飲食店 |
但馬屋 浜松町大門店/16時00分~0時00分/200m(徒歩3分) 焼肉うし雅/11時30分~14時00分、17時00分~23時30分/11m(徒歩1分) |
| カフェ |
五番館/11時00分~19時00分/300m(徒歩4分) ドトール/浜松町2丁目店/[営業時間]平日:6:30~20:00 土曜日:7:30~18:30 日 祝:7:30~18:30 [休業日]なし [備考]総席数:64 禁煙席:30 喫煙席:34/110m(徒歩1分) |
| コインパーキング |
公社駐車場/芝大門二丁目 [料金] 30分400円(8:00~22:00) 60分100円(22:00~8:00) [最大料金] 夜間最大500円 [台数]2台 タイムズ駐車場/芝大門第8 [料金] [全日]00:00-00:00 15分 400円 [最大料金] [全日]駐車後5時間 最大料金3200円 [台数]9 |
周辺地図
浜松町ゼネラルビルは、港区浜松町にある貸事務所物件です。最寄り駅はJR浜松町駅、都営大江戸線、浅草線大門駅です。1987年竣工の賃貸オフィスビルです。床はOAフロアとなっています。トイレは男女別で、空調は個別空調です。エレベーターは1基あり、セキュリティは機械警備となっています。複数路線利用可能で交通アクセスの良い、港区浜松町の貸事務所です。
全フロア情報
更新日:2025年11月17日
| 階 | 面積 | 賃料 | 共益費 | 敷金 | 入居日 | お問合せ | お気に入り | |
|---|---|---|---|---|---|---|---|---|
| 1F |
25.83 坪 85.39 ㎡ |
※現在空室情報はございません |
※現在空室情報は 確認する |
|||||
| 2F |
35.94 坪 118.81 ㎡ |
※現在空室情報はございません |
※現在空室情報は 確認する |
|||||
| 3F |
35.94 坪 118.81 ㎡ |
※現在空室情報はございません |
※現在空室情報は 確認する |
|||||
| 4F |
35.94 坪 118.81 ㎡ |
※現在空室情報はございません |
※現在空室情報は 確認する |
|||||
| 5F |
35.94 坪 118.81 ㎡ |
※現在空室情報はございません |
※現在空室情報は 確認する |
|||||
| 6F |
35.94 坪 118.81 ㎡ |
※現在空室情報はございません |
※現在空室情報は 確認する |
|||||
| 7F |
35.94 坪 118.81 ㎡ |
※現在空室情報はございません |
※現在空室情報は 確認する |
|||||
| 8F |
35.94 坪 118.81 ㎡ |
※現在空室情報はございません |
※現在空室情報は 確認する |
|||||
| 9F |
35.94 坪 118.81 ㎡ |
449,250 円 12,500 円(坪) |
125,790 円 3,500 円(坪) |
2,695,500 円 6 ヶ月 |
2026/02 |
|
|
|
お問い合わせ
似た条件の物件はこちら
-
三田レオマビル
東京都港区三田2-10-6
坪数:27.03 坪
坪単価:16,500 円(坪)
-
佐藤ビル
東京都港区浜松町1-19-4
坪数:27.79 坪
坪単価:11,000 円(坪)
-
芝松下ビル
東京都港区芝3-3-12
坪数:26.42 坪
坪単価:11,000 円(坪)
-
日建ビル
東京都港区海岸2-6-31
坪数:27.02 坪
坪単価:12,000 円(坪)
-
芝パークビル
東京都港区浜松町2-1-15
坪数:26 坪
坪単価:17,000 円(坪)
-
Bizflex浜松町
東京都港区浜松町2-12-11
坪数:44.06 坪
坪単価:36,314 円(坪)
-
第二神明ビル
東京都港区芝大門2-9-15
坪数:32 坪
坪単価:11,000 円(坪)
-
喜多ビル
東京都港区芝大門1-3-6
坪数:32.36 坪
坪単価:13,133 円(坪)
-
ARZ芝公園
東京都港区芝2-23-1
坪数:30.63 坪
坪単価:28,000 円(坪)
-
マートルコート三田
東京都港区三田3-4-6
坪数:32.46 坪
坪単価:13,863 円(坪)