内神田東誠ビル(物件No:31488019)
内神田東誠ビルは、千代田区内神田にある貸事務所物件で最寄り駅は地下鉄丸ノ内線淡路町駅、都営新宿線小川町駅、JR神田駅です。1987年竣工で基準階が64坪の賃貸オフィスビルです。床はOAフロアで天井の高さは2400mm。トイレは室内男女別で、空調は個別空調です。エレベーターは2基あります。複数路線利用可能で交通アクセスの良い千代田区内神田の貸事務所です。
-
物件情報
-
設備情報
- トイレ
- 室内男女別
- 床
- フリーアクセス
- 空調
- 個別空調
- セキュリティ
- 有
- 駐車場
- 有
- 会議室
- 有
- エレベーター
- 2基
- 天井高
- 2400mm
-
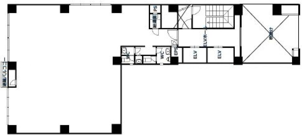
間取り図
-
近隣相場情報
内神田1丁目(50~100坪)の相場
30891 円 (坪)
※ビルサク調べ
周辺施設情報
| コンビニ |
まいばすけっと/神田駅西店/28m(徒歩1分) ファミリーマート/神田多町店/400m(徒歩6分) |
|---|---|
| 郵便局/銀行 |
みずほ銀行/ATM まいばすけっと神田駅西店出張所/[営業時間]ATM 平日 /Monday - Friday 7:00~23:00 土曜日/Saturday 7:00~22:00 日曜日/Sunday 8:00~23:00 祝日・振替休日 /Public Holidays 曜日に準ずる 備考 通帳繰越機 設置なし/33m(徒歩1分) 武蔵野銀行/東京支店/[営業時間]平日 9:00~15:00 日曜 - [ATM]平日 8:45~18:00 土曜 - 日祝 -/120m(徒歩2分) |
| 飲食店 |
シーアン 神田西口店/11時30分~14時30分、17時30分~23時00分/79m(徒歩1分) そめいよしの/11時00分~15時30分、17時30分~23時00分/41m(徒歩1分) |
| カフェ |
プロント/神田グランドセントラルホテル店/[営業時間]平日:カフェ 6:30~17:30 バー 17:30~23:00 土曜:カフェ 6:30~10:00 日祝:カフェ 6:30~10:00 [休業日]無休 [備考]81席/完全分煙+喫煙ブースあり/170m(徒歩2分) アンモナイト コーヒーマーケット 神田店/8時00分~19時30分/35m(徒歩1分) |
| コインパーキング |
タイムズ駐車場/神田司町第2 [料金] [月~土]通常料金 / 08:00-00:00 15分 400円 00:00-08:00 60分 100円 [日・祝]通常料金 / 08:00-00:00 30分 500円 00:00-08:00 60分 100円 [最大料金] [日・祝]当日1日最大料金2000円(24時迄) [台数]9 三井のリパーク/内神田1丁目第2 [料金] 全日 07:00~22:00 20分/400円 全日 22:00~07:00 60分/100円 [台数]2 |
周辺地図
内神田東誠ビルは、千代田区内神田にある貸事務所物件で最寄り駅は地下鉄丸ノ内線淡路町駅、都営新宿線小川町駅、JR神田駅です。1987年竣工で基準階が64坪の賃貸オフィスビルです。床はOAフロアで天井の高さは2400mm。トイレは室内男女別で、空調は個別空調です。エレベーターは2基あります。複数路線利用可能で交通アクセスの良い千代田区内神田の貸事務所です。
全フロア情報
更新日:2025年11月5日
| 階 | 面積 | 賃料 | 共益費 | 敷金 | 入居日 | お問合せ | お気に入り | |
|---|---|---|---|---|---|---|---|---|
| 2F |
55.85 坪 184.63 ㎡ |
※現在空室情報はございません |
※現在空室情報は 確認する |
|||||
| 3F |
55.85 坪 184.63 ㎡ |
1,005,300 円 18,000 円(坪) |
込 |
5,026,500 円 5 ヶ月 |
2026/04 |
|
|
|
| 4F |
55.85 坪 184.63 ㎡ |
1,005,300 円 18,000 円(坪) |
込 |
5,026,500 円 5 ヶ月 |
2026/04 |
|
|
|
お問い合わせ
似た条件の物件はこちら
-
大手町ゲートビルディング
東京都千代田区内神田1-31-11
坪数:48.55 坪
坪単価:70,031 円(坪)
-
M&Cビル
東京都千代田区神田小川町2-3-13
坪数:62.21 坪
坪単価:14,500 円(坪)
-
新八光ビル
東京都千代田区内神田3-22-9
坪数:44.17 坪
坪単価:20,000 円(坪)
-
ACN神田司町ビル
東京都千代田区神田司町2-7-1
坪数:59.04 坪
坪単価:30,000 円(坪)
-
藤和内神田ビル
東京都千代田区内神田2-4-4
坪数:66.32 坪
坪単価:12,000 円(坪)
-
石川興産ビル
東京都千代田区外神田4-7-5
坪数:40.2 坪
坪単価:15,500 円(坪)
-
ニューイワサキビル
東京都千代田区神田佐久間町4-14
坪数:65.6 坪
坪単価:13,000 円(坪)
-
楠本第18ビル
東京都千代田区内神田1-2-7
坪数:41.91 坪
坪単価:16,000 円(坪)
-
村田ビルディング
東京都千代田区神田駿河台2-5
坪数:66.61 坪
坪単価:18,000 円(坪)
-
冨士エレベータービル
東京都千代田区内神田3-4-6
坪数:61.85 坪
坪単価:16,000 円(坪)
関連エリアから探す
- 内神田
- 神田淡路町
- 神田小川町
- 神田鍛冶町
- 神田須田町
- 神田駿河台
- 神田多町
- 神田司町
- 神田錦町
- 神田美土代町
- 岩本町
- 鍛冶町
- 神田岩本町
- 神田北乗物町
- 神田紺屋町
- 神田富山町
- 神田西福田町
- 神田東松下町
- 神田東紺屋町
- 神田美倉町
- 東神田
- 神田相生町
- 神田和泉町
- 神田佐久間町
- 神田佐久間河岸
- 神田練塀町
- 神田花岡町
- 神田松永町
- 外神田
- 神田平河町