ホリーズ日本橋(物件No:31485193)
ホリーズ日本橋は、中央区日本橋横山町にある貸事務所物件です。最寄り駅は、JR総武線の馬喰町駅、都営新宿線の馬喰横山駅、都営浅草線の東日本橋駅、東京メトロ日比谷線の小伝馬町駅、都営新宿線の浜町駅です。1992年竣工で、基準階が37.96坪の賃貸オフィスビルです。天高は2600mmとなっております。空調は個別空調で、エレベーターは1基あります。複数路線利用可能な、アクセスの良い中央区日本橋横山町の貸事務所です。
-
物件情報
-
設備情報
- トイレ
- 室内男女別
- 床
- -
- 空調
- 個別空調
- セキュリティ
- -
- 駐車場
- -
- 会議室
- -
- エレベーター
- 1基
- 天井高
- 2600mm
-
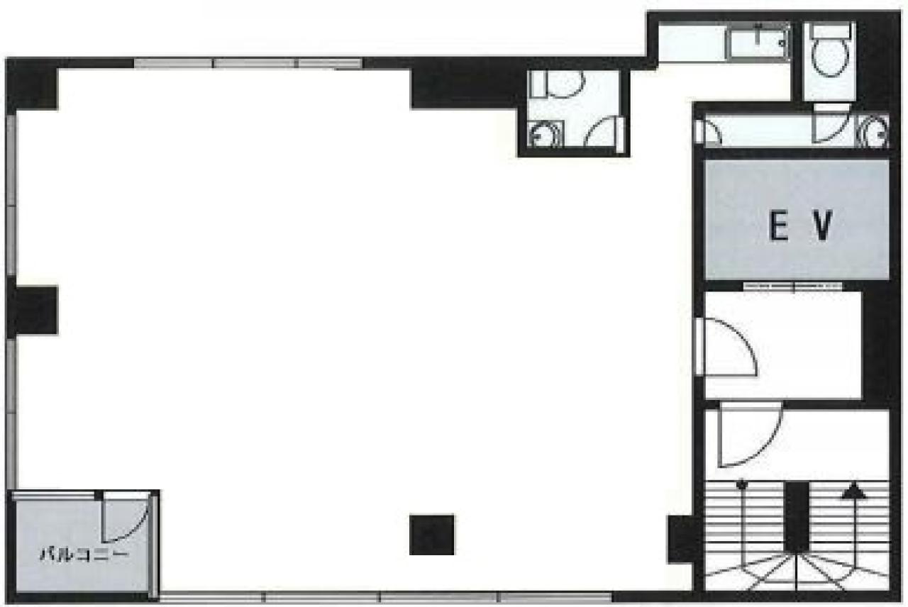
間取り図
-
近隣相場情報
日本橋横山町5丁目(30~40坪)の相場
12645 円 (坪)
※ビルサク調べ
周辺施設情報
| コンビニ |
セブンイレブン/東日本橋駅前/230m(徒歩3分) デイリーヤマザキ/馬喰横山駅前店/ |
|---|---|
| 郵便局/銀行 |
郵便局/東日本橋三/平日 9:00-17:00 土曜 - 日曜・祝日 - [ATM]平日 8:00-20:00 土曜 9:00-17:00 日曜・祝日 -/110m(徒歩1分) みずほ銀行/横山町支店/窓口 平日9:00~15:00 ATM 平日 6:00~26:00 土曜日 8:00~22:00 日曜日 8:00~21:00 祝日・振替休日 8:00~21:00/150m(徒歩2分) |
| 飲食店 |
鉄板焼きミキスケ横山町店/11:00~14:00、17:00~22:00 /60m(徒歩1分) ちょもらんま 馬喰町店/11時30分~22時30分/120m(徒歩2分) |
| カフェ |
プロント/東日本橋店/[営業時間]平日:カフェ 7:00~17:30 バー 17:30~23:00 土曜:カフェ 7:00~21:00 日曜:カフェ 7:00~20:00 祝日:カフェ 7:00~20:00 [休業日]無休 [備考]39席/分煙/220m(徒歩3分) ドトール/都営馬喰横山店/[営業時間]平 日:06:45 - 21:00 土曜日:07:30 - 20:00 日 祝:08:00 - 20:00 [休業日]なし [備考]総席数:48 禁煙席:48 喫煙席:-/70m(徒歩1分) |
| コインパーキング |
名鉄協商パーキング/中央第8東日本橋駅前 [料金] 全日 20分 (00:00 - 24:00) 400円 [最大料金] 全日 (07:00 - 18:00) 3,600円 全日 (18:00 - 07:00) 800円 [台数]5台 パークアベニュー/日本橋馬喰町第1 [料金] 昼 20分/200円 夜 60分/100円 [台数]4 |
周辺地図
ホリーズ日本橋は、中央区日本橋横山町にある貸事務所物件です。最寄り駅は、JR総武線の馬喰町駅、都営新宿線の馬喰横山駅、都営浅草線の東日本橋駅、東京メトロ日比谷線の小伝馬町駅、都営新宿線の浜町駅です。1992年竣工で、基準階が37.96坪の賃貸オフィスビルです。天高は2600mmとなっております。空調は個別空調で、エレベーターは1基あります。複数路線利用可能な、アクセスの良い中央区日本橋横山町の貸事務所です。
全フロア情報
更新日:2025年12月5日
| 階 | 面積 | 賃料 | 共益費 | 敷金 | 入居日 | お問合せ | お気に入り | |
|---|---|---|---|---|---|---|---|---|
| 2F |
37.96 坪 125.49 ㎡ |
※現在空室情報はございません |
※現在空室情報は 確認する |
|||||
| 3F |
37.69 坪 124.59 ㎡ |
※現在空室情報はございません |
※現在空室情報は 確認する |
|||||
| 4F |
37.69 坪 124.59 ㎡ |
※現在空室情報はございません |
※現在空室情報は 確認する |
|||||
| 5F |
37.69 坪 124.59 ㎡ |
※現在空室情報はございません |
※現在空室情報は 確認する |
|||||
| 6F |
37.96 坪 125.49 ㎡ |
※現在空室情報はございません |
※現在空室情報は 確認する |
|||||
| 7F |
37.96 坪 125.49 ㎡ |
430,000 円 11,328 円(坪) |
50,000 円 1,317 円(坪) |
2,580,000 円 6 ヶ月 |
即日 |
|
|
|
| 8F |
37.69 坪 124.59 ㎡ |
※現在空室情報はございません |
※現在空室情報は 確認する |
|||||
お問い合わせ
似た条件の物件はこちら
-
伊勢兼ビル
東京都中央区日本橋人形町1-7-9
坪数:27.05 坪
坪単価:17,000 円(坪)
-
林ビル
東京都中央区日本橋馬喰町1-5-10
坪数:29.43 坪
坪単価:10,000 円(坪)
-
7山京ビル
東京都中央区日本橋箱崎町17-8
坪数:37.5 坪
坪単価:11,000 円(坪)
-
金物会館ビル
東京都中央区日本橋浜町2-37-8
坪数:34.76 坪
坪単価:4,315 円(坪)
-
Ikigai Bashi ビル
東京都中央区日本橋大伝馬町1-7
坪数:38.27 坪
坪単価:16,000 円(坪)
-
箱崎YMビル
東京都中央区日本橋箱崎町44-7
坪数:27.51 坪
坪単価:10,178 円(坪)
-
第1松井ビル
東京都中央区日本橋馬喰町1-8-4
坪数:36.67 坪
坪単価:8,603 円(坪)
-
Grandir 日本橋小伝馬町
東京都中央区日本橋小伝馬町18-1
坪数:44.34 坪
坪単価:24,000 円(坪)
-
人形町藤和ビル
東京都中央区日本橋人形町2-15-3
坪数:32.41 坪
坪単価:10,000 円(坪)
-
馬喰町有楽ビル
東京都中央区日本橋馬喰町1-5-1
坪数:27.34 坪
坪単価:12,000 円(坪)
関連エリアから探す
- 日本橋大伝馬町
- 日本橋蛎殻町
- 日本橋小網町
- 日本橋小伝馬町
- 日本橋小舟町
- 日本橋富沢町
- 日本橋人形町
- 日本橋箱崎町
- 日本橋堀留町
- 日本橋中洲
- 日本橋馬喰町
- 日本橋浜町
- 日本橋久松町
- 日本橋横山町
- 東日本橋