いろいろ聞いてみる

東上野の賃貸オフィス

THE GATE UENO(物件No:31085189)

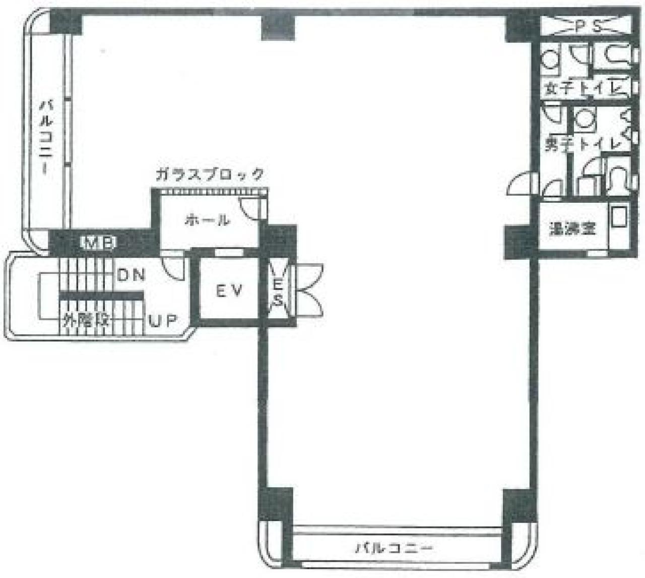
THE GATE UENO は、台東区東上野 にある地下1階、地上9階建ての賃貸事務所です。最寄駅は東京メトロ日比谷線 の仲御徒町 駅から徒歩1分、JR線 の上野 駅から徒歩8分、JR線 の御徒町 駅から徒歩2分、都営大江戸線 の上野御徒町 駅から徒歩3分です。1987年1月竣工の基準階面積が53.95坪の鉄骨鉄筋コンクリート造 です。設備としては、エレベーターが1基あり、駐車場もあります。セキュリティは機械警備です。トイレは男女別です。空調は個別空調です。床仕様はフリーアクセスです。耐震設計となっている、複数路線利用可能なアクセスの良い台東区東上野 の賃貸オフィスです。

面積 賃料 共益費 敷金 入居日 お問合せ お気に入り
7F

51.63 坪

170.68 ㎡

※現在空室情報はございません

※現在空室情報は
ございません

最新情報を
確認する
  • THE GATE UENO
  • THE GATE UENO
  • THE GATE UENO
  • THE GATE UENO
  • THE GATE UENO
  • THE GATE UENO
  • THE GATE UENO
  • THE GATE UENO
面積 賃料 共益費 敷金 入居日 お問合せ お気に入り
7F

51.63 坪

170.68 ㎡

※現在空室情報はございません

※現在空室情報は
ございません

最新情報を
確認する

周辺施設情報

コンビニ

ファミリーマート/青山オーバルビル店/450m(徒歩6分)

ローソン/メトロス渋谷/700m(徒歩9分)

郵便局/銀行

ゆうちょ/渋谷神南郵便局/[営業時間] [窓口]平日 9:00~16:00 土曜日 - 日曜日・休日 - [ATM]平日 8:00~21:00 土曜日 8:00~21:00 日曜日・休日 8:00~20:00 [駐車場]なし [取扱]郵便/貯金/保険/ATM [備考]※新型コロナウイルスに感染した社員が発生した場合、窓口業務/600m(徒歩8分)

セブン銀行/渋谷ヒカリエ/[営業時間]10:00~21:00 [備考]2 台/700m(徒歩8分)

飲食店

宮崎県日南市 塚田農場 渋谷宮益坂店/17時00分~21時00分/500m(徒歩6分)

鶏料理専門店×個室 とりかく 渋谷宮益坂店/17時00分~21時00分/550m(徒歩7分)

カフェ

ルノアール/渋谷宮下公園店/[営業時間]平日:8:00~22:30 土曜日:8:00~22:30 日祝日:8:00~22:00 [備考]禁煙席 64席/500m(徒歩6分)

ベローチェ/渋谷二丁目店/[営業時間]7:00~22:00 ※営業時間の変更情報あり。詳細についてはHPを参照 [備考]全席禁煙 喫煙ブースあり/Wi-Fiあり/【分煙区画について】喫煙ブースでの飲食は、ご遠慮いただいております/500m(徒歩7分)

コインパーキング

NBパーキング/渋谷1丁目

16台

三井のリパーク/神宮前5丁目第14

[料金]

全日 06:00~18:00 20分/300円

全日 18:00~06:00 20分/300円

[最大料金]

【全日】18:00~6:00以内 最大料金600円

[台数]2

周辺地図

THE GATE UENO は、台東区東上野 にある地下1階、地上9階建ての賃貸事務所です。最寄駅は東京メトロ日比谷線 の仲御徒町 駅から徒歩1分、JR線 の上野 駅から徒歩8分、JR線 の御徒町 駅から徒歩2分、都営大江戸線 の上野御徒町 駅から徒歩3分です。1987年1月竣工の基準階面積が53.95坪の鉄骨鉄筋コンクリート造 です。設備としては、エレベーターが1基あり、駐車場もあります。セキュリティは機械警備です。トイレは男女別です。空調は個別空調です。床仕様はフリーアクセスです。耐震設計となっている、複数路線利用可能なアクセスの良い台東区東上野 の賃貸オフィスです。

全フロア情報

更新日:2025年11月17日

面積 賃料 共益費 敷金 入居日 お問合せ お気に入り
1F

45.56 坪

150.61 ㎡

※現在空室情報はございません

※現在空室情報は
ございません

最新情報を
確認する
2F

50.86 坪

168.12 ㎡

※現在空室情報はございません

※現在空室情報は
ございません

最新情報を
確認する
3F

51.63 坪

170.68 ㎡

877,710 円

17,000 円(坪)

相談

2026/02 お問い合わせ お気に入り
4F

51.63 坪

170.68 ㎡

1,032,600 円

20,000 円(坪)

相談

2026/02 お問い合わせ お気に入り
5F

51.64 坪

170.71 ㎡

※現在空室情報はございません

※現在空室情報は
ございません

最新情報を
確認する
6F

51.63 坪

170.68 ㎡

※現在空室情報はございません

※現在空室情報は
ございません

最新情報を
確認する
7F

51.63 坪

170.68 ㎡

※現在空室情報はございません

※現在空室情報は
ございません

最新情報を
確認する
9F

51.74 坪

171.04 ㎡

※現在空室情報はございません

※現在空室情報は
ございません

最新情報を
確認する

お問い合わせ

必須
必須
必須
必須
必須

似た条件の物件はこちら

関連エリアから探す

駅から探す

お問い合わせ

物件に関してのお問い合わせ

「失敗しないオフィス移転サポート」物件探しから移転までスムーズで担当者様がとにかく楽になるサービスです。

050-7587-0049平日 9:00~18:00

メールでお問い合わせ

フリーワード検索