THE GATE UENO(物件No:31085189)
THE GATE UENO は、台東区東上野 にある地下1階、地上9階建ての賃貸事務所です。最寄駅は東京メトロ日比谷線 の仲御徒町 駅から徒歩1分、JR線 の上野 駅から徒歩8分、JR線 の御徒町 駅から徒歩2分、都営大江戸線 の上野御徒町 駅から徒歩3分です。1987年1月竣工の基準階面積が53.95坪の鉄骨鉄筋コンクリート造 です。設備としては、エレベーターが1基あり、駐車場もあります。セキュリティは機械警備です。トイレは男女別です。空調は個別空調です。床仕様はフリーアクセスです。耐震設計となっている、複数路線利用可能なアクセスの良い台東区東上野 の賃貸オフィスです。
| 階 | 面積 | 賃料 | 共益費 | 敷金 | 入居日 | お問合せ | お気に入り |
|---|---|---|---|---|---|---|---|
| 3F |
51.63 坪 170.68 ㎡ |
877,710 円 17,000 円(坪) |
込 |
相談 |
2026/02 |
|
|
| 階 | 面積 | 賃料 | 共益費 | 敷金 | 入居日 | お問合せ | お気に入り |
|---|---|---|---|---|---|---|---|
| 3F |
51.63 坪 170.68 ㎡ |
877,710 円 17,000 円(坪) |
込 |
相談 |
2026/02 |
|
|
-
物件情報
-
設備情報
- トイレ
- -
- 床
- -
- 空調
- -
- セキュリティ
- 有
- 駐車場
- 有
- 会議室
- -
- エレベーター
- 1基
- 天井高
- -
-
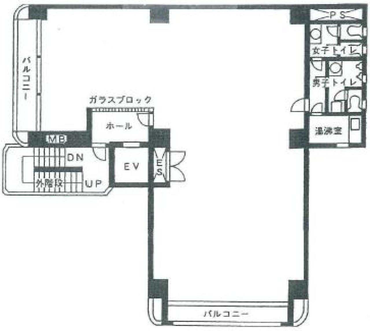
間取り図
-
近隣相場情報
東上野1丁目(50~100坪)の相場
22283 円 (坪)
※ビルサク調べ
周辺施設情報
| コンビニ |
ファミリーマート/青山オーバルビル店/450m(徒歩6分) ローソン/メトロス渋谷/700m(徒歩9分) |
|---|---|
| 郵便局/銀行 |
ゆうちょ/渋谷神南郵便局/[営業時間] [窓口]平日 9:00~16:00 土曜日 - 日曜日・休日 - [ATM]平日 8:00~21:00 土曜日 8:00~21:00 日曜日・休日 8:00~20:00 [駐車場]なし [取扱]郵便/貯金/保険/ATM [備考]※新型コロナウイルスに感染した社員が発生した場合、窓口業務/600m(徒歩8分) セブン銀行/渋谷ヒカリエ/[営業時間]10:00~21:00 [備考]2 台/700m(徒歩8分) |
| 飲食店 |
宮崎県日南市 塚田農場 渋谷宮益坂店/17時00分~21時00分/500m(徒歩6分) 鶏料理専門店×個室 とりかく 渋谷宮益坂店/17時00分~21時00分/550m(徒歩7分) |
| カフェ |
ルノアール/渋谷宮下公園店/[営業時間]平日:8:00~22:30 土曜日:8:00~22:30 日祝日:8:00~22:00 [備考]禁煙席 64席/500m(徒歩6分) ベローチェ/渋谷二丁目店/[営業時間]7:00~22:00 ※営業時間の変更情報あり。詳細についてはHPを参照 [備考]全席禁煙 喫煙ブースあり/Wi-Fiあり/【分煙区画について】喫煙ブースでの飲食は、ご遠慮いただいております/500m(徒歩7分) |
| コインパーキング |
NBパーキング/渋谷1丁目 16台 三井のリパーク/神宮前5丁目第14 [料金] 全日 06:00~18:00 20分/300円 全日 18:00~06:00 20分/300円 [最大料金] 【全日】18:00~6:00以内 最大料金600円 [台数]2 |
周辺地図
THE GATE UENO は、台東区東上野 にある地下1階、地上9階建ての賃貸事務所です。最寄駅は東京メトロ日比谷線 の仲御徒町 駅から徒歩1分、JR線 の上野 駅から徒歩8分、JR線 の御徒町 駅から徒歩2分、都営大江戸線 の上野御徒町 駅から徒歩3分です。1987年1月竣工の基準階面積が53.95坪の鉄骨鉄筋コンクリート造 です。設備としては、エレベーターが1基あり、駐車場もあります。セキュリティは機械警備です。トイレは男女別です。空調は個別空調です。床仕様はフリーアクセスです。耐震設計となっている、複数路線利用可能なアクセスの良い台東区東上野 の賃貸オフィスです。
全フロア情報
更新日:2025年12月12日
| 階 | 面積 | 賃料 | 共益費 | 敷金 | 入居日 | お問合せ | お気に入り | |
|---|---|---|---|---|---|---|---|---|
| 1F |
45.56 坪 150.61 ㎡ |
※現在空室情報はございません |
※現在空室情報は 確認する |
|||||
| 2F |
50.86 坪 168.12 ㎡ |
※現在空室情報はございません |
※現在空室情報は 確認する |
|||||
| 3F |
51.63 坪 170.68 ㎡ |
877,710 円 17,000 円(坪) |
込 |
相談 |
2026/02 |
|
|
|
| 4F |
51.63 坪 170.68 ㎡ |
1,032,600 円 20,000 円(坪) |
込 |
相談 |
2026/02 |
|
|
|
| 5F |
51.64 坪 170.71 ㎡ |
※現在空室情報はございません |
※現在空室情報は 確認する |
|||||
| 6F |
51.63 坪 170.68 ㎡ |
※現在空室情報はございません |
※現在空室情報は 確認する |
|||||
| 7F |
51.63 坪 170.68 ㎡ |
※現在空室情報はございません |
※現在空室情報は 確認する |
|||||
| 9F |
51.74 坪 171.04 ㎡ |
※現在空室情報はございません |
※現在空室情報は 確認する |
|||||
お問い合わせ
似た条件の物件はこちら
-
スエヒロビル
東京都台東区東上野3-15-13
坪数:48 坪
坪単価:8,500 円(坪)
-
アサヒビル
東京都台東区台東2-31-3
坪数:43.85 坪
坪単価:17,000 円(坪)
-
勝徳ビル
東京都台東区台東2-25-6
坪数:48.33 坪
坪単価:10,500 円(坪)
-
第二吉沢ビル
東京都台東区東上野2-19-3
坪数:46.42 坪
坪単価:11,000 円(坪)
-
エクセレントビル
東京都台東区上野3-2-1
坪数:56 坪
坪単価:11,000 円(坪)
-
タツミビル
東京都台東区上野4-10-7
坪数:65 坪
坪単価:12,500 円(坪)
-
仲御徒町フロントビル
東京都台東区台東4-8-7
坪数:59.06 坪
坪単価:24,000 円(坪)
-
サンケエホワイトビル
東京都台東区台東2-29-12
坪数:43 坪
坪単価:11,000 円(坪)
-
上野永谷タウンプラザ
東京都台東区台東4-29-15
坪数:38.53 坪
坪単価:24,812 円(坪)