岸浪ビル(物件No:22899986)
岸浪ビルは、中央区日本橋蛎殻町にある地下1階、地上8階建ての貸店舗事務所/賃貸事務所です。最寄駅は東京メトロ半蔵門線の水天宮前駅から徒歩2分、東京メトロ日比谷線の人形町駅から徒歩8分です。1988年2月竣工の鉄骨鉄筋コンクリート造です。設備としては、エレベーターが1基あります。トイレは室内男女別です。耐震設計となっている、最寄駅から近くて便利な中央区日本橋蛎殻町の貸店舗事務所/賃貸オフィスです。
-
物件情報
-
設備情報
- トイレ
- 室内男女別
- 床
- -
- 空調
- -
- セキュリティ
- -
- 駐車場
- -
- 会議室
- -
- エレベーター
- 1基
- 天井高
- -
-
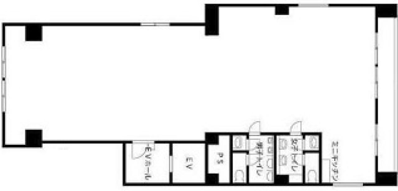
間取り図
-
近隣相場情報
日本橋蛎殻町2丁目(40~50坪)の相場
15000 円 (坪)
※ビルサク調べ
周辺施設情報
| コンビニ |
まいばすけっと/水天宮店/80m(徒歩1分) セブンイレブン/日本橋浜町/230m(徒歩3分) |
|---|---|
| 郵便局/銀行 |
郵便局/中央人形町二/平日 9:00-17:00 土曜 - 日曜・祝日 - [ATM]平日 8:00-20:00 土曜 9:00-18:00 日曜・祝日 9:00-18:00/220m(徒歩3分) 郵便局/東京シティターミナル内/平日 9:00-17:00 土曜 - 日曜・祝日 - [ATM]平日 8:00-19:00 土曜 9:00-17:00 日曜・祝日 -/260m(徒歩3分) |
| 飲食店 |
うな富/11時00分~14時00分/10m(徒歩1分) 天龍日本そば店/11時00分~20時30分/80m(徒歩1分) |
| カフェ |
Sweets&Bakery 粋/[営業時間]11時00分~20時00分/160m(徒歩2分) カフェドクリエ/T-CAT/[営業時間][平 日] 7:00-20:00 [土日祝] (土)7:00-19:00 (日/祝)7:00-19:00/150m(徒歩2分) |
| コインパーキング |
PEN/中央区日本橋蛎殻町2丁目第2 [料金] 全日 8:00~22:00 20分 200円 全日 22:00~8:00 60分 100円 [最大料金] 全日 12時間最大 2300円 (繰り返し) 全日 夜間最大500円 (繰り返し) [台数]3台 GSパーク/日本橋蛎殻町 [料金] 【全日】 08:00~20:00 30分 300円 【全日】 20:00~08:00 60分 100円 [最大料金] 【全日】 08:00~20:00 2,300円 【全日】 20:00~08:00 300円 [台数]3台 |
周辺地図
岸浪ビルは、中央区日本橋蛎殻町にある地下1階、地上8階建ての貸店舗事務所/賃貸事務所です。最寄駅は東京メトロ半蔵門線の水天宮前駅から徒歩2分、東京メトロ日比谷線の人形町駅から徒歩8分です。1988年2月竣工の鉄骨鉄筋コンクリート造です。設備としては、エレベーターが1基あります。トイレは室内男女別です。耐震設計となっている、最寄駅から近くて便利な中央区日本橋蛎殻町の貸店舗事務所/賃貸オフィスです。
全フロア情報
更新日:2025年11月10日
| 階 | 面積 | 賃料 | 共益費 | 敷金 | 入居日 | お問合せ | お気に入り | |
|---|---|---|---|---|---|---|---|---|
| B1F |
46.6 坪 154.05 ㎡ |
※現在空室情報はございません |
※現在空室情報は 確認する |
|||||
| 1F |
44.13 坪 145.88 ㎡ |
※現在空室情報はございません |
※現在空室情報は 確認する |
|||||
| 2F |
48.62 坪 160.73 ㎡ |
※現在空室情報はございません |
※現在空室情報は 確認する |
|||||
| 3F |
47.9 坪 158.35 ㎡ |
※現在空室情報はございません |
※現在空室情報は 確認する |
|||||
| 4F |
41.82 坪 138.25 ㎡ |
※現在空室情報はございません |
※現在空室情報は 確認する |
|||||
| 5F |
31.95 坪 105.62 ㎡ |
370,000 円 11,581 円(坪) |
45,000 円 1,408 円(坪) |
2,960,000 円 8 ヶ月 |
即日 |
|
|
|
| 6F |
24.89 坪 82.28 ㎡ |
※現在空室情報はございません |
※現在空室情報は 確認する |
|||||
お問い合わせ
似た条件の物件はこちら
-
7山京ビル
東京都中央区日本橋箱崎町17-8
坪数:37.5 坪
坪単価:11,000 円(坪)
-
金物会館ビル
東京都中央区日本橋浜町2-37-8
坪数:34.76 坪
坪単価:4,315 円(坪)
-
オーキッドプレイス蛎殻町ビル
東京都中央区日本橋蛎殻町1-4-1
坪数:51.15 坪
坪単価:15,000 円(坪)
-
Ikigai Bashi ビル
東京都中央区日本橋大伝馬町1-7
坪数:38.27 坪
坪単価:16,000 円(坪)
-
第1松井ビル
東京都中央区日本橋馬喰町1-8-4
坪数:36.67 坪
坪単価:8,603 円(坪)
-
Grandir 日本橋小伝馬町
東京都中央区日本橋小伝馬町18-1
坪数:44.34 坪
坪単価:24,000 円(坪)
-
アライズ第2ビル
東京都中央区日本橋箱崎町5-4
坪数:52.8 坪
坪単価:11,000 円(坪)
-
人形町ミハマビル
東京都中央区日本橋人形町3-8-2
坪数:35.36 坪
坪単価:14,000 円(坪)
-
日本橋浜町ビル
東京都中央区日本橋浜町2-28-1
坪数:46 坪
坪単価:12,000 円(坪)
-
ホリーズ日本橋
東京都中央区日本橋横山町5-2
坪数:37.96 坪
坪単価:11,328 円(坪)
関連エリアから探す
- 日本橋大伝馬町
- 日本橋蛎殻町
- 日本橋小網町
- 日本橋小伝馬町
- 日本橋小舟町
- 日本橋富沢町
- 日本橋人形町
- 日本橋箱崎町
- 日本橋堀留町
- 日本橋中洲
- 日本橋馬喰町
- 日本橋浜町
- 日本橋久松町
- 日本橋横山町
- 東日本橋