イマス山吹町ビル(物件No:22614738)
イマス山吹町ビルは新宿区山吹町にある地下1階、地上6階建ての貸店舗事務所です。最寄駅は東京メトロ有楽町線の江戸川橋駅から徒歩5分、東京メトロ東西線の神楽坂駅から徒歩10分、東京メトロ東西線の早稲田駅から徒歩10分、都営大江戸線の牛込神楽坂駅から徒歩14分です。1989年竣工の基準階面積が26.89坪の鉄骨鉄筋コンクリート造です。設備としては、エレベーターが1基あります。空調は個別空調です。天高は2320mmです。耐震設計となっている、複数路線利用可能なアクセスの良い新宿区山吹町の貸店舗事務所です。
- 
                    
物件情報
 - 
                        
設備情報
- トイレ
 - -
 - 床
 - -
 - 空調
 - -
 - セキュリティ
 - -
 - 駐車場
 - -
 - 会議室
 - -
 - エレベーター
 - 1基
 - 天井高
 - -
 
 - 
                        
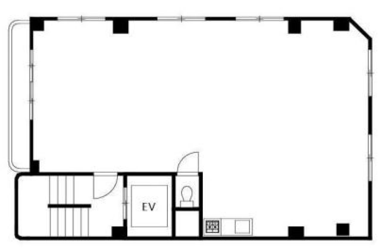
間取り図
 - 
                    
近隣相場情報
山吹町353丁目(20~30坪)の相場
9558 円 (坪)
※ビルサク調べ 
周辺施設情報
| コンビニ | 
                                                                                                                     まいばすけっと/山吹町店/240m(徒歩3分) ファミリーマート/新宿山吹町店/180m(徒歩2分)  | 
                
|---|---|
| 郵便局/銀行 | 
                                                                                                                     イーネット/ファミリーマート新宿山吹町/[営業時間]0:00~24:00/180m(徒歩2分) 東京シティ信用金庫/江戸川橋支店/電話番号03-3235-2971/250m(徒歩3分)  | 
                
| 飲食店 | 
                                                                                                                     萬福餃子房/11時00分~15時00分 17時00分~0時00分/160m(徒歩2分) 喫茶レモン/9時30分~18時00分/260m(徒歩3分)  | 
                
| カフェ | 
                                                                                                                     ドトール/江戸川橋新目白通り店/[営業時間]平日 7:00~21:00 土曜 7:00~20:00 日祝 8:00~20:00/400m(徒歩5分) ベローチェ/神楽坂駅前店/[営業時間]7:00~22:00/850m(徒歩11分)  | 
                
| コインパーキング | 
                                                                                     タイムズ/早稲田鶴巻町 [料金] [月~土]通常料金 / 0:00~0:00 20分 220円 [日・祝]通常料金 / 0:00~0:00 40分 220円 [最大料金] [月~土]8:00~18:00 最大料金1980円 18:00~8:00 最大料金440円 [日・祝]8:00~18:00 最大料金1320円 18:00~8:00 最大料金440円 [台数]3 タイムズ/早稲田鶴巻町第8 [料金] [月~土]通常料金 / 0:00~0:00 20分 220円? [日・祝]通常料金 / 0:00~0:00 20分 220円 [最大料金] [月~土]8:00~18:00 最大料金2200円 18:00~8:00 最大料金440円 [日・祝]8:00~18:00 最大料金1320円 18:00~8:00 最大料金440円 [台数]2  | 
                
周辺地図
イマス山吹町ビルは新宿区山吹町にある地下1階、地上6階建ての貸店舗事務所です。最寄駅は東京メトロ有楽町線の江戸川橋駅から徒歩5分、東京メトロ東西線の神楽坂駅から徒歩10分、東京メトロ東西線の早稲田駅から徒歩10分、都営大江戸線の牛込神楽坂駅から徒歩14分です。1989年竣工の基準階面積が26.89坪の鉄骨鉄筋コンクリート造です。設備としては、エレベーターが1基あります。空調は個別空調です。天高は2320mmです。耐震設計となっている、複数路線利用可能なアクセスの良い新宿区山吹町の貸店舗事務所です。
全フロア情報
更新日:2025年10月15日
| 階 | 面積 | 賃料 | 共益費 | 敷金 | 入居日 | お問合せ | お気に入り | |
|---|---|---|---|---|---|---|---|---|
| 1F | 
             28.61 坪 94.58 ㎡  | 
                    371,930 円 13,000 円(坪)  | 
            57,220 円 2,000 円(坪)  | 
            2,975,440 円 8 ヶ月  | 
            2026/04/01 | 
                 | 
            
    
         | 
            |
| 2F | 
             26.89 坪 88.89 ㎡  | 
                    ※現在空室情報はございません | 
                 ※現在空室情報は 確認する  | 
            |||||
| 3F | 
             26.89 坪 88.89 ㎡  | 
                    ※現在空室情報はございません | 
                 ※現在空室情報は 確認する  | 
            |||||
| 4F | 
             26.29 坪 86.91 ㎡  | 
                    ※現在空室情報はございません | 
                 ※現在空室情報は 確認する  | 
            |||||
| 5F | 
             19.47 坪 64.36 ㎡  | 
                    ※現在空室情報はございません | 
                 ※現在空室情報は 確認する  | 
            |||||
| 6F | 
             6.45 坪 21.32 ㎡  | 
                    ※現在空室情報はございません | 
                 ※現在空室情報は 確認する  | 
            |||||
お問い合わせ
似た条件の物件はこちら
- 
                    
                        
Tビル
東京都新宿区河田町7-5
坪数:20.73 坪
坪単価:13,500 円(坪)
 - 
                    
                        
シティ市ヶ谷
東京都新宿区市谷田町2-38-3
坪数:26.86 坪
坪単価:14,000 円(坪)
 - 
                    
                        
Y-1ビル
東京都新宿区山吹町353-1
坪数:18.20 坪
坪単価:9,505 円(坪)
 - 
                    
                        
THE GATE ICHIGAYA
東京都新宿区市谷田町3-6
坪数:23.96 坪
坪単価:22,000 円(坪)
 - 
                    
                        
ESCALIER神楽坂
東京都新宿区西五軒町12-10
坪数:17.45 坪
坪単価:51,576 円(坪)
 - 
                    
                        
ロリエ市ヶ谷ビル
東京都新宿区市谷本村町3-27
坪数:26 坪
坪単価:12,308 円(坪)
 - 
                    
                        
江戸川橋東誠ビル
東京都新宿区山吹町337
坪数:33.62 坪
坪単価:12,500 円(坪)
 - 
                    
                        
ハイポイントビル
東京都新宿区神楽坂3-1-17
坪数:16.92 坪
坪単価:12,057 円(坪)
 - 
                    
                        
セントヒルズ神楽坂
東京都新宿区西五軒町3-18
坪数:25.07 坪
坪単価:9,972 円(坪)
 - 
                    
                        
                        日信ビル
東京都新宿区余丁町12-33
坪数:25.64 坪
坪単価:7,020 円(坪)
 
関連エリアから探す
- 赤城下町
 - 市谷加賀町
 - 揚場町
 - 河田町
 - 市谷砂土原町
 - 市谷左内町
 - 市谷田町
 - 市谷台町
 - 市谷長延寺町
 - 市谷仲之町
 - 市谷八幡町
 - 市谷船河原町
 - 市谷本村町
 - 市谷薬王寺町
 - 市谷柳町
 - 市谷山伏町
 - 岩戸町
 - 榎町
 - 改代町
 - 神楽河岸
 - 神楽坂
 - 北町
 - 北山伏町
 - 細工町
 - 下宮比町
 - 白銀町
 - 新小川町
 - 水道町
 - 箪笥町
 - 築地町
 - 筑土八幡町
 - 津久戸町
 - 天神町
 - 富久町
 - 中里町
 - 中町
 - 納戸町
 - 西五軒町
 - 二十騎町
 - 払方町
 - 東榎町
 - 東五軒町
 - 袋町
 - 南町
 - 南山伏町
 - 山吹町
 - 矢来町
 - 横寺町
 - 余丁町
 - 住吉町