赤坂七番館(物件No:22526449)
赤坂七番館は、港区赤坂にある貸事務所物件です。最寄り駅は東京メトロ丸の内線、銀座線の赤坂見附駅、東京メトロ銀座線、南北線の溜池山王駅、東京メトロ銀座線、半蔵門線の青山一丁目駅、都営大江戸線の六本木駅、東京メトロ千代田線赤坂駅、乃木坂駅です。1978年竣工の賃貸オフィスビルです。空調は個別空調です。有人警備で、駐車場があり、エレベーターは2基あります。複数路線利用可能な、アクセスの良い港区赤坂の貸事務所です。
| 階 | 面積 | 賃料 | 共益費 | 敷金 | 入居日 | お問合せ | お気に入り | |
|---|---|---|---|---|---|---|---|---|
| 1F (108区画) | 14.86 坪 49.12 ㎡ | ※現在空室情報はございません | ※現在空室情報は 確認する | |||||
| 階 | 面積 | 賃料 | 共益費 | 敷金 | 入居日 | お問合せ | お気に入り | |
|---|---|---|---|---|---|---|---|---|
| 1F (108区画) | 14.86 坪 49.12 ㎡ | ※現在空室情報はございません | ※現在空室情報は 確認する | |||||
- 
                    物件情報
- 
                        設備情報- トイレ
- 室内男女共用
- 床
- -
- 空調
- 個別空調
- セキュリティ
- -
- 駐車場
- 有
- 会議室
- -
- エレベーター
- 2基
- 天井高
- -
 
- 
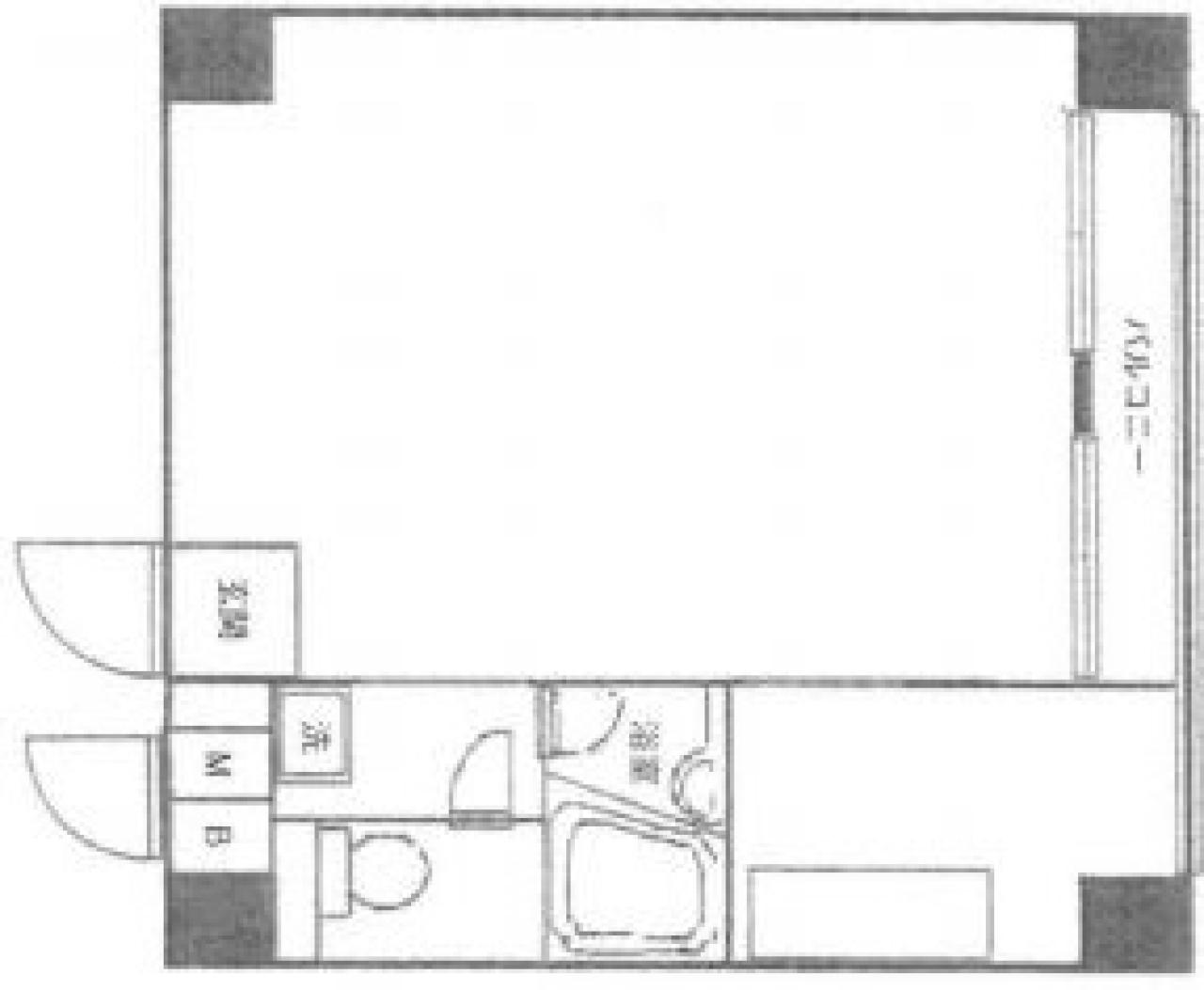
                        間取り図
- 
                    近隣相場情報赤坂7丁目(20坪以下)の相場 15732 円 (坪) 
 ※ビルサク調べ
周辺施設情報
| コンビニ | ファミリーマート/赤坂パークビル店/290m(徒歩4分) セブンイレブン/TBS放送センター/400m(徒歩5分) | 
|---|---|
| 郵便局/銀行 | 郵便局/赤坂七/平日 9:00-17:00 土曜 - 日曜・祝日 - [ATM]平日 9:00~18:00 土曜 9:00~12:30 日曜・祝日 -/32m(徒歩1分) 三井住友銀行/ATM 東京メトロ赤坂駅出張所/[営業時間]平日 6:00~22:00 土曜日 6:00~22:00 日・祝日 6:00~21:00/450m(徒歩6分) | 
| 飲食店 | ピッツエリア リアナ 赤坂店/7時00分~10時00分、11時00分~23時00分/250m(徒歩3分) 赤坂 山ね家。/【月?金】18:00~22:00 【土】18:00?21:00/130m(徒歩2分) | 
| カフェ | スターバックス/赤坂Bizタワー店/[営業時間]07:00~21:00 [休業日]不定休 [備考]無線LAN:STARBUCKS/docomo/FLET’S(東)/Softbank/au/Wi2 300/700m(徒歩9分) エクセルシオール/カフェ 赤坂一ツ木通り店/[営業時間]平 日:07:00 - 23:00 土曜日:08:00 - 21:00 日 祝:08:00 - 20:00 [休業日]なし [備考]総席数:64 禁煙席:25 喫煙席:39/700m(徒歩9分) | 
| コインパーキング | 三井のリパーク/赤坂7丁目第3 [料金] 全日 00:00~24:00 25分/400円 [台数]1 パークジャパン/赤坂7丁目第2 [料金] 8:00~24:00 100円/10分 24:00~8:00 100円/60分 [最大料金] 最大料金24時間2,300円 [台数]2台 | 
周辺地図
赤坂七番館は、港区赤坂にある貸事務所物件です。最寄り駅は東京メトロ丸の内線、銀座線の赤坂見附駅、東京メトロ銀座線、南北線の溜池山王駅、東京メトロ銀座線、半蔵門線の青山一丁目駅、都営大江戸線の六本木駅、東京メトロ千代田線赤坂駅、乃木坂駅です。1978年竣工の賃貸オフィスビルです。空調は個別空調です。有人警備で、駐車場があり、エレベーターは2基あります。複数路線利用可能な、アクセスの良い港区赤坂の貸事務所です。
全フロア情報
更新日:2025年10月27日
| 階 | 面積 | 賃料 | 共益費 | 敷金 | 入居日 | お問合せ | お気に入り | |
|---|---|---|---|---|---|---|---|---|
| 1F (1区画) | 28 坪 92.55 ㎡ | ※現在空室情報はございません | ※現在空室情報は 確認する | |||||
| 1F (108区画) | 14.86 坪 49.12 ㎡ | ※現在空室情報はございません | ※現在空室情報は 確認する | |||||
| 3F (301区画) | 26.84 坪 88.73 ㎡ | ※現在空室情報はございません | ※現在空室情報は 確認する | |||||
| 4F (406区画) | 14.86 坪 49.12 ㎡ | 230,000 円 15,478 円(坪) | 込 | 690,000 円 3 ヶ月 | 相談 |  |  | |
| 4F (409区画) | 15.38 坪 50.83 ㎡ | ※現在空室情報はございません | ※現在空室情報は 確認する | |||||
| 5F (503区画) | 17.27 坪 57.08 ㎡ | ※現在空室情報はございません | ※現在空室情報は 確認する | |||||
お問い合わせ
似た条件の物件はこちら
- 
                    
                        第4文成ビル東京都港区赤坂7-10-9 坪数:17 坪 坪単価:20,000 円(坪) 
- 
                    
                        赤坂余湖ビル東京都港区赤坂4-8-6 坪数:18.48 坪 坪単価:15,000 円(坪) 
- 
                    
                        氷川アネックス2号館東京都港区赤坂6-9-5 坪数:14.89 坪 坪単価:13,298 円(坪) 
- 
                    
                        ゴールド赤坂東京都港区赤坂3-12-11 坪数:17.58 坪 坪単価:23,891 円(坪) 
- 
                    
                        赤坂栄ビル東京都港区赤坂6-6-4 坪数:14.97 坪 坪単価:10,488 円(坪) 
- 
                    
                        アークヒルズエグゼクティブタワー東京都港区赤坂1-14-5 坪数:15.6 坪 坪単価:21,562 円(坪) 
- 
                    
                        松田ビル東京都港区赤坂2-9-2 坪数:15.8 坪 坪単価:15,823 円(坪) 
- 
                    
                        NINETY TWO13東京都港区赤坂9-2-13 坪数:18.7 坪 坪単価:13,850 円(坪) 
- 
                    
                        FRAMES AKASAKA東京都港区赤坂2-13-19 坪数:15.63 坪 坪単価:18,426 円(坪) 
 
         
    