オリックス池袋ビル(物件No:21789189)
オリックス池袋ビルは豊島区南池袋にある地下1階、地上9階建ての賃貸事務所です。最寄駅は西武池袋線の池袋駅から徒歩3分、東京メトロ有楽町線の池袋駅から徒歩3分、JR線の池袋駅から徒歩3分です。2002年7月竣工の基準階面積が185.05坪の鉄骨鉄筋コンクリート造です。設備としては、エレベーターが2基あり、駐車場もあります。セキュリティは機械警備です。トイレは男女別です。空調は個別空調です。床仕様はフリーアクセスです。天高は2700mmです。耐震設計となっている、複数駅利用可能なアクセスの良い豊島区南池袋の賃貸オフィスです。
| 階 | 面積 | 賃料 | 共益費 | 敷金 | 入居日 | お問合せ | お気に入り |
|---|---|---|---|---|---|---|---|
|
3F
(302区画) |
85.78 坪 283.57 ㎡ |
2,573,400 円 30,000 円(坪) |
込 |
30,880,800 円 12 ヶ月 |
相談 |
|
|
| 階 | 面積 | 賃料 | 共益費 | 敷金 | 入居日 | お問合せ | お気に入り |
|---|---|---|---|---|---|---|---|
|
3F
(302区画) |
85.78 坪 283.57 ㎡ |
2,573,400 円 30,000 円(坪) |
込 |
30,880,800 円 12 ヶ月 |
相談 |
|
|
-
物件情報
-
設備情報
- トイレ
- 室外男女別
- 床
- フリーアクセス
- 空調
- -
- セキュリティ
- 有
- 駐車場
- 有
- 会議室
- -
- エレベーター
- 2基
- 天井高
- -
-
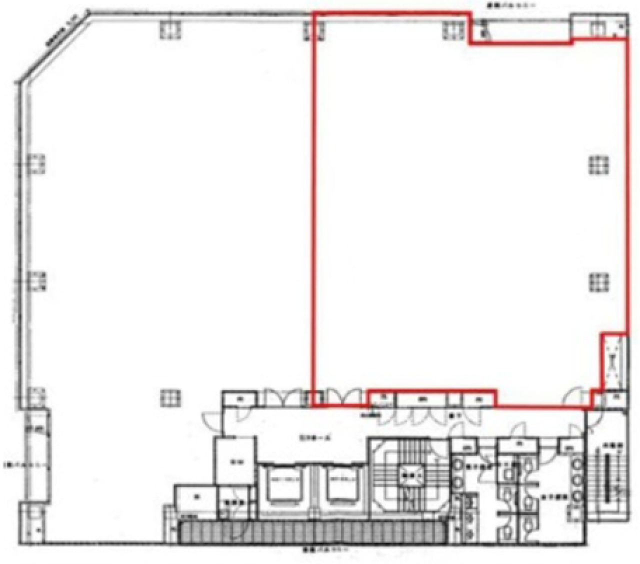
間取り図
-
近隣相場情報
南池袋1丁目(50~100坪)の相場
23558 円 (坪)
※ビルサク調べ
周辺施設情報
| コンビニ |
ファミリーマート/トモニー池袋駅地下改札内店/120m(徒歩2分) セブンイレブン/豊島南池袋2の東/500m(徒歩6分) |
|---|---|
| 郵便局/銀行 |
ビューアルッテ/JR池袋駅南口券売機横/[営業時間]全日/4:40~25:20※毎月第二土曜日23:00~翌日8:00はご利用になれません。※駅や店舗の営業時間により、ATM営業時間が変更となる場合があります [取扱]お引出し・残高照会のみ/400m(徒歩6分) 西武信用金庫/池袋支店/400m(徒歩5分) |
| 飲食店 |
味好屋/17時00分~2時00分/13m(徒歩1分) 青龍門 池袋店/11時30分~15時30分、17時00分~22時30分/ |
| カフェ |
ベローチェ/南池袋一丁目店/[営業時間]※新型コロナウイルス感染防止に対する政府および各自治体の方針等に伴い、営業時間を変更させていただいております。営業時間はこちら [通常営業時間]7:00~23:00 [備考]Free-WiFi/お客様専用 コンセント/UberEats/全席禁煙・喫煙ブース(専用室)あり/300m(徒歩4分) ドトール/西武池袋駅店/[営業時間]平日 6:30~22:45 土曜 6:30~22:45 日祝 6:30~22:45 [備考]総席数:12(禁煙席:12 喫煙席:0)/150m(徒歩2分) |
| コインパーキング |
タイムズ/南池袋2丁目 [料金] [全日]0:00~0:00 15分 440円 [台数]1台 三井のリパーク/南池袋2丁目 [料金] 全日 07:00~20:00 10分/300円 全日 20:00~07:00 10分/300円 [最大料金] 【全日/No.1-6】 7:00~20:00以内 3300円 【全日/No.7-20】 7:00~20:00以内 3500円 【全日/全車室】 20:00~7:00以内 1900円 [台数]19 |
周辺地図
オリックス池袋ビルは豊島区南池袋にある地下1階、地上9階建ての賃貸事務所です。最寄駅は西武池袋線の池袋駅から徒歩3分、東京メトロ有楽町線の池袋駅から徒歩3分、JR線の池袋駅から徒歩3分です。2002年7月竣工の基準階面積が185.05坪の鉄骨鉄筋コンクリート造です。設備としては、エレベーターが2基あり、駐車場もあります。セキュリティは機械警備です。トイレは男女別です。空調は個別空調です。床仕様はフリーアクセスです。天高は2700mmです。耐震設計となっている、複数駅利用可能なアクセスの良い豊島区南池袋の賃貸オフィスです。
全フロア情報
更新日:2025年11月21日
| 階 | 面積 | 賃料 | 共益費 | 敷金 | 入居日 | お問合せ | お気に入り | |
|---|---|---|---|---|---|---|---|---|
| 1-2F |
201 坪 664.46 ㎡ |
※現在空室情報はございません |
※現在空室情報は 確認する |
|||||
|
3F
(302区画) |
85.78 坪 283.57 ㎡ |
2,573,400 円 30,000 円(坪) |
込 |
30,880,800 円 12 ヶ月 |
相談 |
|
|
|
| 4F |
186.15 坪 615.37 ㎡ |
相談 |
込 |
12ヵ月 |
2026/04/01 |
|
|
|
| 5F |
186.15 坪 615.37 ㎡ |
相談 |
込 |
12ヵ月 |
2026/04/01 |
|
|
|
| 8F |
186.15 坪 615.37 ㎡ |
※現在空室情報はございません |
※現在空室情報は 確認する |
|||||
| 9F |
112.94 坪 373.35 ㎡ |
※現在空室情報はございません |
※現在空室情報は 確認する |
|||||
お問い合わせ
似た条件の物件はこちら
-
大河内ビル
東京都豊島区池袋2-52-8
坪数:102 坪
坪単価:10,215 円(坪)
-
東都自動車ビルディング
東京都豊島区西池袋5-13-13
坪数:72.62 坪
坪単価:12,000 円(坪)
-
第5アムスビル
東京都豊島区東池袋1-15-10
坪数:67.56 坪
坪単価:37,004 円(坪)
-
タカセセントラルビル
東京都豊島区東池袋1-1-4
坪数:76.34 坪
坪単価:23,000 円(坪)
-
千早2丁目一棟貸事務所
東京都豊島区千早2-30-11
坪数:96.69 坪
坪単価:12,411 円(坪)
-
第2末野ビル
東京都豊島区長崎4-8-11
坪数:66.13 坪
坪単価:8,317 円(坪)
-
第10野萩ビル
東京都豊島区南池袋2-27-8
坪数:86.25 坪
坪単価:25,055 円(坪)
-
藤久ビル西2号館
東京都豊島区西池袋3-28-1
坪数:76.42 坪
坪単価:15,000 円(坪)
-
光ビル
東京都豊島区長崎1-17-8
坪数:75.9 坪
坪単価:10,780 円(坪)