神田AKビル(物件No:21585029)
神田AKビルは、千代田区神田須田町にある貸事務所物件で東京メトロ丸ノ内線淡路町駅、東京メトロ銀座線、JRの神田駅です。1978年竣工で基準階が約35坪の賃貸オフィスビルです。床はタイルカーペットとなっています。空調は個別空調です。エレベーターは1基あり、セキュリティは機械警備となっています。耐震補強工事が完了しており安心の千代田区神田須田町の貸事務所です。
-
物件情報
-
設備情報
- トイレ
- 室内男女別
- 床
- タイルカーペット
- 空調
- 個別空調
- セキュリティ
- 有
- 駐車場
- 無
- 会議室
- -
- エレベーター
- 1基
- 天井高
- -
-
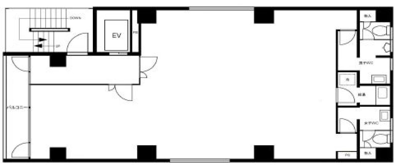
間取り図
-
近隣相場情報
神田須田町1丁目(30~40坪)の相場
23833 円 (坪)
※ビルサク調べ
周辺施設情報
| コンビニ |
ファミリーマート/神田鍛冶町三丁目店/65m(徒歩1分) ローソン/LTF万世本/280m(徒歩4分) |
|---|---|
| 郵便局/銀行 |
三井住友銀行/ATM 東京メトロ神田駅出張所/[ATM]平日7:00~24:00、土曜7:00~24:00、日曜7:00~21:00/200m(徒歩3分) 琉球銀行/東京支店/[営業時間]平 日 9:00-15:00 土・日・祝 - [ATM]平 日 9:00-15:00 土・日・祝 -/240m(徒歩3分) |
| 飲食店 |
上海厨房/11:00~14:00(L.O.)/17:00~23:00(L.O.)/7m(徒歩1分) さんこう苑/11時30分~23時30分/51m(徒歩1分) |
| カフェ |
ドトール/神田北口店/[営業時間]平 日:06:30 - 20:30 備 考:金曜日営業時間:6:30-21:00 土曜日:08:00 - 20:00 日 祝:08:00 - 20:00 [休業日]なし [備考]総席数:85 禁煙席:49 喫煙席:36/240m(徒歩3分) 珈琲 青木堂/8時00分~18時00分/180m(徒歩3分) |
| コインパーキング |
パークアベニュー/神田須田町第1 [料金] 昼 15分/200円 夜 60分/100円 [台数]2 NPC24H/神田須田町 [料金] 【 全日 】 15分/300円 [最大料金] 【 月~土 】 3時間毎 2400円 当日最大 4200円(24時切替) 【 日祝 】 当日最大 2000円(24時切替) 【 全日 】 夜間最大 800円(20時~8時) [台数]6台 |
周辺地図
神田AKビルは、千代田区神田須田町にある貸事務所物件で東京メトロ丸ノ内線淡路町駅、東京メトロ銀座線、JRの神田駅です。1978年竣工で基準階が約35坪の賃貸オフィスビルです。床はタイルカーペットとなっています。空調は個別空調です。エレベーターは1基あり、セキュリティは機械警備となっています。耐震補強工事が完了しており安心の千代田区神田須田町の貸事務所です。
全フロア情報
更新日:2025年11月6日
| 階 | 面積 | 賃料 | 共益費 | 敷金 | 入居日 | お問合せ | お気に入り | |
|---|---|---|---|---|---|---|---|---|
| 2F |
35.65 坪 117.85 ㎡ |
※現在空室情報はございません |
※現在空室情報は 確認する |
|||||
|
2F
(A区画) |
21.34 坪 70.55 ㎡ |
※現在空室情報はございません |
※現在空室情報は 確認する |
|||||
|
3F
(B区画) |
17.9 坪 59.17 ㎡ |
※現在空室情報はございません |
※現在空室情報は 確認する |
|||||
|
4F
(A区画) |
17.36 坪 57.39 ㎡ |
※現在空室情報はございません |
※現在空室情報は 確認する |
|||||
|
4F
(B区画) |
17.9 坪 59.17 ㎡ |
※現在空室情報はございません |
※現在空室情報は 確認する |
|||||
|
5F
(A区画) |
17.36 坪 57.39 ㎡ |
※現在空室情報はございません |
※現在空室情報は 確認する |
|||||
| 6F |
33.06 坪 109.29 ㎡ |
429,780 円 13,000 円(坪) |
99,180 円 3,000 円(坪) |
3,438,240 円 8 ヶ月 |
2019/02 |
|
|
|
| 7F |
33.6 坪 111.07 ㎡ |
※現在空室情報はございません |
※現在空室情報は 確認する |
|||||
|
8F
(A区画) |
14.69 坪 48.56 ㎡ |
※現在空室情報はございません |
※現在空室情報は 確認する |
|||||
|
9F
(A区画) |
28 坪 92.56 ㎡ |
※現在空室情報はございません |
※現在空室情報は 確認する |
|||||
お問い合わせ
似た条件の物件はこちら
-
大手町ゲートビルディング
東京都千代田区内神田1-31-11
坪数:34.8 坪
坪単価:70,402 円(坪)
-
新八光ビル
東京都千代田区内神田3-22-9
坪数:44.17 坪
坪単価:20,000 円(坪)
-
神田中沢ビル
東京都千代田区外神田6-14-12
坪数:28.5 坪
坪単価:10,526 円(坪)
-
神田松楠ビル
東京都千代田区内神田2-7-10
坪数:37.07 坪
坪単価:15,000 円(坪)
-
KSKビル
東京都千代田区外神田5-1-15
坪数:39.4 坪
坪単価:16,000 円(坪)
-
エスポワールビル
東京都千代田区神田紺屋町38
坪数:36.67 坪
坪単価:13,000 円(坪)
-
ism神田
東京都千代田区神田東松下町48
坪数:31.72 坪
坪単価:16,000 円(坪)
-
神田荒木ビル
東京都千代田区神田須田町1-14-6
坪数:30.03 坪
坪単価:18,000 円(坪)
-
大栄堂ビル
東京都千代田区神田小川町3-6
坪数:30 坪
坪単価:20,000 円(坪)
-
藤川ビル
東京都千代田区神田佐久間町1-27
坪数:28 坪
坪単価:10,000 円(坪)
関連エリアから探す
- 内神田
- 神田淡路町
- 神田小川町
- 神田鍛冶町
- 神田須田町
- 神田駿河台
- 神田多町
- 神田司町
- 神田錦町
- 神田美土代町
- 岩本町
- 鍛冶町
- 神田岩本町
- 神田北乗物町
- 神田紺屋町
- 神田富山町
- 神田西福田町
- 神田東松下町
- 神田東紺屋町
- 神田美倉町
- 東神田
- 神田相生町
- 神田和泉町
- 神田佐久間町
- 神田佐久間河岸
- 神田練塀町
- 神田花岡町
- 神田松永町
- 外神田
- 神田平河町