YTタナカビルディング(物件No:21581178)
YTタナカビルディングは目黒区三田にある賃貸事務所です。最寄駅はJR線の恵比寿駅から徒歩7分、東京メトロ日比谷線の恵比寿駅から徒歩8分です。1991年竣工の基準階面積が86.58坪です。設備としては、エレベーターが1基あります。トイレは男女別です。空調は個別空調です。床仕様は2WAYです。天高は2450mmです。耐震設計となっている、ビジネス街として人気のある目黒区三田の賃貸オフィスです。
| 階 | 面積 | 賃料 | 共益費 | 敷金 | 入居日 | お問合せ | お気に入り |
|---|---|---|---|---|---|---|---|
| 3F |
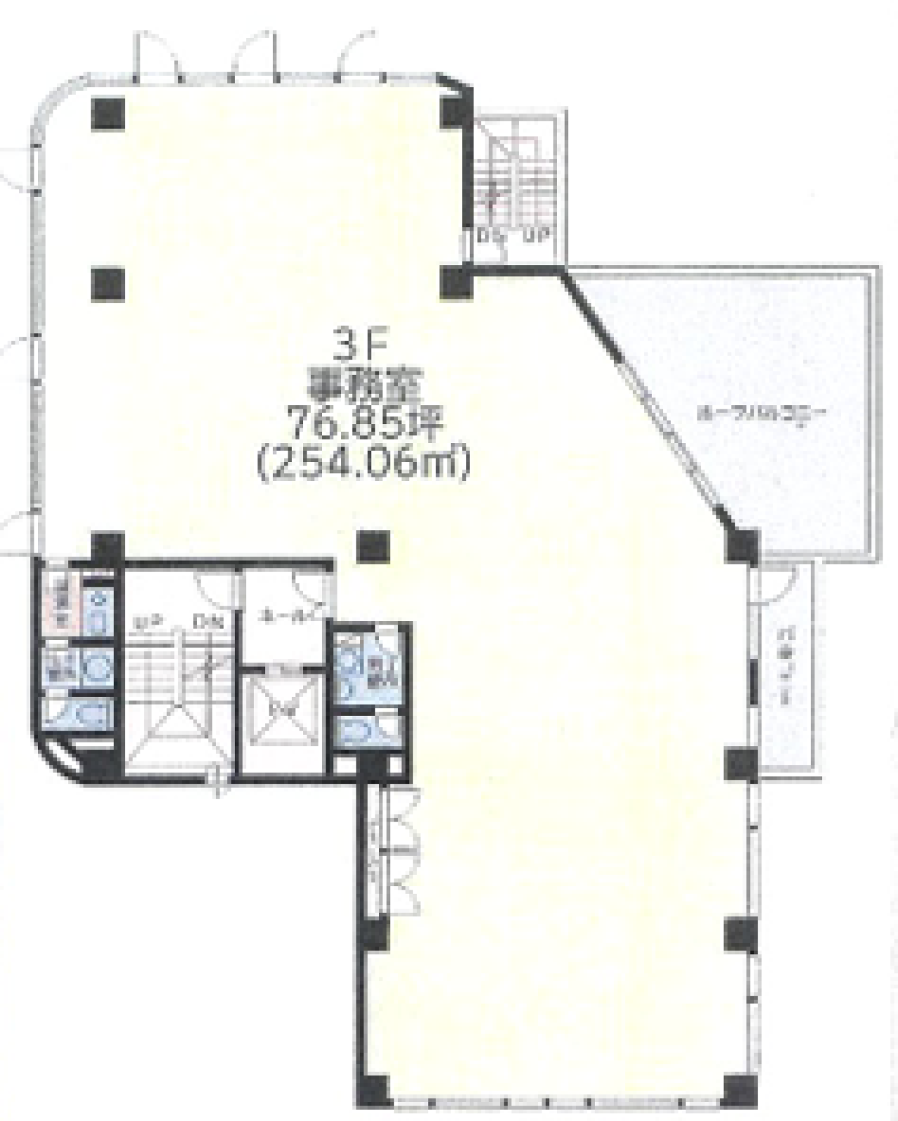
76.85 坪 254.05 ㎡ |
1,613,850 円 21,000 円(坪) |
268,975 円 3,500 円(坪) |
12,910,800 円 8 ヶ月 |
2026/03 |
|
|
| 階 | 面積 | 賃料 | 共益費 | 敷金 | 入居日 | お問合せ | お気に入り |
|---|---|---|---|---|---|---|---|
| 3F |
76.85 坪 254.05 ㎡ |
1,613,850 円 21,000 円(坪) |
268,975 円 3,500 円(坪) |
12,910,800 円 8 ヶ月 |
2026/03 |
|
|
-
物件情報
-
設備情報
- トイレ
- 男女別
- 床
- 2WAY
- 空調
- 個別空調
- セキュリティ
- -
- 駐車場
- -
- 会議室
- -
- エレベーター
- 1基
- 天井高
- 2450mm
-
間取り図
-
近隣相場情報
三田1丁目(50~100坪)の相場
24500 円 (坪)
※ビルサク調べ
周辺施設情報
| コンビニ |
セブンイレブン/港区一の橋/400m(徒歩5分) ファミリーマート/三田一丁目店/220m(徒歩3分) |
|---|---|
| 郵便局/銀行 |
セブン銀行/港区三田1丁目店/[営業時間]24時間営業 [備考]1 台/240m(徒歩3分) ローソン銀行/港一の橋共同出張所/[営業時間]24時間 [備考]ご利用可能な金融機関 当店のATM管理はローソン銀行です/350m(徒歩5分) |
| 飲食店 |
インド料理チェルシー/11時00分~15時00分、17時00分~23時00分/300m(徒歩4分) ばんげ/18時00分~0時00分/110m(徒歩1分) |
| カフェ |
タリーズ/麻布十番駅前店/[営業時間]平日:8:00~20:00(L.O.19:30) 土 :8:00~20:00(L.O.19:30) 日祝:8:00~20:00(L.O.19:30)/450m(徒歩6分) 天のや/12時00分~15時00分、18時30分~22時00分/500m(徒歩7分) |
| コインパーキング |
NPC24H/麻布十番 [料金] 20分/400円(8時~24時) 30分/100円(0時~8時) [最大料金] 12時間毎 3500円 [台数]7台 タイムズ駐車場/三田第13 [料金] [料金][月~土]通常料金 / 00:00-00:00 20分 300円 [料金][日・祝]通常料金 / 07:00-19:00 [最大料金] [料金][月~土]最大料金500円 [料金][日・祝] 最大料金500円 [台数]3 |
周辺地図
YTタナカビルディングは目黒区三田にある賃貸事務所です。最寄駅はJR線の恵比寿駅から徒歩7分、東京メトロ日比谷線の恵比寿駅から徒歩8分です。1991年竣工の基準階面積が86.58坪です。設備としては、エレベーターが1基あります。トイレは男女別です。空調は個別空調です。床仕様は2WAYです。天高は2450mmです。耐震設計となっている、ビジネス街として人気のある目黒区三田の賃貸オフィスです。
全フロア情報
更新日:2025年11月11日
| 階 | 面積 | 賃料 | 共益費 | 敷金 | 入居日 | お問合せ | お気に入り | |
|---|---|---|---|---|---|---|---|---|
| 2F |
86.58 坪 286.21 ㎡ |
※現在空室情報はございません |
※現在空室情報は 確認する |
|||||
| 3F |
76.85 坪 254.05 ㎡ |
1,613,850 円 21,000 円(坪) |
268,975 円 3,500 円(坪) |
12,910,800 円 8 ヶ月 |
2026/03 |
|
|
|
| 5F |
67.21 坪 222.18 ㎡ |
※現在空室情報はございません |
※現在空室情報は 確認する |
|||||
お問い合わせ
似た条件の物件はこちら
-
目黒Gビル
東京都目黒区目黒1-4-16
坪数:72.59 坪
坪単価:19,000 円(坪)
-
Daiwa目黒スクエア
東京都目黒区目黒1-6-17
坪数:73.61 坪
坪単価:24,000 円(坪)