神宮外苑ビル(物件No:21488173)
神宮外苑ビルは、港区北青山にある地下1階、地上10階建ての賃貸事務所です。最寄駅は東京メトロ銀座線の外苑前駅から徒歩2分、東京メトロ千代田線の表参道駅から徒歩10分、東京メトロ半蔵門線の青山一丁目駅から徒歩8分です。1987年竣工の鉄骨鉄筋コンクリート造です。設備としては、エレベーターが1基あります。セキュリティは機械警備です。トイレは室内男女別です。空調は個別空調です。床仕様はタイルカーペットです。天高は2400mmです。耐震設計となっている、最寄駅から近くて便利な港区北青山の賃貸オフィスです。
| 階 | 面積 | 賃料 | 共益費 | 敷金 | 入居日 | お問合せ | お気に入り |
|---|---|---|---|---|---|---|---|
| 5F |
73.69 坪 243.6 ㎡ |
1,400,110 円 19,000 円(坪) |
無 |
14,001,100 円 10 ヶ月 |
2025/10/15 |
|
|
| 階 | 面積 | 賃料 | 共益費 | 敷金 | 入居日 | お問合せ | お気に入り |
|---|---|---|---|---|---|---|---|
| 5F |
73.69 坪 243.6 ㎡ |
1,400,110 円 19,000 円(坪) |
無 |
14,001,100 円 10 ヶ月 |
2025/10/15 |
|
|
-
物件情報
-
設備情報
- トイレ
- 室内男女別
- 床
- -
- 空調
- 個別空調(吊り下げ式)
- セキュリティ
- 有
- 駐車場
- 無
- 会議室
- -
- エレベーター
- 1基
- 天井高
- 2350mm
-
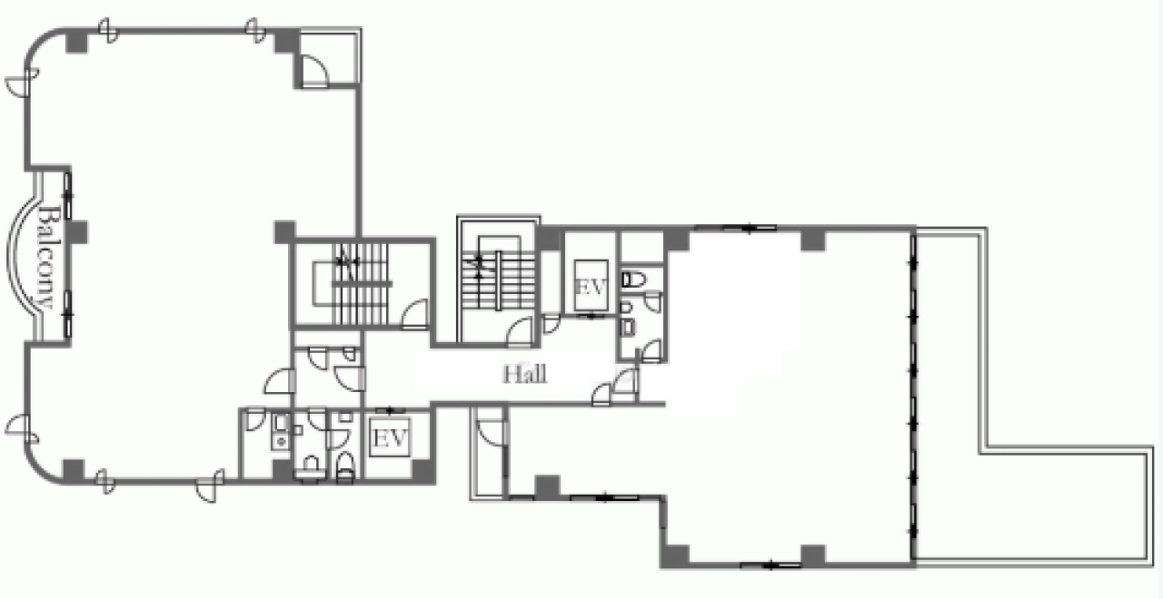
間取り図
-
近隣相場情報
北青山2丁目(50~100坪)の相場
24568 円 (坪)
※ビルサク調べ
周辺施設情報
| コンビニ |
セブンイレブン/神宮外苑西/550m(徒歩7分) ファミリーマート/日本青年館店/400m(徒歩5分) |
|---|---|
| 郵便局/銀行 |
郵便局/外苑前/[駐車場]なし [取扱]郵便/貯金/保険/ATM/250m(徒歩3分) 八十二銀行/青山支店/[営業時間] [窓口]平日 9:00~15:00 土 - 日祝 - [ATM]平日 8:45~17:00 土 - 日祝 - [備考]1.【新型コロナ対策】平日11:30~12:30はお昼休みのため、窓口を休業いたします。2.土・日・祝日および12/31~1/3は窓口を休業いたします/1000m(徒歩13分) |
| 飲食店 |
青山ふぐ一郎/【月~金】17:00~23:30(料理L.O.22:40、ドリンクL.O.23:10)【土・日・祝】15:00~23:3/550m(徒歩7分) くいしんぼ 青山店/11時00分~23時00分/61m(徒歩1分) |
| カフェ |
スターバックス/南青山2丁目店/[営業時間]月~金:7:00~22:00/土:8:00~22:00/日祝:8:00~21:00 [休業日]不定休 [備考]無線LAN:STARBUCKS/docomo/au/Softbank/Wi2 300/160m(徒歩2分) ストリーマーエスプレッソ神宮球場/公式戦開催日に営業/300m(徒歩4分) |
| コインパーキング |
NTTル・パルク/南青山第2 [料金] 昼 8:00-22:00 20分 400円 夜 22:00-8:00 60分 100円 [最大料金] 夜間最大料金 600円(繰返しOK) <日祝限定>最大料金駐車後 24時間 1800円(1回限り) [台数]:9台 タイムズ駐車場/北青山TEPIA [料金] [全日]通常料金 / 00:00-00:00 15分 200円 [最大料金] [全日]駐車後5時間 最大料金2400円 [台数]30 |
周辺地図
神宮外苑ビルは、港区北青山にある地下1階、地上10階建ての賃貸事務所です。最寄駅は東京メトロ銀座線の外苑前駅から徒歩2分、東京メトロ千代田線の表参道駅から徒歩10分、東京メトロ半蔵門線の青山一丁目駅から徒歩8分です。1987年竣工の鉄骨鉄筋コンクリート造です。設備としては、エレベーターが1基あります。セキュリティは機械警備です。トイレは室内男女別です。空調は個別空調です。床仕様はタイルカーペットです。天高は2400mmです。耐震設計となっている、最寄駅から近くて便利な港区北青山の賃貸オフィスです。
全フロア情報
更新日:2025年11月13日
| 階 | 面積 | 賃料 | 共益費 | 敷金 | 入居日 | お問合せ | お気に入り | |
|---|---|---|---|---|---|---|---|---|
| B1-1F |
29.92 坪 98.91 ㎡ |
※現在空室情報はございません |
※現在空室情報は 確認する |
|||||
|
1F
(1号館区画) |
58.7 坪 194.05 ㎡ |
※現在空室情報はございません |
※現在空室情報は 確認する |
|||||
|
2F
(1号館区画) |
58.67 坪 193.95 ㎡ |
※現在空室情報はございません |
※現在空室情報は 確認する |
|||||
|
2F
(2号館区画) |
36.6 坪 120.99 ㎡ |
※現在空室情報はございません |
※現在空室情報は 確認する |
|||||
|
3F
(1号館区画) |
58.7 坪 194.05 ㎡ |
※現在空室情報はございません |
※現在空室情報は 確認する |
|||||
|
3F
(2号館区画) |
40.9 坪 135.21 ㎡ |
※現在空室情報はございません |
※現在空室情報は 確認する |
|||||
|
4F
(1号館区画) |
58.7 坪 194.05 ㎡ |
※現在空室情報はございません |
※現在空室情報は 確認する |
|||||
|
4F
(2号館区画) |
47.02 坪 155.44 ㎡ |
846,371 円 18,000 円(坪) |
込 |
7,362,000 円 10 ヶ月 |
即日 |
|
|
|
| 5F |
73.69 坪 243.6 ㎡ |
1,400,110 円 19,000 円(坪) |
無 |
14,001,100 円 10 ヶ月 |
2025/10/15 |
|
|
|
|
5F
(1号館区画) |
58.7 坪 194.05 ㎡ |
※現在空室情報はございません |
※現在空室情報は 確認する |
|||||
|
5F
(1号館2区画) |
32.78 坪 108.38 ㎡ |
777,100 円 23,707 円(坪) |
相談 |
7,771,000 円 10 ヶ月 |
2025/10 |
|
|
|
|
5F
(2号館区画) |
40.9 坪 135.21 ㎡ |
981,600 円 24,000 円(坪) |
込 |
9,816,000 円 10 ヶ月 |
2025/10/15 |
|
|
|
|
6F
(1号館区画) |
58.7 坪 194.05 ㎡ |
※現在空室情報はございません |
※現在空室情報は 確認する |
|||||
|
6F
(1号館1区画) |
25.05 坪 82.81 ㎡ |
※現在空室情報はございません |
※現在空室情報は 確認する |
|||||
|
6F
(2号館区画) |
40.9 坪 135.21 ㎡ |
※現在空室情報はございません |
※現在空室情報は 確認する |
|||||
|
7F
(1号館区画) |
58.7 坪 194.05 ㎡ |
※現在空室情報はございません |
※現在空室情報は 確認する |
|||||
|
7F
(1号館1区画) |
19.5 坪 64.46 ㎡ |
※現在空室情報はございません |
※現在空室情報は 確認する |
|||||
|
7F
(2号館区画) |
40.9 坪 135.21 ㎡ |
※現在空室情報はございません |
※現在空室情報は 確認する |
|||||
|
8F
(1号館区画) |
58.7 坪 194.05 ㎡ |
※現在空室情報はございません |
※現在空室情報は 確認する |
|||||
|
8F
(2号館区画) |
40.9 坪 135.21 ㎡ |
※現在空室情報はございません |
※現在空室情報は 確認する |
|||||
|
9F
(1号館区画) |
58.7 坪 194.05 ㎡ |
※現在空室情報はございません |
※現在空室情報は 確認する |
|||||
|
9F
(2号館区画) |
40.9 坪 135.21 ㎡ |
※現在空室情報はございません |
※現在空室情報は 確認する |
|||||
|
10F
(1号館区画) |
58.7 坪 194.05 ㎡ |
※現在空室情報はございません |
※現在空室情報は 確認する |
|||||
|
10F
(2号館区画) |
40.9 坪 135.21 ㎡ |
※現在空室情報はございません |
※現在空室情報は 確認する |
|||||
お問い合わせ
似た条件の物件はこちら
-
NH青山ビル
東京都港区北青山3-2-5
坪数:67.1 坪
坪単価:22,000 円(坪)
-
GOODWILL青山
東京都港区南青山2-4-16
坪数:59.42 坪
坪単価:23,000 円(坪)
-
リビエラ南青山ビル
東京都港区南青山3-3-3
坪数:67.32 坪
坪単価:30,000 円(坪)
-
青山サンライトビル
東京都港区南青山6-5-55
坪数:83.77 坪
坪単価:20,000 円(坪)
-
Victory Aoyama
東京都港区南青山6-8-11
坪数:71.67 坪
坪単価:36,000 円(坪)