シャトー高輪(物件No:21485144)
シャトー高輪は、港区高輪にある貸事務所物件です。最寄り駅は、JR線、京急本線の品川駅です。1968年竣工の賃貸オフィスビルです。空調は個別空調で、トイレは男女別です。有人警備で、エレベーターは2基あります。品川駅から徒歩3分と、アクセスの良い港区高輪の貸事務所です。
| 階 | 面積 | 賃料 | 共益費 | 敷金 | 入居日 | お問合せ | お気に入り | |
|---|---|---|---|---|---|---|---|---|
|
6F
(603区画) |
65.43 坪 216.3 ㎡ |
※現在空室情報はございません |
※現在空室情報は 確認する |
|||||
| 階 | 面積 | 賃料 | 共益費 | 敷金 | 入居日 | お問合せ | お気に入り | |
|---|---|---|---|---|---|---|---|---|
|
6F
(603区画) |
65.43 坪 216.3 ㎡ |
※現在空室情報はございません |
※現在空室情報は 確認する |
|||||
-
物件情報
-
設備情報
- トイレ
- -
- 床
- タイルカーペット
- 空調
- 個別空調
- セキュリティ
- -
- 駐車場
- 無
- 会議室
- -
- エレベーター
- 2基
- 天井高
- -
-
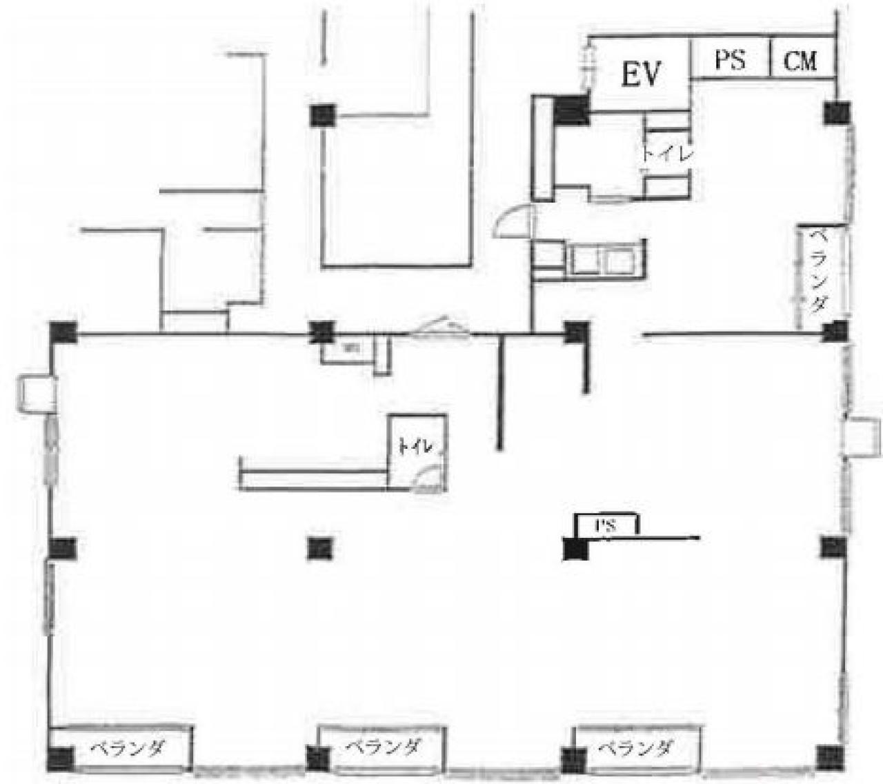
間取り図
-
近隣相場情報
高輪3丁目(50~100坪)の相場
21125 円 (坪)
※ビルサク調べ
周辺施設情報
| コンビニ |
ポプラ/生活彩家 シナガワグース店/220m(徒歩2分) セブンイレブン/品川駅前/110m(徒歩1分) |
|---|---|
| 郵便局/銀行 |
りそな銀行/ATM 品川駅前出張所/[営業時間]平日/8:00~21:00 土・日・祝/8:00~21:00/64m(徒歩1分) 京葉銀行/品川支店【事業性融資専門店舗】/[営業時間]平日 9:00~15:00 [ATM]ATMは設置しておりません。/160m(徒歩1分) |
| 飲食店 |
鉄板焼 しゃぶしゃぶ ステーキハウス 桂/11時30分~15時00分、17時00分~21時30分/130m(徒歩1分) 笑笑 品川高輪口駅前店/17時00分~1時00分/250m(徒歩3分) |
| カフェ |
プロント/品川駅高輪口店/[営業時間]平日:カフェ 7:00~17:30 バー 17:30~23:00 土曜:カフェ 7:00~17:30 バー 17:30~23:00 日曜:カフェ 8:00~18:00 祝日:カフェ 8:00~18:00/110m(徒歩1分) ルノアール/品川高輪口店/[営業時間]平日 :7:30-23:00 土曜日:7:30-23:00 日祝日:7:30-22:00/130m(徒歩1分) |
| コインパーキング |
タイムズ駐車場/シナガワグース [料金] [料金][全日]通常料金 / 07:00-22:00 60分 500円 [料金][全日]通常料金 / 22:00-07:00 60分 100円 [最大料金] [料金][全日]当日1日最大料金1800円(24時迄) [台数]258 タイムズ駐車場/高輪第21 [料金] [料金][全日]通常料金 / 00:00-00:00 30分 300円 [最大料金] [全日]駐車後24時間 最大料金2000円 [全日] 20:00-08:00 最大料金500円 [台数]15 |
周辺地図
シャトー高輪は、港区高輪にある貸事務所物件です。最寄り駅は、JR線、京急本線の品川駅です。1968年竣工の賃貸オフィスビルです。空調は個別空調で、トイレは男女別です。有人警備で、エレベーターは2基あります。品川駅から徒歩3分と、アクセスの良い港区高輪の貸事務所です。
全フロア情報
更新日:2025年11月12日
| 階 | 面積 | 賃料 | 共益費 | 敷金 | 入居日 | お問合せ | お気に入り | |
|---|---|---|---|---|---|---|---|---|
|
1F
(103区画) |
58.32 坪 192.79 ㎡ |
※現在空室情報はございません |
※現在空室情報は 確認する |
|||||
|
2F
(204区画) |
18.55 坪 61.32 ㎡ |
※現在空室情報はございません |
※現在空室情報は 確認する |
|||||
|
2F
(205区画) |
17.64 坪 58.32 ㎡ |
※現在空室情報はございません |
※現在空室情報は 確認する |
|||||
|
2F
(206区画) |
17.85 坪 59.01 ㎡ |
※現在空室情報はございません |
※現在空室情報は 確認する |
|||||
| 3F |
65 坪 214.88 ㎡ |
※現在空室情報はございません |
※現在空室情報は 確認する |
|||||
|
3F
(303区画) |
9.92 坪 32.79 ㎡ |
※現在空室情報はございません |
※現在空室情報は 確認する |
|||||
|
5F
(504区画) |
19.36 坪 64 ㎡ |
※現在空室情報はございません |
※現在空室情報は 確認する |
|||||
| 6F |
65.43 坪 216.3 ㎡ |
※現在空室情報はございません |
※現在空室情報は 確認する |
|||||
|
6F
(603区画) |
65.43 坪 216.3 ㎡ |
※現在空室情報はございません |
※現在空室情報は 確認する |
|||||
|
7F
(702区画) |
10.79 坪 35.67 ㎡ |
※現在空室情報はございません |
※現在空室情報は 確認する |
|||||
|
7F
(704区画) |
15.64 坪 51.7 ㎡ |
※現在空室情報はございません |
※現在空室情報は 確認する |
|||||
|
7F
(705区画) |
18.12 坪 59.9 ㎡ |
※現在空室情報はございません |
※現在空室情報は 確認する |
|||||
|
7F
(705-1区画) |
18.12 坪 59.9 ㎡ |
※現在空室情報はございません |
※現在空室情報は 確認する |
|||||
|
7F
(705-2区画) |
15.63 坪 51.67 ㎡ |
※現在空室情報はございません |
※現在空室情報は 確認する |
|||||
|
8F
(806区画) |
18.06 坪 59.71 ㎡ |
180,000 円 9,967 円(坪) |
込 |
360,000 円 2 ヶ月 |
相談 |
|
|
|
|
9F
(903区画) |
16.03 坪 53 ㎡ |
※現在空室情報はございません |
※現在空室情報は 確認する |
|||||
| 未定F |
18 坪 59.49 ㎡ |
※現在空室情報はございません |
※現在空室情報は 確認する |
|||||
お問い合わせ
似た条件の物件はこちら
-
都漁連水産会館
東京都港区港南4-7-8
坪数:57.74 坪
坪単価:10,992 円(坪)
-
白金台ビル
東京都港区白金台2-10-2
坪数:71.44 坪
坪単価:13,998 円(坪)
-
テイケン東京ビル
東京都港区高輪2-17-13
坪数:61.9 坪
坪単価:16,000 円(坪)
-
バルビゾン白金台ビル
東京都港区白金台4-19-20
坪数:70.95 坪
坪単価:26,075 円(坪)
-
高輪偕成ビル
東京都港区高輪3-4-1
坪数:66.07 坪
坪単価:12,500 円(坪)
-
HOUSE TAKANAWA
東京都港区高輪4-18-11
坪数:67.3 坪
坪単価:17,831 円(坪)
-
315白金台
東京都港区白金台3-15-5
坪数:50.08 坪
坪単価:15,076 円(坪)
-
翔和港南ビル
東京都港区港南2-4-8
坪数:54.37 坪
坪単価:16,400 円(坪)