日本女子会館ビル(物件No:21187143)
日本女子会館ビルは港区芝公園にある地下1階、地上7階建ての賃貸事務所です。最寄駅は都営三田線の芝公園駅から徒歩3分、都営三田線の御成門駅から徒歩7分、都営大江戸線の大門駅から徒歩5分、JR線の浜松町駅から徒歩10分です。1974年9月竣工の基準階面積が170.6坪の鉄骨鉄筋コンクリート造です。設備としては、エレベーターが3基、駐車場、貸し会議室もあります。セキュリティは機械警備と有人警備です。トイレは室外男女別です。空調は個別空調です。床仕様はタイルカーペットです。複数路線利用可能なアクセスの良い港区芝公園の賃貸オフィスです。
| 階 | 面積 | 賃料 | 共益費 | 敷金 | 入居日 | お問合せ | お気に入り | 
|---|---|---|---|---|---|---|---|
| 1F (6区画) | 21.2 坪 70.08 ㎡ | 265,000 円 12,500 円(坪) | 53,000 円 2,500 円(坪) | 1,590,000 円 6 ヶ月 | 2025/12 |  |  | 
| 階 | 面積 | 賃料 | 共益費 | 敷金 | 入居日 | お問合せ | お気に入り | 
|---|---|---|---|---|---|---|---|
| 1F (6区画) | 21.2 坪 70.08 ㎡ | 265,000 円 12,500 円(坪) | 53,000 円 2,500 円(坪) | 1,590,000 円 6 ヶ月 | 2025/12 |  |  | 
- 
                    物件情報
- 
                        設備情報- トイレ
- 室外男女別
- 床
- -
- 空調
- 個別空調
- セキュリティ
- 有
- 駐車場
- 有
- 会議室
- 有
- エレベーター
- 3基
- 天井高
- -
 
- 
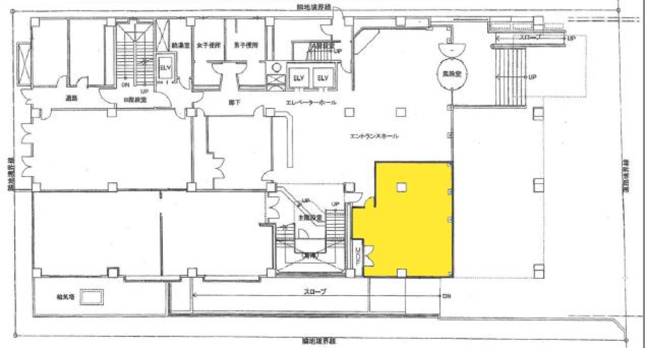
                        間取り図  
- 
                    近隣相場情報芝公園2丁目(20~30坪)の相場 17454 円 (坪) 
 ※ビルサク調べ
周辺施設情報
| コンビニ | セブンイレブン/芝大門2丁目/450m(徒歩6分) NewDays/浜松町/700m(徒歩9分) | 
|---|---|
| 郵便局/銀行 | ローソン銀行/ザ・プリンスパークタワー東京共同出張所/[営業時間]7:00~23:00 [取扱]海外発行カード対応、視覚障害者対応 [備考]ご利用可能な金融機関 当店のATM管理はローソン銀行です/600m(徒歩8分) 郵便局/ATM デイリーヤマザキ浜松町クレアタワー店内出張所/[ATM]平日0:05~23:55、土曜0:05~23:55、日曜0:05~23:55/600m(徒歩8分) | 
| 飲食店 | 麺屋虎杖 大門浜松町店/11時00分~3時30分/500m(徒歩6分) フォンテン・ド・芝/7時00分~21時00分/160m(徒歩2分) | 
| カフェ | アイビー館/7時30分~13時00分/500m(徒歩6分) 久緒羅珈琲/11時00分~19時00分/260m(徒歩3分) | 
| コインパーキング | ナビパーク/芝大門第1 [料金] 全曜日 24:00~24:00 15分/300円 [最大料金] 夜間最大(全曜日) 20:00~8:00 800円 12時間最大(日・祝) 2,800円 3時間最大(平日・土) 2,600円 [台数]2台 その他区画 0台 タイムズ駐車場/ザ・プリンスパークタワー東京 [料金] [月~金]通常料金 / 8:00~20:00 30分 500円 20:00~8:00 60分 100円 [土・日・祝]通常料金 / 8:00~20:00 30分 500円 20:00~8:00 60分 100円 [最大料金] [月~金]当日1日最大料金2700円(24時迄) [台数]264 | 
周辺地図
日本女子会館ビルは港区芝公園にある地下1階、地上7階建ての賃貸事務所です。最寄駅は都営三田線の芝公園駅から徒歩3分、都営三田線の御成門駅から徒歩7分、都営大江戸線の大門駅から徒歩5分、JR線の浜松町駅から徒歩10分です。1974年9月竣工の基準階面積が170.6坪の鉄骨鉄筋コンクリート造です。設備としては、エレベーターが3基、駐車場、貸し会議室もあります。セキュリティは機械警備と有人警備です。トイレは室外男女別です。空調は個別空調です。床仕様はタイルカーペットです。複数路線利用可能なアクセスの良い港区芝公園の賃貸オフィスです。
全フロア情報
更新日:2025年10月17日
| 階 | 面積 | 賃料 | 共益費 | 敷金 | 入居日 | お問合せ | お気に入り | |
|---|---|---|---|---|---|---|---|---|
| 1F (2区画) | 26.55 坪 87.77 ㎡ | ※現在空室情報はございません | ※現在空室情報は 確認する | |||||
| 1F (5区画) | 5.14 坪 16.99 ㎡ | ※現在空室情報はございません | ※現在空室情報は 確認する | |||||
| 1F (6区画) | 21.2 坪 70.08 ㎡ | 265,000 円 12,500 円(坪) | 53,000 円 2,500 円(坪) | 1,590,000 円 6 ヶ月 | 2025/12 |  |  | |
| 4F (2区画) | 16.46 坪 54.41 ㎡ | ※現在空室情報はございません | ※現在空室情報は 確認する | |||||
| 6F | 25.1 坪 82.98 ㎡ | ※現在空室情報はございません | ※現在空室情報は 確認する | |||||
| 6F (1区画) | 51.04 坪 168.73 ㎡ | ※現在空室情報はございません | ※現在空室情報は 確認する | |||||
| 6F (3区画) | 45.41 坪 150.12 ㎡ | 567,625 円 12,500 円(坪) | 113,525 円 2,500 円(坪) | 3,405,750 円 6 ヶ月 | 即日 |  |  | |
| 6F (4区画) | 25.5 坪 84.3 ㎡ | ※現在空室情報はございません | ※現在空室情報は 確認する | |||||
お問い合わせ
似た条件の物件はこちら
- 
                    
                        菅谷ビル東京都港区三田3-3-5 坪数:18 坪 坪単価:22,667 円(坪) 
- 
                    
                        マリンクス・タワー東京都港区海岸1-9-11 坪数:17.73 坪 坪単価:16,000 円(坪) 
- 
                    
                        芝パークビル東京都港区浜松町2-1-15 坪数:26 坪 坪単価:17,000 円(坪) 
- 
                    
                        武藤ビル東京都港区芝浦3-11-9 坪数:21.35 坪 坪単価:12,000 円(坪) 
- 
                    
                        芝サニーハイツ東京都港区芝5-27-4 坪数:17.28 坪 坪単価:11,574 円(坪) 
- 
                    
                        山口ビル東京都港区芝公園1-7-7 坪数:22 坪 坪単価:11,364 円(坪) 
- 
                    
                        EARTH SHIBA BLD東京都港区芝2-10-6 坪数:22.47 坪 坪単価:29,000 円(坪) 
- 
                    
                        奥山ビル東京都港区芝5-20-10 坪数:23.74 坪 坪単価:12,637 円(坪) 
- 
                    
                        TTD PLAZA東京都港区三田1-2-18 坪数:19.97 坪 坪単価:16,024 円(坪) 
 
         
    