池袋デュープレックスビズ(物件No:11981128)
池袋デュープレックスビズは、豊島区池袋にある貸事務所物件です。最寄り駅は、JR線、東武東上線、東京メトロ副都心線、東京メトロ丸ノ内線、東京メトロ有楽町線の池袋駅、東京メトロ副都心線、東京メトロ有楽町線の要町駅です。2008年竣工で、基準階が110.27坪の賃貸オフィスビルです。天高は2700mmで、床はOAフロアとなっております。空調は個別空調で、トイレは男女別です。有人警備、機械警備があり、エレベーターは2基あります。駐車場があり、複数路線利用可能な、アクセスの良い豊島区池袋の貸事務所です。
-
物件情報
-
設備情報
- トイレ
- 男女別
- 床
- フリーアクセス
- 空調
- 個別空調
- セキュリティ
- 有
- 駐車場
- 有
- 会議室
- -
- エレベーター
- 2基
- 天井高
- 2700mm
-
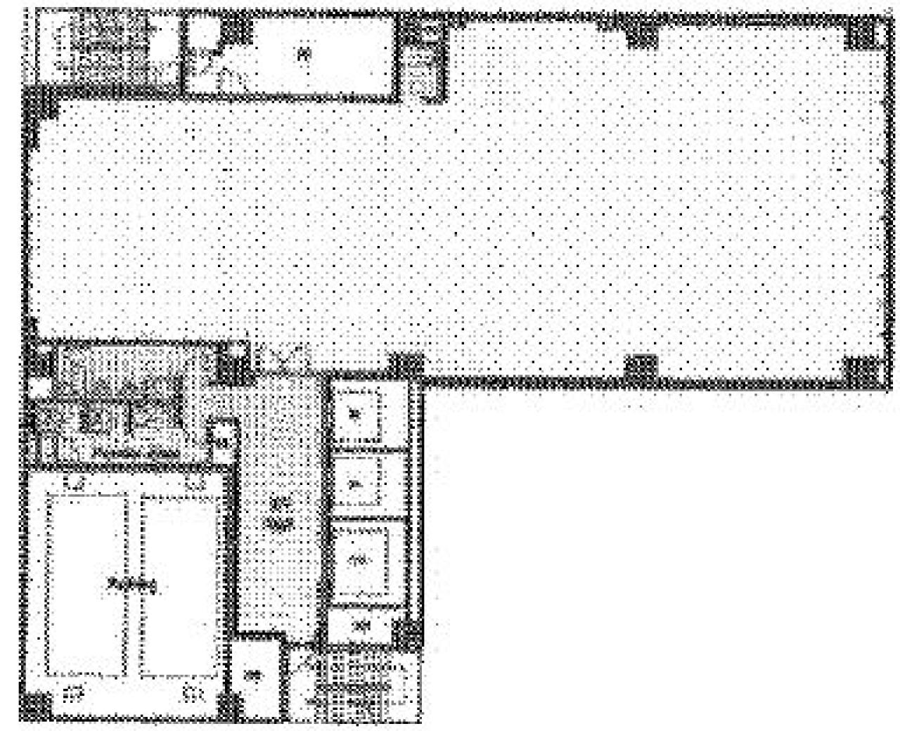
間取り図
-
近隣相場情報
池袋2丁目(50~100坪)の相場
16625 円 (坪)
※ビルサク調べ
周辺施設情報
| コンビニ |
ローソン/池袋二丁目/200m(徒歩2分) セブンイレブン/池袋西一番街中央通り/250m(徒歩4分) |
|---|---|
| 郵便局/銀行 |
西京信用金庫/池袋支店/350m(徒歩5分) セブン銀行/東京メトロ 副都心線 池袋駅/[営業時間]5:00~24:00 [備考]1 台/400m(徒歩5分) |
| 飲食店 |
サクラカフェ&レストラン池袋/7時00分~23時00分/100m(徒歩1分) 玄品 池袋 ふぐ・うなぎ・かに料理/12時00分~22時30分/97m(徒歩2分) |
| カフェ |
星乃珈琲店/池袋東武ホープセンター店/[営業時間]8:00~22:00(LO 21:15)モーニング Open~11:00 ランチ(平日)11:00~14:00 [備考]禁煙/450m(徒歩6分) クリスピークリーム/エチカ池袋店/[営業時間]10:00~21:00/300m(徒歩4分) |
| コインパーキング |
タイムズ/池袋第12 [料金] [月~土]通常料金 8:00~2:00 20分 440円 2:00~8:00 30分 110円 [日・祝]通常料金 8:00~2:00 20分 440円 2:00~8:00 30分 110円 [最大料金] [月~土]最大料金(繰り返し適用)- [日・祝]最大料金(繰り返し適用)当日1日最大料金2200円(24時迄) [台数]3台 NPC24H/池袋ロサ [料金] 全日 8:00~18:00 300円/15分 全日 18:00~8:00 200円/60分 [最大料金] 全日 区間最大 8:00~18:00/2400円 全日 区間最大 18:00~8:00/1400円 [台数]15台 |
周辺地図
池袋デュープレックスビズは、豊島区池袋にある貸事務所物件です。最寄り駅は、JR線、東武東上線、東京メトロ副都心線、東京メトロ丸ノ内線、東京メトロ有楽町線の池袋駅、東京メトロ副都心線、東京メトロ有楽町線の要町駅です。2008年竣工で、基準階が110.27坪の賃貸オフィスビルです。天高は2700mmで、床はOAフロアとなっております。空調は個別空調で、トイレは男女別です。有人警備、機械警備があり、エレベーターは2基あります。駐車場があり、複数路線利用可能な、アクセスの良い豊島区池袋の貸事務所です。
全フロア情報
更新日:2025年11月4日
| 階 | 面積 | 賃料 | 共益費 | 敷金 | 入居日 | お問合せ | お気に入り | |
|---|---|---|---|---|---|---|---|---|
| 1-2F |
128.41 坪 424.5 ㎡ |
※現在空室情報はございません |
※現在空室情報は 確認する |
|||||
| 2F |
85.91 坪 284 ㎡ |
※現在空室情報はございません |
※現在空室情報は 確認する |
|||||
| 4F |
116.02 坪 383.54 ㎡ |
※現在空室情報はございません |
※現在空室情報は 確認する |
|||||
| 5F |
95.36 坪 315.24 ㎡ |
※現在空室情報はございません |
※現在空室情報は 確認する |
|||||
| 6F |
95.36 坪 315.24 ㎡ |
※現在空室情報はございません |
※現在空室情報は 確認する |
|||||
| 7F |
95.36 坪 315.24 ㎡ |
※現在空室情報はございません |
※現在空室情報は 確認する |
|||||
| 8F |
95.36 坪 315.24 ㎡ |
※現在空室情報はございません |
※現在空室情報は 確認する |
|||||
| 9F |
95.36 坪 315.24 ㎡ |
※現在空室情報はございません |
※現在空室情報は 確認する |
|||||
| 12F |
110.27 坪 364.53 ㎡ |
※現在空室情報はございません |
※現在空室情報は 確認する |
|||||
| 13F |
110.27 坪 364.53 ㎡ |
※現在空室情報はございません |
※現在空室情報は 確認する |
|||||
| 14F |
110.27 坪 364.53 ㎡ |
※現在空室情報はございません |
※現在空室情報は 確認する |
|||||
お問い合わせ
似た条件の物件はこちら
-
大河内ビル
東京都豊島区池袋2-52-8
坪数:102 坪
坪単価:10,215 円(坪)
-
タカセセントラルビル
東京都豊島区東池袋1-1-4
坪数:76.34 坪
坪単価:23,000 円(坪)
-
オリックス池袋ビル
東京都豊島区南池袋1-19-6
坪数:85.78 坪
坪単価:30,000 円(坪)
-
千早2丁目一棟貸事務所
東京都豊島区千早2-30-11
坪数:96.69 坪
坪単価:12,411 円(坪)
-
第10野萩ビル
東京都豊島区南池袋2-27-8
坪数:86.25 坪
坪単価:25,055 円(坪)
-
藤久ビル西2号館
東京都豊島区西池袋3-28-1
坪数:76.42 坪
坪単価:15,000 円(坪)
-
光ビル
東京都豊島区長崎1-17-8
坪数:75.9 坪
坪単価:10,780 円(坪)
-
タカセビル本館
東京都豊島区東池袋1-25-8
坪数:104.6 坪
坪単価:16,000 円(坪)
-
東信東池袋ビル
東京都豊島区東池袋5-44-15
坪数:76.14 坪
坪単価:12,000 円(坪)
-
三経33ビル
東京都豊島区東池袋1-4-2
坪数:81.73 坪
坪単価:48,000 円(坪)