COMBOX三軒茶屋(物件No:11685129)
COMBOX三軒茶屋は、世田谷区上馬にある地上8階建ての貸店舗事務所です。最寄駅は東急田園都市線の三軒茶屋駅から徒歩8分、東急田園都市線の駒沢大学駅から徒歩10分です。1991年5月竣工の鉄筋コンクリート造です。設備としては、エレベーターが1基あります。セキュリティは機械警備です。トイレは室内男女共用です。空調は個別空調です。床仕様はタイルカーペットです。耐震設計となっている、コンビニや飲食店などの周辺施設が充実した世田谷区上馬の貸店舗事務所です。
-
物件情報
-
設備情報
- トイレ
- 室内男女共用
- 床
- -
- 空調
- 個別空調
- セキュリティ
- 有
- 駐車場
- 無
- 会議室
- -
- エレベーター
- 1基
- 天井高
- -
-
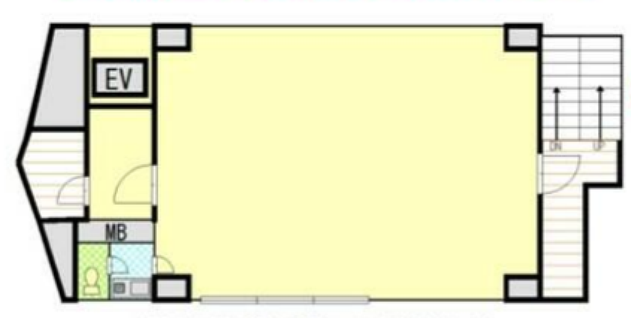
間取り図
-
近隣相場情報
上馬1丁目(20坪以下)の相場
調査中
周辺地図
COMBOX三軒茶屋は、世田谷区上馬にある地上8階建ての貸店舗事務所です。最寄駅は東急田園都市線の三軒茶屋駅から徒歩8分、東急田園都市線の駒沢大学駅から徒歩10分です。1991年5月竣工の鉄筋コンクリート造です。設備としては、エレベーターが1基あります。セキュリティは機械警備です。トイレは室内男女共用です。空調は個別空調です。床仕様はタイルカーペットです。耐震設計となっている、コンビニや飲食店などの周辺施設が充実した世田谷区上馬の貸店舗事務所です。
全フロア情報
更新日:2023年3月8日
階 | 面積 | 賃料 | 共益費 | 敷金 | 入居日 | お問合せ | お気に入り | |
---|---|---|---|---|---|---|---|---|
1F |
19.07 坪 63.04 ㎡ |
※現在空室情報はございません |
※現在空室情報は 確認する |
|||||
2F |
19.58 坪 64.73 ㎡ |
※現在空室情報はございません |
※現在空室情報は 確認する |
|||||
3F |
19.58 坪 64.73 ㎡ |
※現在空室情報はございません |
※現在空室情報は 確認する |
|||||
4F |
19.58 坪 64.73 ㎡ |
※現在空室情報はございません |
※現在空室情報は 確認する |
|||||
5F |
19.58 坪 64.73 ㎡ |
※現在空室情報はございません |
※現在空室情報は 確認する |
|||||
6F |
19.58 坪 64.73 ㎡ |
※現在空室情報はございません |
※現在空室情報は 確認する |
お問い合わせ
似た条件の物件はこちら
-
ASTILE三軒茶屋Ⅱ
東京都世田谷区太子堂3-16-3
坪数:16.14 坪
坪単価:13,507 円(坪)
-
サンライフビル
東京都世田谷区上馬2-27-3
坪数:22.17 坪
坪単価:14,885 円(坪)
-
アルコ駒沢ビル
東京都世田谷区駒沢1-17-15
坪数:17.84 坪
坪単価:12,052 円(坪)
-
NOVEL WORK Sangenjaya
東京都世田谷区太子堂1-4-33
坪数:23.81 坪
坪単価:28,000 円(坪)
-
セラピュアビル
東京都世田谷区太子堂4-7-4
坪数:15.13 坪
坪単価:12,017 円(坪)
-
(仮称)MINOWAIKEJIRI
東京都世田谷区池尻3-18-4
坪数:19.22 坪
坪単価:26,015 円(坪)
-
篠崎ビル
東京都世田谷区下馬1-28-8
坪数:22.04 坪
坪単価:11,343 円(坪)
-
第二集花園ビル
東京都世田谷区駒沢2-11-3
坪数:22.99 坪
坪単価:13,484 円(坪)
-
東洋興信所ビル
東京都世田谷区上馬2-25-7
坪数:18.87 坪
坪単価:13,249 円(坪)
-
コルティーレ世田谷
東京都世田谷区三軒茶屋1-16-8
坪数:23.69 坪
坪単価:18,151 円(坪)