ロイクラトン麹町(物件No:11484087)
ロイクラトン麹町は、千代田区麹町にある貸事務所物件です。最寄り駅は、東京メトロ半蔵門線の半蔵門駅、東京メトロ有楽町線の麹町駅、JR中央・総武線の四ツ谷駅、東京メトロ有楽町線、半蔵門線、南北線の永田町駅、JR中央総武線の市ヶ谷駅です。2008年竣工の賃貸オフィスビルです。天高は2500mmで、床はOAフロアとなっております。空調は個別空調で、トイレは男女別です。機械警備で、エレベーターは1基あります。複数路線利用可能な、アクセスの良い千代田区麹町の貸事務所です。
-
物件情報
-
設備情報
- トイレ
- -
- 床
- フリーアクセス
- 空調
- 個別空調
- セキュリティ
- 有
- 駐車場
- -
- 会議室
- -
- エレベーター
- 1基
- 天井高
- 2500mm
-
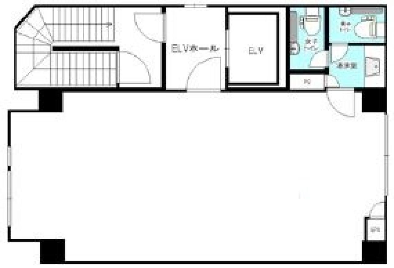
間取り図
-
近隣相場情報
麹町4丁目(20坪以下)の相場
19411 円 (坪)
※ビルサク調べ
周辺施設情報
| コンビニ |
ポプラ/麹町店/350m(徒歩5分) ファミリーマート/半蔵門駅前店/650m(徒歩8分) |
|---|---|
| 郵便局/銀行 |
セブン銀行/麹町5丁目店/[営業時間]24時間営業 [備考]1 台/350m(徒歩5分) ビューアルッテ/JR四ツ谷駅四ツ谷口/[営業時間]全日/4:35~24:50※毎月第二土曜日23:00~翌日8:00はご利用になれません。※駅や店舗の営業時間により、ATM営業時間が変更となる場合があります [取扱]お引出し・残高照会のみ/650m(徒歩8分) |
| 飲食店 |
円居 MADOy 四ツ谷/17:30~23:00(L.O.22:00)/57m(徒歩1分) 魚鈴/17時00分~23時00分/180m(徒歩2分) |
| カフェ |
サンマルクカフェ/半蔵門店/[営業時間]7:00~21:00新型コロナウイルスの影響により、一部営業時間を変更している場合がございます。詳しくは店舗に問い合わせください [休業日]無 [備考]63席/店内全面禁煙/600m(徒歩9分) ジョリー/8時00分~16時00分/350m(徒歩5分) |
| コインパーキング |
タイムズ/麹町ミレニアムガーデン [料金] [全日]通常料金 / 0:00~0:00 20分 440円 [最大料金] [全日]駐車後24時間 最大料金3000円 [台数]101 三井のリパーク/麹町5丁目 [料金] 全日 08:00~22:00 15分/400円 全日 22:00~08:00 60分/100円 [最大料金] 【全日】22:00~8:00以内 最大料金500円 [台数]2 |
周辺地図
ロイクラトン麹町は、千代田区麹町にある貸事務所物件です。最寄り駅は、東京メトロ半蔵門線の半蔵門駅、東京メトロ有楽町線の麹町駅、JR中央・総武線の四ツ谷駅、東京メトロ有楽町線、半蔵門線、南北線の永田町駅、JR中央総武線の市ヶ谷駅です。2008年竣工の賃貸オフィスビルです。天高は2500mmで、床はOAフロアとなっております。空調は個別空調で、トイレは男女別です。機械警備で、エレベーターは1基あります。複数路線利用可能な、アクセスの良い千代田区麹町の貸事務所です。
全フロア情報
更新日:2025年10月16日
| 階 | 面積 | 賃料 | 共益費 | 敷金 | 入居日 | お問合せ | お気に入り | |
|---|---|---|---|---|---|---|---|---|
| 1F |
14.5 坪 47.93 ㎡ |
※現在空室情報はございません |
※現在空室情報は 確認する |
|||||
| 2F |
15.5 坪 51.24 ㎡ |
※現在空室情報はございません |
※現在空室情報は 確認する |
|||||
| 3F |
15.5 坪 51.24 ㎡ |
※現在空室情報はございません |
※現在空室情報は 確認する |
|||||
| 4F |
15.5 坪 51.24 ㎡ |
※現在空室情報はございません |
※現在空室情報は 確認する |
|||||
お問い合わせ
似た条件の物件はこちら
-
ビュロー平河町
東京都千代田区平河町1-7-16
坪数:15.16 坪
坪単価:19,789 円(坪)
-
センダビル
東京都千代田区麹町3-7-9
坪数:19 坪
坪単価:9,000 円(坪)
-
jeVビル
東京都千代田区平河町2-16-16
坪数:18.06 坪
坪単価:12,735 円(坪)
-
喜助九段北ビル
東京都千代田区九段北1-4-7
坪数:14.13 坪
坪単価:12,000 円(坪)
-
プリンス通ビル
東京都千代田区紀尾井町3-33
坪数:17.48 坪
坪単価:15,446 円(坪)
-
浅松ビル
東京都千代田区六番町13-4
坪数:10.63 坪
坪単価:17,000 円(坪)
-
DIK麹町ビル
東京都千代田区麹町1-6-9
坪数:19.27 坪
坪単価:12,500 円(坪)
-
サンライン第14ビル
東京都千代田区九段北4-3-16
坪数:16.34 坪
坪単価:16,524 円(坪)
-
桜ビル
東京都千代田区九段北4-2-2
坪数:16.33 坪
坪単価:12,463 円(坪)
-
Syncs Kojimachi Bldg
東京都千代田区麹町4-2-11
坪数:17.87 坪
坪単価:30,000 円(坪)