トリキンビル(物件No:11480675)
トリキンビルは、千代田区岩本町にある貸事務所物件です。最寄り駅は都営新宿線岩本町駅、東京メトロ日比谷線小伝馬町駅、JR秋葉原駅です。1982年竣工で基準階が37.76坪の賃貸オフィスビルです。トイレは室内男女別で、空調は個別空調です。エレベーターは1基あります。複数路線利用可能で、交通アクセスの良い、千代田区岩本町の貸事務所です。
-
物件情報
-
設備情報
- トイレ
- 室内男女別
- 床
- タイルカーペット
- 空調
- 個別空調
- セキュリティ
- 有
- 駐車場
- 無
- 会議室
- -
- エレベーター
- 1基
- 天井高
- 2480mm
-
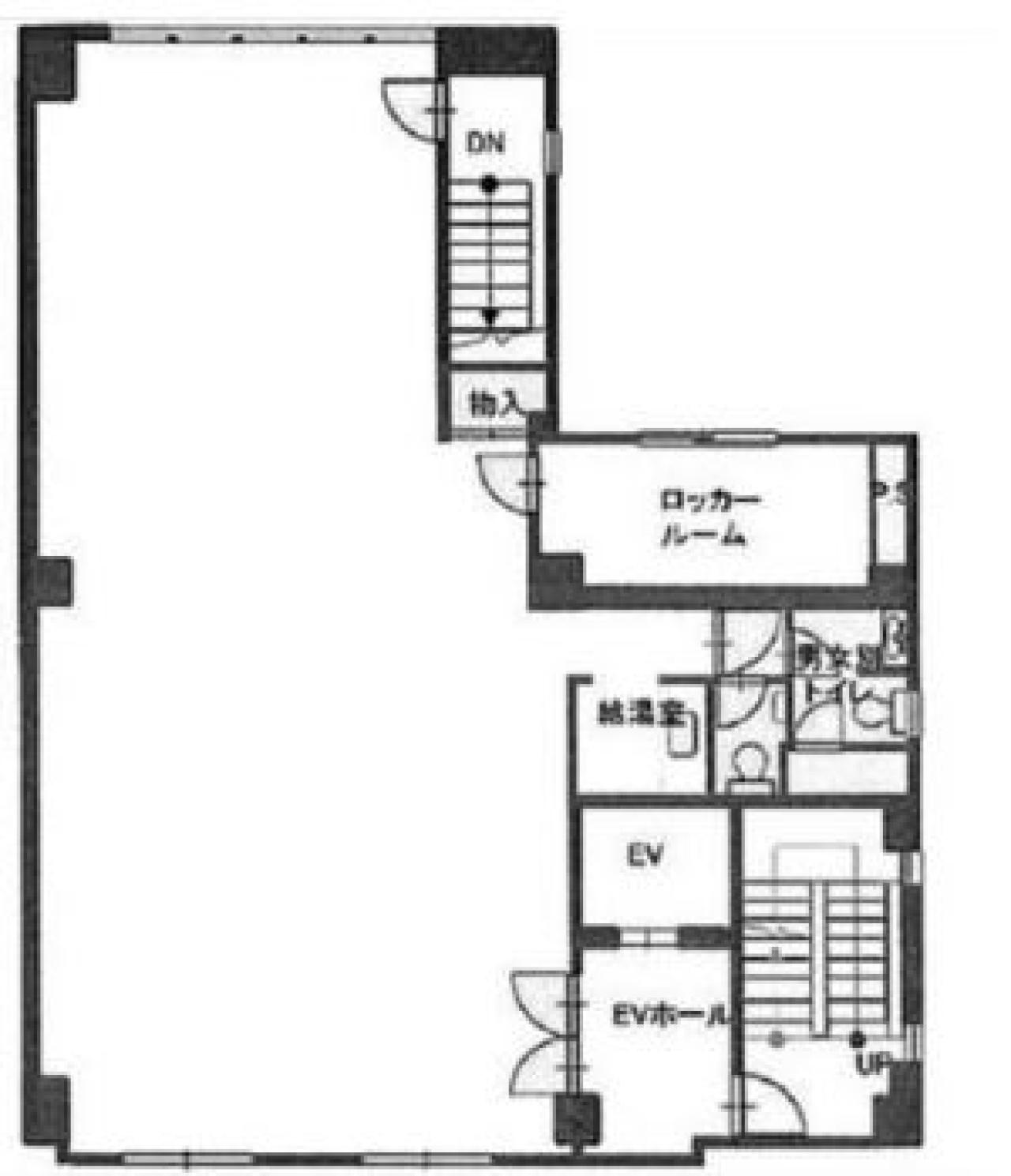
間取り図
-
近隣相場情報
岩本町3丁目(30~40坪)の相場
17067 円 (坪)
※ビルサク調べ
周辺施設情報
| コンビニ |
デイリーヤマザキ/神田岩本町店/260m(徒歩4分) セブンイレブン/千代田岩本町2丁目/260m(徒歩3分) |
|---|---|
| 郵便局/銀行 |
イオン銀行/ATM ミニストップ日本橋馬喰町2丁目店出張所/[営業時間]24時間/650m(徒歩9分) みずほ銀行/ATM 日比谷線秋葉原駅出張所/[営業時間] [ATM]平日 5:00~24:00 土曜日 5:00~22:00 日曜日 8:00~21:00 祝日・振替休日 曜日に準ずる 備考 *月曜日の5:00~7:00はご利用いただけません。通帳繰越機 設置なし/450m(徒歩6分) |
| 飲食店 |
あげばか/9時30分~23時00分/700m(徒歩10分) 京久家/17時30分~4時00分/42m(徒歩1分) |
| カフェ |
12CO.BASE -秋葉原-/17時00分~23時00分/270m(徒歩4分) レンタルスペース 【スペレン159号店】秋葉原/8時00分~23時00分/400m(徒歩6分) |
| コインパーキング |
コインパーク/岩本町3丁目 [料金] 【月~土】■通常料金【オールタイム [24時間]】12分/300円 【日祝】■通常料金【オールタイム [24時間]】12分/300円 [最大料金] 【月~土】■最大料金【駐車後12時間以内(1回限り)】3900円【18:00~8:00】1000円 【日祝】■最大料金【駐車後12時間以内(1回限り)】1800円【18:00~8:00】1000円 [台数] [車: 7台] 三井のリパーク/岩本町2丁目第4 [料金] 平日 08:00~22:00 15分/400円 平日 22:00~08:00 60分/100円 日祝 08:00~22:00 15分/400円 日祝 22:00~08:00 60分/100円 [最大料金] 【月~土】8:00~22:00以内 最大料金4700円 【月~土】22:00~8:00以内 最大料金500円 【日祝】8:00~22:00以内 最大料金2000円 【日祝】22:00~8:00以内 最大料金500円 [台数]5 |
周辺地図
トリキンビルは、千代田区岩本町にある貸事務所物件です。最寄り駅は都営新宿線岩本町駅、東京メトロ日比谷線小伝馬町駅、JR秋葉原駅です。1982年竣工で基準階が37.76坪の賃貸オフィスビルです。トイレは室内男女別で、空調は個別空調です。エレベーターは1基あります。複数路線利用可能で、交通アクセスの良い、千代田区岩本町の貸事務所です。
全フロア情報
更新日:2025年10月16日
| 階 | 面積 | 賃料 | 共益費 | 敷金 | 入居日 | お問合せ | お気に入り | |
|---|---|---|---|---|---|---|---|---|
| 2F |
36.46 坪 120.53 ㎡ |
※現在空室情報はございません |
※現在空室情報は 確認する |
|||||
| 3F |
37.76 坪 124.83 ㎡ |
※現在空室情報はございません |
※現在空室情報は 確認する |
|||||
| 4F |
39.89 坪 131.87 ㎡ |
※現在空室情報はございません |
※現在空室情報は 確認する |
|||||
お問い合わせ
似た条件の物件はこちら
-
大手町ゲートビルディング
東京都千代田区内神田1-31-11
坪数:48.55 坪
坪単価:70,031 円(坪)
-
新八光ビル
東京都千代田区内神田3-22-9
坪数:44.17 坪
坪単価:20,000 円(坪)
-
神田松楠ビル
東京都千代田区内神田2-7-10
坪数:37.07 坪
坪単価:15,000 円(坪)
-
KSKビル
東京都千代田区外神田5-1-15
坪数:39.4 坪
坪単価:16,000 円(坪)
-
エスポワールビル
東京都千代田区神田紺屋町38
坪数:36.67 坪
坪単価:13,000 円(坪)
-
ism神田
東京都千代田区神田東松下町48
坪数:31.72 坪
坪単価:16,000 円(坪)
-
神田荒木ビル
東京都千代田区神田須田町1-14-6
坪数:30.03 坪
坪単価:18,000 円(坪)
-
大栄堂ビル
東京都千代田区神田小川町3-6
坪数:30 坪
坪単価:20,000 円(坪)
-
藤和内神田ビル
東京都千代田区内神田2-4-4
坪数:44.42 坪
坪単価:13,997 円(坪)
-
楠本第3ビル
東京都千代田区神田錦町3-19
坪数:35 坪
坪単価:14,500 円(坪)
関連エリアから探す
- 内神田
- 神田淡路町
- 神田小川町
- 神田鍛冶町
- 神田須田町
- 神田駿河台
- 神田多町
- 神田司町
- 神田錦町
- 神田美土代町
- 岩本町
- 鍛冶町
- 神田岩本町
- 神田北乗物町
- 神田紺屋町
- 神田富山町
- 神田西福田町
- 神田東松下町
- 神田東紺屋町
- 神田美倉町
- 東神田
- 神田相生町
- 神田和泉町
- 神田佐久間町
- 神田佐久間河岸
- 神田練塀町
- 神田花岡町
- 神田松永町
- 外神田
- 神田平河町