大久保フジビル(物件No:11283115)
大久保フジビルは新宿区大久保にある地上10階建ての賃貸事務所です。最寄駅はJR山手線の新大久保駅から徒歩7分、都営大江戸線の東新宿駅から徒歩5分、東京メトロ副都心線の東新宿駅から徒歩1分です。1975年竣工の鉄骨鉄筋コンクリート造です。設備としては、エレベーターが2基あります。セキュリティは有人警備です。トイレは男女別です。空調は個別空調です。複数駅利用可能なアクセスの良い新宿区大久保の賃貸オフィスです。
| 階 | 面積 | 賃料 | 共益費 | 敷金 | 入居日 | お問合せ | お気に入り | |
|---|---|---|---|---|---|---|---|---|
|
7F
(708区画) |
17.78 坪 58.78 ㎡ |
※現在空室情報はございません |
※現在空室情報は 確認する |
|||||
| 階 | 面積 | 賃料 | 共益費 | 敷金 | 入居日 | お問合せ | お気に入り | |
|---|---|---|---|---|---|---|---|---|
|
7F
(708区画) |
17.78 坪 58.78 ㎡ |
※現在空室情報はございません |
※現在空室情報は 確認する |
|||||
-
物件情報
-
設備情報
- トイレ
- 室外男女別
- 床
- タイルカーペット
- 空調
- 個別空調
- セキュリティ
- -
- 駐車場
- 無
- 会議室
- -
- エレベーター
- 2基
- 天井高
- -
-
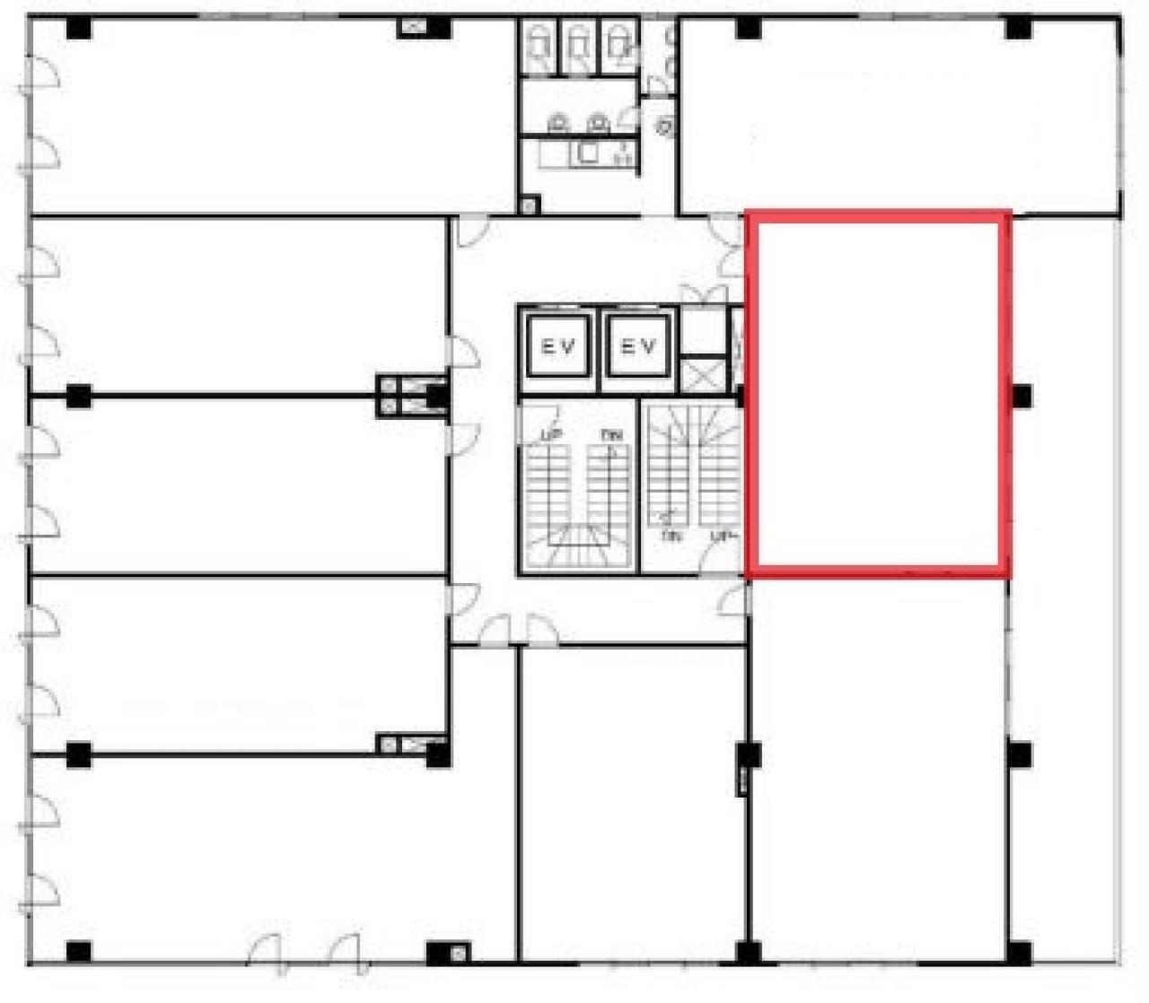
間取り図
-
近隣相場情報
大久保2丁目(20坪以下)の相場
17254 円 (坪)
※ビルサク調べ
周辺施設情報
| コンビニ |
ローソン/新大久保/220m(徒歩3分) ファミリーマート/新宿大久保一丁目店/85m(徒歩1分) |
|---|---|
| 郵便局/銀行 |
ゆうちょ/ATM 本店 ファミリーマート新宿大久保一丁目店内出張所/[ATM]平日 0:05~23:55 土曜日 0:05~23:55 日曜日・休日 0:05~23:55 /85m(徒歩1分) ローソン銀行/新大久保共同出張所/[営業時間]24時間/220m(徒歩3分) |
| 飲食店 |
小吃揚州/11時00分~15時00分 17時00分~20時00分/67m(徒歩1分) 焼き鳥酒場/17時30分~21時00分/87m(徒歩1分) |
| カフェ |
タリーズ/イーホテル東新宿店/[営業時間]平日:8:00~18:00 土:8:00~18:00 日祝:8:00~18:00/550m(徒歩7分) タリーズ/新宿イーストサイドスクエアアトリウム店/[営業時間]平日:8:00~19:00 土:休業日 日祝:休業日/700m(徒歩10分) |
| コインパーキング |
タイムズ/大久保第7 [料金] [全日]通常料金 / 8:00~19:00 20分 220円 19:00~8:00 30分 220円 [最大料金] [全日]8:00~19:00 最大料金1650円 19:00~8:00 最大料金550円 [台数]6 エコロパーク/大久保第1 [料金] [料金] 全日 昼 8時~22時 10分200円, 全日 夜 22時~8時 60分100円 [最大料金] [料金]全日 12時間 最大2600円 [台数]2 |
周辺地図
大久保フジビルは新宿区大久保にある地上10階建ての賃貸事務所です。最寄駅はJR山手線の新大久保駅から徒歩7分、都営大江戸線の東新宿駅から徒歩5分、東京メトロ副都心線の東新宿駅から徒歩1分です。1975年竣工の鉄骨鉄筋コンクリート造です。設備としては、エレベーターが2基あります。セキュリティは有人警備です。トイレは男女別です。空調は個別空調です。複数駅利用可能なアクセスの良い新宿区大久保の賃貸オフィスです。
全フロア情報
更新日:2025年11月13日
| 階 | 面積 | 賃料 | 共益費 | 敷金 | 入居日 | お問合せ | お気に入り | |
|---|---|---|---|---|---|---|---|---|
|
3F
(301区画) |
18.76 坪 62.02 ㎡ |
※現在空室情報はございません |
※現在空室情報は 確認する |
|||||
|
3F
(304区画) |
10.75 坪 35.54 ㎡ |
107,500 円 10,000 円(坪) |
28,860 円 2,685 円(坪) |
322,500 円 3 ヶ月 |
2025/12 |
|
|
|
|
3F
(306区画) |
13.86 坪 45.82 ㎡ |
※現在空室情報はございません |
※現在空室情報は 確認する |
|||||
|
3F
(311区画) |
16.34 坪 54.02 ㎡ |
※現在空室情報はございません |
※現在空室情報は 確認する |
|||||
|
5F
(504区画) |
10.75 坪 35.54 ㎡ |
107,500 円 10,000 円(坪) |
28,860 円 2,685 円(坪) |
322,500 円 3 ヶ月 |
2025/12 |
|
|
|
|
5F
(507区画) |
10.75 坪 35.54 ㎡ |
※現在空室情報はございません |
※現在空室情報は 確認する |
|||||
|
5F
(508区画) |
15.1 坪 49.92 ㎡ |
※現在空室情報はございません |
※現在空室情報は 確認する |
|||||
|
5F
(511区画) |
16.34 坪 54.02 ㎡ |
※現在空室情報はございません |
※現在空室情報は 確認する |
|||||
|
6F
(602区画) |
14.43 坪 47.7 ㎡ |
※現在空室情報はございません |
※現在空室情報は 確認する |
|||||
|
6F
(603区画) |
14.43 坪 47.7 ㎡ |
※現在空室情報はございません |
※現在空室情報は 確認する |
|||||
|
6F
(604区画) |
14.43 坪 47.7 ㎡ |
※現在空室情報はございません |
※現在空室情報は 確認する |
|||||
|
6F
(608区画) |
15.1 坪 49.92 ㎡ |
※現在空室情報はございません |
※現在空室情報は 確認する |
|||||
|
6F
(611区画) |
16.34 坪 54.02 ㎡ |
※現在空室情報はございません |
※現在空室情報は 確認する |
|||||
|
7F
(701区画) |
18.76 坪 62.02 ㎡ |
※現在空室情報はございません |
※現在空室情報は 確認する |
|||||
|
7F
(702区画) |
14.43 坪 47.7 ㎡ |
※現在空室情報はございません |
※現在空室情報は 確認する |
|||||
|
7F
(705区画) |
21.58 坪 71.34 ㎡ |
※現在空室情報はございません |
※現在空室情報は 確認する |
|||||
|
7F
(707区画) |
19.07 坪 63.04 ㎡ |
※現在空室情報はございません |
※現在空室情報は 確認する |
|||||
|
7F
(708区画) |
17.78 坪 58.78 ㎡ |
※現在空室情報はございません |
※現在空室情報は 確認する |
|||||
|
8F
(807区画) |
12.63 坪 41.75 ㎡ |
※現在空室情報はございません |
※現在空室情報は 確認する |
|||||
お問い合わせ
似た条件の物件はこちら
-
山武落合ビル
東京都新宿区上落合2-29-1
坪数:12 坪
坪単価:10,000 円(坪)
-
牧ビル
東京都新宿区早稲田鶴巻町109
坪数:20.81 坪
坪単価:7,442 円(坪)
-
新宿支部印刷会館
東京都新宿区喜久井町4-1
坪数:12.49 坪
坪単価:20,016 円(坪)
-
TFT高田馬場駅前ビル
東京都新宿区高田馬場1-33-15
坪数:17.94 坪
坪単価:25,084 円(坪)
-
スカイパレスビル
東京都新宿区高田馬場1-29-7
坪数:15.69 坪
坪単価:12,747 円(坪)
-
揺籃ビル
東京都新宿区高田馬場4-23-34
坪数:15.68 坪
坪単価:15,306 円(坪)
-
佐々木ビル
東京都新宿区高田馬場1-25-7
坪数:19.6 坪
坪単価:8,117 円(坪)
-
プラザ新大樹
東京都新宿区大久保2-1-8
坪数:16.5 坪
坪単価:20,000 円(坪)
-
平安ビル
東京都新宿区大久保2-6-16
坪数:19.55 坪
坪単価:14,322 円(坪)
-
藤和高田馬場コープⅡ
東京都新宿区高田馬場4-9-11
坪数:18.9 坪
坪単価:15,873 円(坪)