瀬田サンリツビル(物件No:03113066)
瀬田サンリツビルは、世田谷区瀬田にある地上5階建ての貸店舗事務所です。最寄駅は東急田園都市線の用賀駅から徒歩10分、東急田園都市線の二子玉川駅から徒歩14分、東急大井町線の上野毛駅から徒歩17分です。1992年7月竣工の鉄筋コンクリート造です。設備としては、駐車場があります。トイレは室内男女共用です。耐震設計となっている、複数駅利用可能なアクセスの良い世田谷区瀬田の貸店舗事務所です。
| 階 | 面積 | 賃料 | 共益費 | 敷金 | 入居日 | お問合せ | お気に入り | |
|---|---|---|---|---|---|---|---|---|
|
1F
(101区画) |
17.41 坪 57.54 ㎡ |
※現在空室情報はございません |
※現在空室情報は 確認する |
|||||
-
物件情報
-
設備情報
- トイレ
- 室内男女共用
- 床
- -
- 空調
- -
- セキュリティ
- -
- 駐車場
- 有
- 会議室
- -
- エレベーター
- -
- 天井高
- -
-
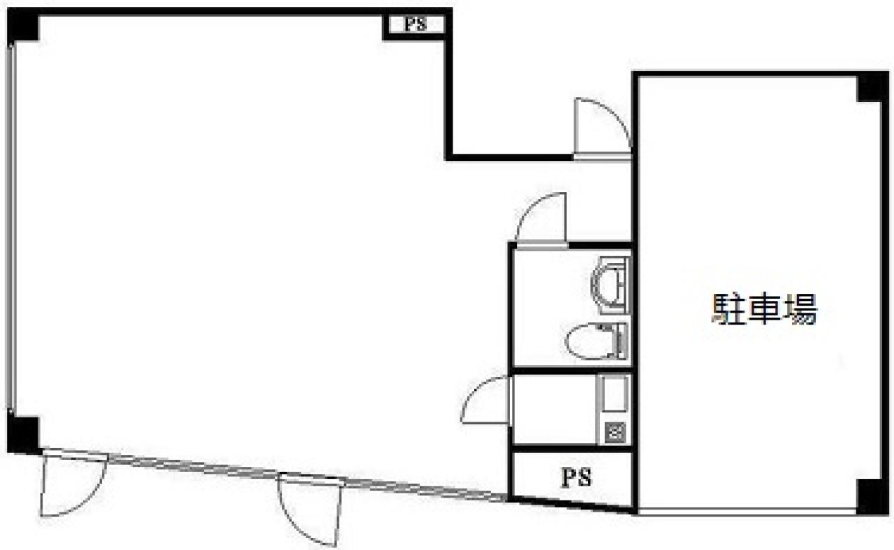
間取り図
-
近隣相場情報
瀬田2丁目(20坪以下)の相場
調査中
周辺地図
瀬田サンリツビルは、世田谷区瀬田にある地上5階建ての貸店舗事務所です。最寄駅は東急田園都市線の用賀駅から徒歩10分、東急田園都市線の二子玉川駅から徒歩14分、東急大井町線の上野毛駅から徒歩17分です。1992年7月竣工の鉄筋コンクリート造です。設備としては、駐車場があります。トイレは室内男女共用です。耐震設計となっている、複数駅利用可能なアクセスの良い世田谷区瀬田の貸店舗事務所です。
全フロア情報
更新日:2025年10月28日
| 階 | 面積 | 賃料 | 共益費 | 敷金 | 入居日 | お問合せ | お気に入り | |
|---|---|---|---|---|---|---|---|---|
|
1F
(101区画) |
17.41 坪 57.54 ㎡ |
※現在空室情報はございません |
※現在空室情報は 確認する |
|||||
|
2F
(201区画) |
27 坪 89.26 ㎡ |
※現在空室情報はございません |
※現在空室情報は 確認する |
|||||
お問い合わせ
似た条件の物件はこちら
-
BLD. Cerezo
東京都世田谷区桜新町2-10-2
坪数:17.81 坪
坪単価:22,459 円(坪)
-
天虎ビル
東京都世田谷区用賀2-38-14
坪数:16.52 坪
坪単価:11,804 円(坪)
-
(仮)瀬田一丁目ビル計画
東京都世田谷区瀬田1-10-以下未定
坪数:17.79 坪
坪単価:35,000 円(坪)