新宿太陽ビル(物件No:02962177)
新宿太陽ビルは新宿区大久保にある地上8階建ての賃貸事務所です。最寄駅は東京メトロ副都心線の東新宿駅から徒歩4分、JR線の新大久保駅から徒歩12分です。1974年2月竣工の鉄骨鉄筋コンクリート造です。設備としては、エレベーターが1基あります。トイレは室内男女別です。空調は個別空調です。床仕様はフリーアクセスです。ビジネス街として人気のある新宿区大久保の賃貸オフィスです。
| 階 | 面積 | 賃料 | 共益費 | 敷金 | 入居日 | お問合せ | お気に入り |
|---|---|---|---|---|---|---|---|
| 3F |
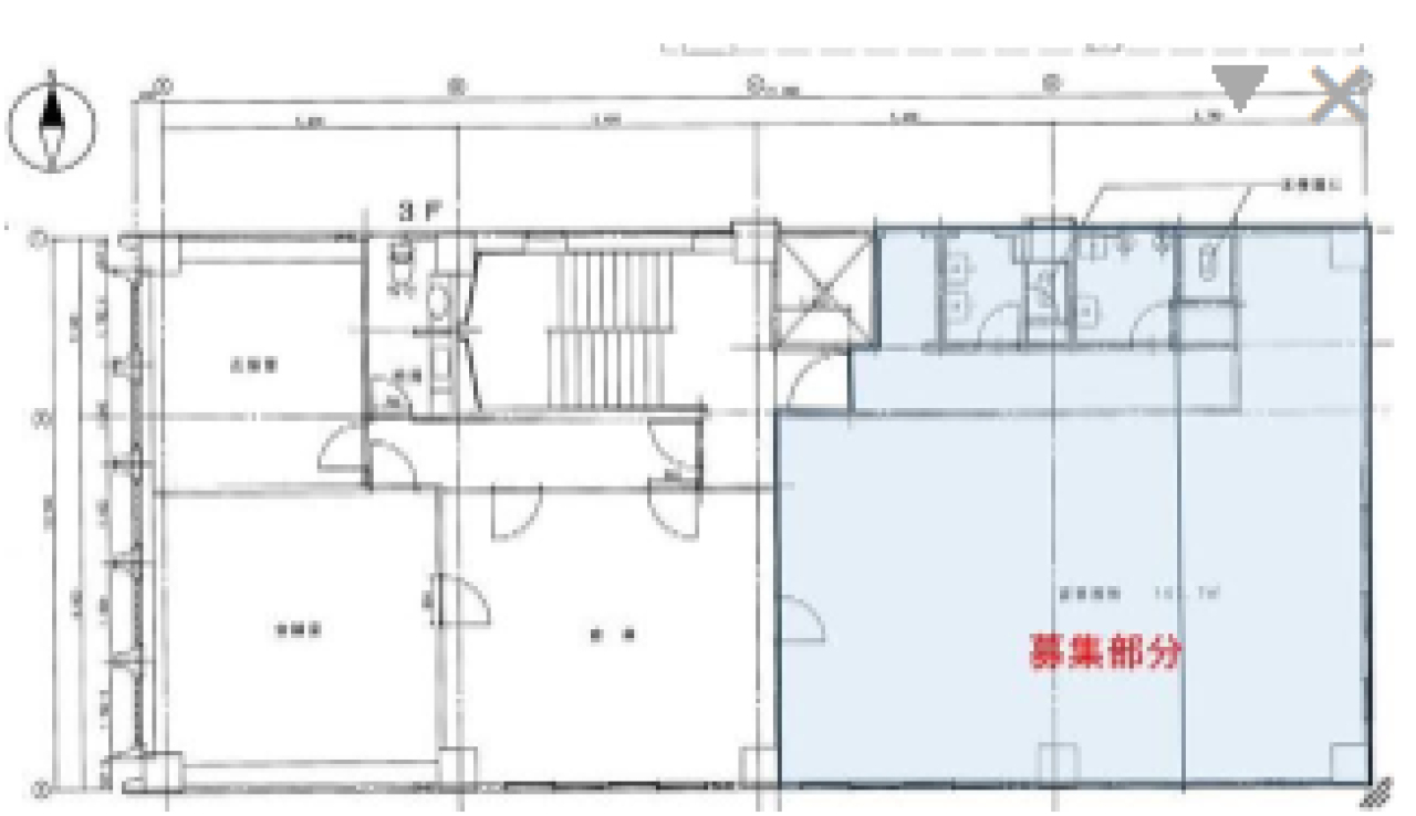
31.37 坪 103.7 ㎡ |
328,000 円 10,456 円(坪) |
30,000 円 956 円(坪) |
1,640,000 円 5 ヶ月 |
即日 |
|
|
| 階 | 面積 | 賃料 | 共益費 | 敷金 | 入居日 | お問合せ | お気に入り |
|---|---|---|---|---|---|---|---|
| 3F |
31.37 坪 103.7 ㎡ |
328,000 円 10,456 円(坪) |
30,000 円 956 円(坪) |
1,640,000 円 5 ヶ月 |
即日 |
|
|
-
物件情報
-
設備情報
- トイレ
- 室外男女別
- 床
- フリーアクセス
- 空調
- 個別空調
- セキュリティ
- -
- 駐車場
- -
- 会議室
- -
- エレベーター
- 1基
- 天井高
- -
-
間取り図
-
近隣相場情報
大久保2丁目(30~40坪)の相場
14065 円 (坪)
※ビルサク調べ
周辺施設情報
| コンビニ |
セブンイレブン/大久保2丁目明治通り/130m(徒歩2分) ローソン/新宿大久保二丁目/110m(徒歩2分) |
|---|---|
| 郵便局/銀行 |
ローソン銀行/新宿大久保二丁目共同出張所/[営業時間]24時間/110m(徒歩2分) さわやか信用金庫/新宿支店/電話番号03-3204-1271/180m(徒歩2分) |
| 飲食店 |
らーめん味里 misato/11時30分~20時30分/220m(徒歩3分) セントラルキッチン/10時00分~20時00分/180m(徒歩2分) |
| カフェ |
スターバックス/新大久保駅店/[営業時間]7:00~22:00/1000m(徒歩12分) タリーズ/早大理工店/[営業時間]平日:8:00~20:00 土:9:00~18:00 日祝:休業日/400m(徒歩5分) |
| コインパーキング |
タイムズ/大久保第7 [料金] 通常料金 / 8:00~19:00 20分 220円 19:00~8:00 30分 220円 [最大料金] [全日]8:00~19:00 最大料金1650円 19:00~8:00 最大料金550円 [台数]6 エイブルパーキング/大久保2丁目 [料金] [料金]8:00~20:00 30分 220円 20:00~8:00 60分 110円 [台数]5台 |
周辺地図
新宿太陽ビルは新宿区大久保にある地上8階建ての賃貸事務所です。最寄駅は東京メトロ副都心線の東新宿駅から徒歩4分、JR線の新大久保駅から徒歩12分です。1974年2月竣工の鉄骨鉄筋コンクリート造です。設備としては、エレベーターが1基あります。トイレは室内男女別です。空調は個別空調です。床仕様はフリーアクセスです。ビジネス街として人気のある新宿区大久保の賃貸オフィスです。
全フロア情報
更新日:2025年11月20日
| 階 | 面積 | 賃料 | 共益費 | 敷金 | 入居日 | お問合せ | お気に入り | |
|---|---|---|---|---|---|---|---|---|
| 3F |
31.37 坪 103.7 ㎡ |
328,000 円 10,456 円(坪) |
30,000 円 956 円(坪) |
1,640,000 円 5 ヶ月 |
即日 |
|
|
|
| 4F |
60.5 坪 200 ㎡ |
※現在空室情報はございません |
※現在空室情報は 確認する |
|||||
| 8F |
60.5 坪 200 ㎡ |
※現在空室情報はございません |
※現在空室情報は 確認する |
|||||
お問い合わせ
似た条件の物件はこちら
-
ユニオン駅前ビル
東京都新宿区高田馬場3-3-1
坪数:24.18 坪
坪単価:16,543 円(坪)
-
サンファミール西早稲田
東京都新宿区西早稲田3-17-23
坪数:23.52 坪
坪単価:11,016 円(坪)
-
玉井企画ビル
東京都新宿区早稲田鶴巻町110
坪数:31.65 坪
坪単価:10,585 円(坪)
-
大堀ビル
東京都新宿区下落合1-2-16
坪数:32.95 坪
坪単価:9,105 円(坪)
-
科研ビル
東京都新宿区百人町2-5-8
坪数:38.36 坪
坪単価:22,160 円(坪)
-
U square 高田馬場
東京都新宿区高田馬場1-29-1
坪数:24.88 坪
坪単価:24,000 円(坪)
-
プラザ新大樹
東京都新宿区大久保2-1-8
坪数:22 坪
坪単価:20,500 円(坪)
-
ヴァリエ戸山
東京都新宿区大久保2-3-9
坪数:22.62 坪
坪単価:9,996 円(坪)
-
第2浅美ビル
東京都新宿区百人町4-9-2
坪数:26.67 坪
坪単価:10,499 円(坪)