白銀会館(物件No:01982191)
白銀会館は、千代田区外神田にある貸事務所物件です。最寄り駅は東京メトロ日比谷線、JR秋葉原駅、銀座線末広町駅です。1966年竣工で基準階が29坪の事務所物件です。エレベーターは1基あり、セキュリティは機械警備となっています。秋葉原駅周辺は様々な店舗が立ち並んでおり、電車の乗り換えもしやすく、利便性の高い千代田区外神田の貸事務所です。
| 階 | 面積 | 賃料 | 共益費 | 敷金 | 入居日 | お問合せ | お気に入り | |
|---|---|---|---|---|---|---|---|---|
|
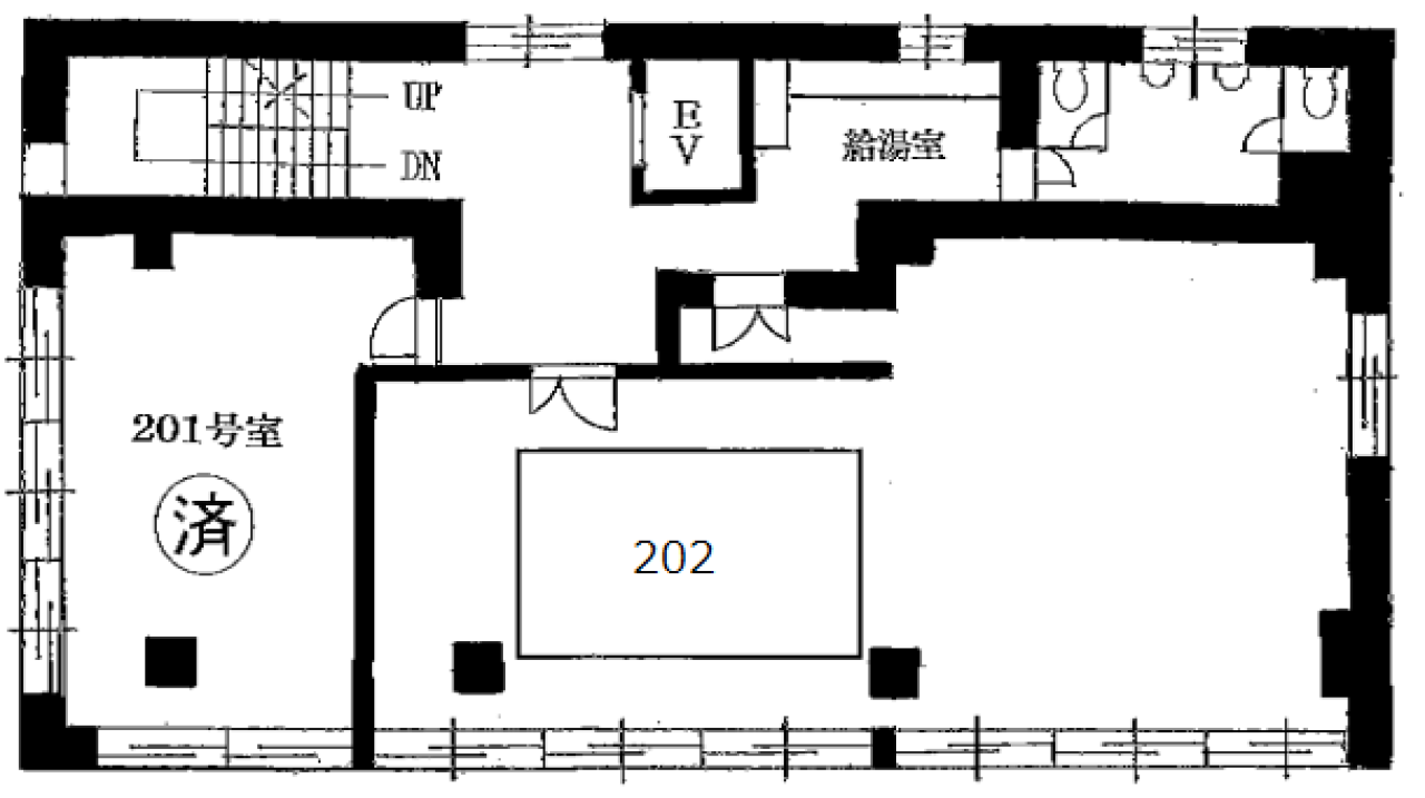
2F
(202区画) |
20 坪 66.1 ㎡ |
※現在空室情報はございません |
※現在空室情報は 確認する |
|||||
-
物件情報
-
設備情報
- トイレ
- 室外
- 床
- -
- 空調
- -
- セキュリティ
- 有
- 駐車場
- -
- 会議室
- -
- エレベーター
- 1基
- 天井高
- -
-
間取り図
-
近隣相場情報
外神田3丁目()の相場
18017 円 (坪)
※ビルサク調べ
周辺施設情報
| コンビニ |
ファミリーマート/ファミマ秋葉原TMOビル/S店/55m(徒歩1分) セブンイレブン/秋葉原駅北/450m(徒歩6分) |
|---|---|
| 郵便局/銀行 |
イーネット/ドン・キホーテ秋葉原/[営業時間]10:00~5:00/120m(徒歩2分) 三菱UFJ銀行/秋葉原支店/[営業時間] [窓口]平日 9:00~15:00 土曜日 - 日曜日 - *祝日・休日および12月31日、1月1日~3日は営業いたしません。 [ATM]平日 7:00~24:00 土曜日 7:00~24:00 日・祝日 7:00~24:00 *毎月第2土曜日の21:00~翌朝7:00はご利用いただけ/270m(徒歩3分) |
| 飲食店 |
伝説のすた丼屋 秋葉原店/11時00分~23時00分/38m(徒歩1分) 雁川/11時00分~15時30分、17時00分~21時30分/6m(徒歩1分) |
| カフェ |
ミスタードーナツ/秋葉原/[営業時間]10:00~19:00 [備考]全席禁煙/110m(徒歩1分) VAULTCOFFEE/11時00分~22時00分/150m(徒歩2分) |
| コインパーキング |
PEN/秋葉原UDX [料金] 【全日】 300円 / 30分 [最大料金] 【24時間最大料金】 月~金 2000円 【24時間最大料金】 土日祝 3000円 [営業時間]24時間営業 タイムズ駐車場/外神田第12 [料金] [全日]通常料金 / 0:00~0:00 12分 440円 [台数]4 |
周辺地図
白銀会館は、千代田区外神田にある貸事務所物件です。最寄り駅は東京メトロ日比谷線、JR秋葉原駅、銀座線末広町駅です。1966年竣工で基準階が29坪の事務所物件です。エレベーターは1基あり、セキュリティは機械警備となっています。秋葉原駅周辺は様々な店舗が立ち並んでおり、電車の乗り換えもしやすく、利便性の高い千代田区外神田の貸事務所です。
全フロア情報
更新日:2025年9月26日
| 階 | 面積 | 賃料 | 共益費 | 敷金 | 入居日 | お問合せ | お気に入り | |
|---|---|---|---|---|---|---|---|---|
|
2F
(202区画) |
20 坪 66.1 ㎡ |
※現在空室情報はございません |
※現在空室情報は 確認する |
|||||
|
4F
(401区画) |
29 坪 95.87 ㎡ |
※現在空室情報はございません |
※現在空室情報は 確認する |
|||||
お問い合わせ
似た条件の物件はこちら
-
M&Cビル
東京都千代田区神田小川町2-3-13
坪数:15.73 坪
坪単価:18,000 円(坪)
-
KSYビル
東京都千代田区神田須田町2-15
坪数:22.12 坪
坪単価:13,562 円(坪)
-
TOKENビル
東京都千代田区外神田5-2-4
坪数:21.37 坪
坪単価:11,500 円(坪)
-
第二櫻井ビル
東京都千代田区神田佐久間町3-5
坪数:17.24 坪
坪単価:11,996 円(坪)
-
新東ビル
東京都千代田区内神田2-8-3
坪数:21.5 坪
坪単価:12,000 円(坪)
-
神田乗物町ビル
東京都千代田区神田北乗物町2
坪数:20.88 坪
坪単価:12,973 円(坪)
-
藤和内神田ビル
東京都千代田区内神田2-4-4
坪数:18.49 坪
坪単価:16,500 円(坪)
-
昭和ビル
東京都千代田区神田和泉町1-2-5
坪数:16.5 坪
坪単価:11,000 円(坪)
-
竹橋ビル
東京都千代田区内神田2-15-15
坪数:23.7 坪
坪単価:21,000 円(坪)
-
トーハン第5ビル
東京都千代田区内神田1-18-13
坪数:15.13 坪
坪単価:15,000 円(坪)
関連エリアから探す
- 内神田
- 神田淡路町
- 神田小川町
- 神田鍛冶町
- 神田須田町
- 神田駿河台
- 神田多町
- 神田司町
- 神田錦町
- 神田美土代町
- 岩本町
- 鍛冶町
- 神田岩本町
- 神田北乗物町
- 神田紺屋町
- 神田富山町
- 神田西福田町
- 神田東松下町
- 神田東紺屋町
- 神田美倉町
- 東神田
- 神田相生町
- 神田和泉町
- 神田佐久間町
- 神田佐久間河岸
- 神田練塀町
- 神田花岡町
- 神田松永町
- 外神田
- 神田平河町