NC島商ビル(物件No:01982068)
NC島商ビルは千代田区神田松永町にある地上9階建ての賃貸事務所です。最寄駅は東京メトロ日比谷線の秋葉原駅から徒歩3分、JR線の秋葉原駅から徒歩3分です。1988年1月竣工の基準階面積が30.9坪の鉄骨鉄筋コンクリート造です。設備としては、エレベーターが1基あります。セキュリティは機械警備です。トイレは室内男女別です。空調は個別空調です。床仕様はフリーアクセスです。耐震設計となっている、最寄駅から近くて便利な千代田区神田松永町の賃貸オフィスです。
-
物件情報
-
設備情報
- トイレ
- 室内男女別
- 床
- フリーアクセス
- 空調
- 個別空調
- セキュリティ
- 有
- 駐車場
- -
- 会議室
- -
- エレベーター
- 1基
- 天井高
- -
-
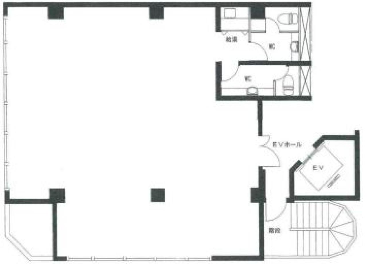
間取り図
-
近隣相場情報
神田松永町23丁目(30~40坪)の相場
調査中
周辺施設情報
| コンビニ |
まいばすけっと/秋葉原昭和通り店/270m(徒歩4分) ローソン/秋葉原中央通/500m(徒歩6分) |
|---|---|
| 郵便局/銀行 |
筑波銀行/東京支店/[営業時間]9:00~11:30 12:30~15:00 [ATM]平日 9:00~17:00/270m(徒歩4分) 興産信用金庫/秋葉原支店/250m(徒歩3分) |
| 飲食店 |
焼肉の牛太 本陣 ヨドバシAkiba店/11時00分~23時00分/350m(徒歩5分) 牛カツ京都勝牛 ヨドバシAkiba店/11時00分~22時00分/350m(徒歩5分) |
| カフェ |
ベローチェ/秋葉原駅東口店/[営業時間]7:00~22:00 ※営業時間の変更情報あり。詳細についてはHPを参照 [備考]全席禁煙 喫煙ブースあり/Wi-Fiあり/【分煙区画について】喫煙ブースでの飲食はご遠慮頂いております/500m(徒歩7分) CoCo都可/秋葉原店/[営業時間]12:00~20:00(時間短縮営業) [休業日]なし/400m(徒歩5分) |
| コインパーキング |
Parking in/秋葉原 [料金] 8:00~22:00 20分300円 22:00~8:00 60分100円 [最大料金] 入庫後5時間2,200円 PEN/外神田4丁目第1 [料金] 【全日】 8:00~24:00 500円 / 15分 【全日】 24:00~8:00 400円 / 30分 [最大料金] 【夜間最大料金】 全日 24:00~8:00 1000円 (一回限り) [営業時間]24時間営業 |
周辺地図
NC島商ビルは千代田区神田松永町にある地上9階建ての賃貸事務所です。最寄駅は東京メトロ日比谷線の秋葉原駅から徒歩3分、JR線の秋葉原駅から徒歩3分です。1988年1月竣工の基準階面積が30.9坪の鉄骨鉄筋コンクリート造です。設備としては、エレベーターが1基あります。セキュリティは機械警備です。トイレは室内男女別です。空調は個別空調です。床仕様はフリーアクセスです。耐震設計となっている、最寄駅から近くて便利な千代田区神田松永町の賃貸オフィスです。
全フロア情報
更新日:2025年9月26日
| 階 | 面積 | 賃料 | 共益費 | 敷金 | 入居日 | お問合せ | お気に入り | |
|---|---|---|---|---|---|---|---|---|
| 2F |
30.9 坪 102.15 ㎡ |
※現在空室情報はございません |
※現在空室情報は 確認する |
|||||
| 3F |
30.9 坪 102.15 ㎡ |
※現在空室情報はございません |
※現在空室情報は 確認する |
|||||
|
9F
(A区画) |
21.65 坪 71.57 ㎡ |
※現在空室情報はございません |
※現在空室情報は 確認する |
|||||
お問い合わせ
似た条件の物件はこちら
-
大手町ゲートビルディング
東京都千代田区内神田1-31-11
坪数:34.8 坪
坪単価:70,402 円(坪)
-
KSYビル
東京都千代田区神田須田町2-15
坪数:22.12 坪
坪単価:13,562 円(坪)
-
新八光ビル
東京都千代田区内神田3-22-9
坪数:38.3 坪
坪単価:20,000 円(坪)
-
KM千代田ビル
東京都千代田区岩本町1-12-1
坪数:20.02 坪
坪単価:12,996 円(坪)
-
TOKENビル
東京都千代田区外神田5-2-4
坪数:21.37 坪
坪単価:11,500 円(坪)
-
神田中沢ビル
東京都千代田区外神田6-14-12
坪数:28.5 坪
坪単価:10,526 円(坪)
-
神田松楠ビル
東京都千代田区内神田2-7-10
坪数:37.07 坪
坪単価:15,000 円(坪)
-
KSKビル
東京都千代田区外神田5-1-15
坪数:39.4 坪
坪単価:16,000 円(坪)
-
新東ビル
東京都千代田区内神田2-8-3
坪数:21.5 坪
坪単価:11,000 円(坪)
-
神田乗物町ビル
東京都千代田区神田北乗物町2
坪数:20.88 坪
坪単価:13,000 円(坪)
関連エリアから探す
- 内神田
- 神田淡路町
- 神田小川町
- 神田鍛冶町
- 神田須田町
- 神田駿河台
- 神田多町
- 神田司町
- 神田錦町
- 神田美土代町
- 岩本町
- 鍛冶町
- 神田岩本町
- 神田北乗物町
- 神田紺屋町
- 神田富山町
- 神田西福田町
- 神田東松下町
- 神田東紺屋町
- 神田美倉町
- 東神田
- 神田相生町
- 神田和泉町
- 神田佐久間町
- 神田佐久間河岸
- 神田練塀町
- 神田花岡町
- 神田松永町
- 外神田
- 神田平河町