青葉六本木ビル(物件No:01682124)
青葉六本木ビルは、港区六本木にある貸事務所物件です。最寄り駅は、東京メトロ南北線の六本木一丁目駅、溜池山王駅、東京メトロ日比谷線の神谷町駅、六本木駅、東京メトロ銀座線の溜池山王駅、東京メトロ千代田線の赤坂駅、都営大江戸線の六本木駅、都営三田線の御成門駅です。1993年竣工で、基準階が321.51坪の賃貸オフィスビルです。床はOAフロアとなっております。駐車場があり、エレベーターは4基あります。複数路線利用可能な、アクセスの良い港区六本木の貸事務所です。
| 階 | 面積 | 賃料 | 共益費 | 敷金 | 入居日 | お問合せ | お気に入り |
|---|---|---|---|---|---|---|---|
|
2F
(1区画) |
122.41 坪 404.67 ㎡ |
3,060,181 円 24,999 円(坪) |
込 |
36,722,172 円 12 ヶ月 |
即日 |
|
|
| 階 | 面積 | 賃料 | 共益費 | 敷金 | 入居日 | お問合せ | お気に入り |
|---|---|---|---|---|---|---|---|
|
2F
(1区画) |
122.41 坪 404.67 ㎡ |
3,060,181 円 24,999 円(坪) |
込 |
36,722,172 円 12 ヶ月 |
即日 |
|
|
-
物件情報
-
設備情報
- トイレ
- 室外男女別
- 床
- フリーアクセス
- 空調
- セントラル空調
- セキュリティ
- -
- 駐車場
- 有
- 会議室
- -
- エレベーター
- 4基
- 天井高
- 3000mm
-
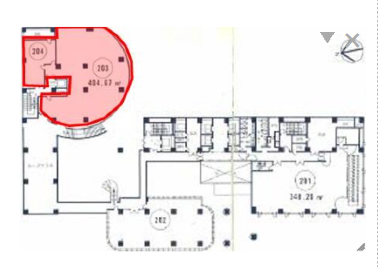
間取り図
-
近隣相場情報
六本木3丁目(100坪以上)の相場
23818 円 (坪)
※ビルサク調べ
周辺施設情報
| コンビニ |
デイリーヤマザキ/六本木3丁目店/450m(徒歩5分) リーベンハウス/六本木グランドタワー店/550m(徒歩6分) |
|---|---|
| 郵便局/銀行 |
イーネット/ファミリーマート六本木駅前/[営業時間]0:00~24:00/450m(徒歩6分) みずほ銀行/ATM ラピロス六本木出張所/[営業時間] [ATM]平日 7:00~24:00 土曜日 8:00~21:00 日曜日 8:00~21:00 祝日・振替休日 8:00~21:00 備考 通帳繰越機 設置なし/450m(徒歩6分) |
| 飲食店 |
BarEst/210m(徒歩3分) にく稲/17時30分~22時00分/170m(徒歩2分) |
| カフェ |
スターバックス/六本木7丁目店/[営業時間]月~金:7:00~22:30 土:8:00~22:30 日祝:8:00~22:00 ※臨時営業時間のお知らせ 下記の日程は臨時の営業時間となります。2020年5月25日~2020年5月29日 営業時間:7:00~19:00 2020年5月30日~2020年5月31日 営業時間:8:00~19:00 [休業日]不定休 [備考]無線LAN:STARBUCKS/docomo/au/Softb/550m(徒歩7分) 春水堂/六本木店/[営業時間]平日:11:00~21:00 土祝:11:00~20:00 日休 *新型コロナウイルス感染拡大防止に向け、以下の通り営業時間を変更しております。【臨時休業】期間:4/8から当面の間 ラストオーダー [フード]20:30 [ドリンク]21:00 *混雑時には時間が前後する可能性がございます。ご了承ください [休業日]日曜日/600m(徒歩7分) |
| コインパーキング |
タイムズ駐車場/六本木梅ノ木 [料金] [全日]00:00-00:00 12分 300円 [最大料金] [全日]駐車後24時間 最大料金3600円 [全日]17:00-07:00 最大料金2500円 [台数]40 トラストパーク/エーパーク麻布台 [料金] (08:00~00:00)15分400円 (00:00~08:00)30分200円 [台数]1台 |
周辺地図
青葉六本木ビルは、港区六本木にある貸事務所物件です。最寄り駅は、東京メトロ南北線の六本木一丁目駅、溜池山王駅、東京メトロ日比谷線の神谷町駅、六本木駅、東京メトロ銀座線の溜池山王駅、東京メトロ千代田線の赤坂駅、都営大江戸線の六本木駅、都営三田線の御成門駅です。1993年竣工で、基準階が321.51坪の賃貸オフィスビルです。床はOAフロアとなっております。駐車場があり、エレベーターは4基あります。複数路線利用可能な、アクセスの良い港区六本木の貸事務所です。
全フロア情報
更新日:2025年11月6日
| 階 | 面積 | 賃料 | 共益費 | 敷金 | 入居日 | お問合せ | お気に入り | |
|---|---|---|---|---|---|---|---|---|
| B1F |
95.18 坪 314.64 ㎡ |
※現在空室情報はございません |
※現在空室情報は 確認する |
|||||
|
1F
(104区画) |
41.88 坪 138.45 ㎡ |
※現在空室情報はございません |
※現在空室情報は 確認する |
|||||
|
2F
(1区画) |
122.41 坪 404.67 ㎡ |
3,060,181 円 24,999 円(坪) |
込 |
36,722,172 円 12 ヶ月 |
即日 |
|
|
|
|
2F
(201区画) |
105.33 坪 348.2 ㎡ |
※現在空室情報はございません |
※現在空室情報は 確認する |
|||||
|
2F
(202区画) |
69.19 坪 228.73 ㎡ |
※現在空室情報はございません |
※現在空室情報は 確認する |
|||||
|
3F
(1区画) |
194.05 坪 641.49 ㎡ |
相談 |
込 |
相談 |
即日 |
|
|
|
|
3F
(301区画) |
194.05 坪 641.49 ㎡ |
4,851,250 円 25,000 円(坪) |
込 |
58,215,000 円 12 ヶ月 |
即日 |
|
|
|
|
4F
(1区画) |
100.62 坪 332.63 ㎡ |
※現在空室情報はございません |
※現在空室情報は 確認する |
|||||
|
4F
(2区画) |
97.15 坪 321.16 ㎡ |
※現在空室情報はございません |
※現在空室情報は 確認する |
|||||
|
4F
(3区画) |
123.73 坪 409.02 ㎡ |
※現在空室情報はございません |
※現在空室情報は 確認する |
|||||
| 6F |
321.51 坪 1062.84 ㎡ |
※現在空室情報はございません |
※現在空室情報は 確認する |
|||||
|
7F
(1区画) |
100.62 坪 332.63 ㎡ |
※現在空室情報はございません |
※現在空室情報は 確認する |
|||||
お問い合わせ
似た条件の物件はこちら
-
TOWER FRONT神谷町
東京都港区東麻布1-3-8
坪数:108.62 坪
坪単価:25,000 円(坪)
-
六本木Dスクエアビル
東京都港区六本木2-4-5
坪数:143.7 坪
坪単価:22,000 円(坪)
-
第5横芝ビル
東京都港区西麻布2-13-15
坪数:113.61 坪
坪単価:16,020 円(坪)
-
スハラ六本木ビル
東京都港区六本木3-3-27
坪数:102.45 坪
坪単価:22,273 円(坪)