KT淡路町ビル(物件No:01585049)
KT淡路町ビルは、千代田区神田淡路町にある貸事務所物件で最寄り駅は地下鉄丸ノ内線淡路町駅、都営新宿線小川町駅、JR御茶ノ水駅です。1992年竣工で基準階が15坪の賃貸オフィスビルです。床はタイルカーペットとなっています。空調は個別空調です。エレベーターは1基あり、セキュリティは機械警備となっています。複数路線利用可能で交通アクセスの良い千代田区神田淡路町の貸事務所です。
-
物件情報
-
設備情報
- トイレ
- -
- 床
- -
- 空調
- -
- セキュリティ
- 有
- 駐車場
- 無
- 会議室
- -
- エレベーター
- 1基
- 天井高
- -
-
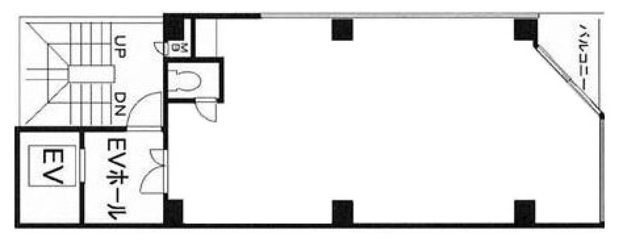
間取り図
-
近隣相場情報
神田淡路町1丁目(20坪以下)の相場
15750 円 (坪)
※ビルサク調べ
周辺施設情報
| コンビニ |
セブンイレブン/神田万世橋南/300m(徒歩4分) ファミリーマート/神田駿河台三丁目店/350m(徒歩5分) |
|---|---|
| 郵便局/銀行 |
セブン銀行/都営地下鉄 新宿線 小川町駅/[営業時間]5:00~24:00 [備考]1 台/270m(徒歩4分) ろうきん/ATM 中央労働金庫 連合会館/ATM/[営業時間]8:00~21:00 [休業日]日曜・祝日/200m(徒歩2分) |
| 飲食店 |
酒処まなゆめ/250m(徒歩3分) 舎鈴 御茶ノ水ソラシティ店/11時00分~23時00分/400m(徒歩5分) |
| カフェ |
スターバックス/淡路町駅前店/[営業時間]月~金:7:00~22:00 土:8:00~22:00 日祝:8:00~21:00 ※臨時営業時間のお知らせ 下記の日程は臨時の営業時間となります。2021年3月13日~2021年3月14日 営業時間:8:00~20:00 2021年3月15日~2021年3月19日 営業時間:7:00~20:00 2021年3月20日~2021年3月21日 営業時間:8:00~20:00 [休業日]不/120m(徒歩2分) ショパン/8時00分~21時00分/260m(徒歩3分) |
| コインパーキング |
三井のリパーク/神田小川町1丁目第3 [料金] 全日 08:00~22:00 15分/400円 全日 22:00~08:00 60分/100円 [台数]2 セイワパーキング/神田小川町第1 [料金] 全日 終日 15分400円 [最大料金] 全日 3時間 最大1800円 全日 24時間 最大3200円 [台数]11 |
周辺地図
KT淡路町ビルは、千代田区神田淡路町にある貸事務所物件で最寄り駅は地下鉄丸ノ内線淡路町駅、都営新宿線小川町駅、JR御茶ノ水駅です。1992年竣工で基準階が15坪の賃貸オフィスビルです。床はタイルカーペットとなっています。空調は個別空調です。エレベーターは1基あり、セキュリティは機械警備となっています。複数路線利用可能で交通アクセスの良い千代田区神田淡路町の貸事務所です。
全フロア情報
更新日:2025年9月18日
| 階 | 面積 | 賃料 | 共益費 | 敷金 | 入居日 | お問合せ | お気に入り | |
|---|---|---|---|---|---|---|---|---|
| 2F |
15.98 坪 52.83 ㎡ |
※現在空室情報はございません |
※現在空室情報は 確認する |
|||||
| 3F |
18.2 坪 60.17 ㎡ |
※現在空室情報はございません |
※現在空室情報は 確認する |
|||||
| 4F |
15.98 坪 52.83 ㎡ |
※現在空室情報はございません |
※現在空室情報は 確認する |
|||||
| 5F |
15.98 坪 52.83 ㎡ |
※現在空室情報はございません |
※現在空室情報は 確認する |
|||||
| 6F |
15.98 坪 52.83 ㎡ |
※現在空室情報はございません |
※現在空室情報は 確認する |
|||||
| 7F |
7.87 坪 26.02 ㎡ |
※現在空室情報はございません |
※現在空室情報は 確認する |
|||||
お問い合わせ
似た条件の物件はこちら
-
大手町ゲートビルディング
東京都千代田区内神田1-31-11
坪数:11.65 坪
坪単価:77,253 円(坪)
-
アーバンスクエア神田ビル
東京都千代田区神田須田町1-18
坪数:14.18 坪
坪単価:17,000 円(坪)
-
第二櫻井ビル
東京都千代田区神田佐久間町3-5
坪数:17.24 坪
坪単価:11,996 円(坪)
-
矢板ビル
東京都千代田区内神田2-6-2
坪数:12.3 坪
坪単価:11,000 円(坪)
-
大丸アネックス
東京都千代田区内神田1-11-6
坪数:12.65 坪
坪単価:16,000 円(坪)
-
神田乗物町ビル
東京都千代田区神田北乗物町2
坪数:10.1 坪
坪単価:12,000 円(坪)
-
パレヤソジマ
東京都千代田区神田司町2-15-1
坪数:12.03 坪
坪単価:13,300 円(坪)
-
アクタス岩本町
東京都千代田区岩本町1-14-5
坪数:15.63 坪
坪単価:12,000 円(坪)
-
藤和内神田ビル
東京都千代田区内神田2-4-4
坪数:18.49 坪
坪単価:16,500 円(坪)
-
昭和ビル
東京都千代田区神田和泉町1-2-5
坪数:16.5 坪
坪単価:11,000 円(坪)
関連エリアから探す
- 内神田
- 神田淡路町
- 神田小川町
- 神田鍛冶町
- 神田須田町
- 神田駿河台
- 神田多町
- 神田司町
- 神田錦町
- 神田美土代町
- 岩本町
- 鍛冶町
- 神田岩本町
- 神田北乗物町
- 神田紺屋町
- 神田富山町
- 神田西福田町
- 神田東松下町
- 神田東紺屋町
- 神田美倉町
- 東神田
- 神田相生町
- 神田和泉町
- 神田佐久間町
- 神田佐久間河岸
- 神田練塀町
- 神田花岡町
- 神田松永町
- 外神田
- 神田平河町