グレース和平(物件No:01481008)
グレース和平は、千代田区九段南にある貸事務所物件です。最寄駅は、東京メトロ有楽町線、南北線、都営新宿線、JR市ヶ谷駅、東京メトロ半蔵門線九段下駅です。1986年竣工で、基準階が22.45坪の賃貸オフィスビルです。床はOAフロアとなっています。トイレは室内で、空調は個別空調です。エレベーターは1基あり、セキュリティは機械警備となっています。複数路線利用可能で交通アクセスの良い、千代田区九段南の貸事務所です。
-
物件情報
-
設備情報
- トイレ
- 室内男女共用
- 床
- フリーアクセス
- 空調
- 個別空調
- セキュリティ
- 有
- 駐車場
- -
- 会議室
- -
- エレベーター
- 1基
- 天井高
- -
-
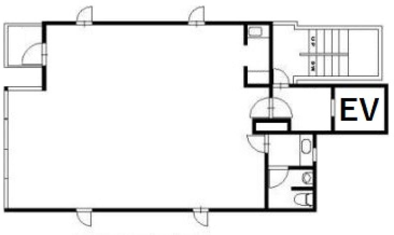
間取り図
-
近隣相場情報
九段南3丁目(20~30坪)の相場
16515 円 (坪)
※ビルサク調べ
周辺施設情報
| コンビニ |
セブンイレブン/市ヶ谷駅前/750m(徒歩9分) ファミリーマート/九段南二丁目店/300m(徒歩4分) |
|---|---|
| 郵便局/銀行 |
みずほ銀行/ATM マルエツプチ一番町店出張所/[営業時間] [ATM]平日 7:00~25:00 土曜日 7:00~22:00 日曜日 8:00~25:00 祝日・振替休日 曜日に準ずる 備考 通帳繰越機 設置なし/750m(徒歩9分) 三菱UFJ銀行/ATM 法政大学/[営業時間] [ATM]平日 8:00~22:00 土曜日 9:00~17:00 日・祝日 -/450m(徒歩5分) |
| 飲食店 |
MASAK MASAK(マサ マサ)/11時00分~19時00分/ スワン&ライオン/11時00分~17時30分/ |
| カフェ |
ドトール/市ヶ谷駅前店/[営業時間]※営業時間を短縮しております。(~18:00)■通常営業時間 平日 7:00~20:00 土曜 8:00~20:00 日祝 8:00~18:00 [備考]総席数:40(禁煙席:40 喫煙席:0)/喫煙ブース(紙・加熱)/550m(徒歩7分) カフェドクリエ/市ヶ谷東/[営業時間][平 日] 07:00~21:00 [土日祝] (土)08:00~20:00 (日/祝)08:00~20:00/350m(徒歩5分) |
| コインパーキング |
タイムズ/三番町第5 [料金] [月~土]通常料金 / 8:00~0:00 20分 440円 0:00~8:00 30分 110円 [日・祝]通常料金 / 8:00~0:00 20分 440円 0:00~8:00 30分 110円 [最大料金] [月~土]当日1日最大料金4070円(24時迄) [日・祝]当日1日最大料金1650円(24時迄) [台数]37 三井のリパーク/九段南3丁目第2 [料金] 全日 08:00~22:00 15分/300円 全日 22:00~08:00 60分/100円 [最大料金] 【全日】最大料金入庫後4時間以内2,400円 [台数]2 |
周辺地図
グレース和平は、千代田区九段南にある貸事務所物件です。最寄駅は、東京メトロ有楽町線、南北線、都営新宿線、JR市ヶ谷駅、東京メトロ半蔵門線九段下駅です。1986年竣工で、基準階が22.45坪の賃貸オフィスビルです。床はOAフロアとなっています。トイレは室内で、空調は個別空調です。エレベーターは1基あり、セキュリティは機械警備となっています。複数路線利用可能で交通アクセスの良い、千代田区九段南の貸事務所です。
全フロア情報
更新日:2025年9月18日
| 階 | 面積 | 賃料 | 共益費 | 敷金 | 入居日 | お問合せ | お気に入り | |
|---|---|---|---|---|---|---|---|---|
| 2F |
25.01 坪 82.68 ㎡ |
※現在空室情報はございません |
※現在空室情報は 確認する |
|||||
| 3F |
25.01 坪 82.68 ㎡ |
※現在空室情報はございません |
※現在空室情報は 確認する |
|||||
お問い合わせ
似た条件の物件はこちら
-
ビュロー平河町
東京都千代田区平河町1-7-16
坪数:15.16 坪
坪単価:19,789 円(坪)
-
第2DMJビル
東京都千代田区九段南3-5-9
坪数:24.41 坪
坪単価:20,000 円(坪)
-
センダビル
東京都千代田区麹町3-7-9
坪数:19 坪
坪単価:9,000 円(坪)
-
jeVビル
東京都千代田区平河町2-16-16
坪数:18.06 坪
坪単価:12,735 円(坪)
-
隼東幸ビル
東京都千代田区隼町3-19
坪数:21.15 坪
坪単価:14,000 円(坪)
-
Shirasuna bldg.NAGATACHO
東京都千代田区平河町2-10-4
坪数:28.45 坪
坪単価:22,048 円(坪)
-
桔梗ライオンズマンション平河町
東京都千代田区平河町1-8-8
坪数:17.48 坪
坪単価:9,725 円(坪)
-
一番町村上ビル
東京都千代田区一番町9-7
坪数:32.84 坪
坪単価:12,000 円(坪)
-
プリンス通ビル
東京都千代田区紀尾井町3-33
坪数:17.48 坪
坪単価:15,446 円(坪)
-
東プレビル
東京都千代田区五番町4-2
坪数:34 坪
坪単価:15,000 円(坪)