京橋エー・エスビルディング(物件No:01288172)
京橋エー・エスビルディングは東京都中央区京橋にある地下1階、地上7階建ての賃貸事務所です。最寄駅は東京メトロ銀座線の京橋駅から徒歩2分、都営浅草線の宝町駅から徒歩1分です。1964年2月竣工の基準階面積が37.5坪の鉄骨鉄筋コンクリート造です。設備としてはエレベーターが1基あり、機械警備もあります。トイレは男女別です。空調は個別空調です。床仕様はタイルカーペットです。最寄駅から駅近で便利な東京都中央区京橋の賃貸オフィスです。
| 階 | 面積 | 賃料 | 共益費 | 敷金 | 入居日 | お問合せ | お気に入り |
|---|---|---|---|---|---|---|---|
| 5F |
29.25 坪 96.69 ㎡ |
438,750 円 15,000 円(坪) |
58,500 円 2,000 円(坪) |
4,387,500 円 10 ヶ月 |
2026/04/01 |
|
|
| 階 | 面積 | 賃料 | 共益費 | 敷金 | 入居日 | お問合せ | お気に入り |
|---|---|---|---|---|---|---|---|
| 5F |
29.25 坪 96.69 ㎡ |
438,750 円 15,000 円(坪) |
58,500 円 2,000 円(坪) |
4,387,500 円 10 ヶ月 |
2026/04/01 |
|
|
-
物件情報
-
設備情報
- トイレ
- 室外男女別
- 床
- タイルカーペット
- 空調
- 個別空調
- セキュリティ
- 有
- 駐車場
- -
- 会議室
- -
- エレベーター
- 1基
- 天井高
- -
-
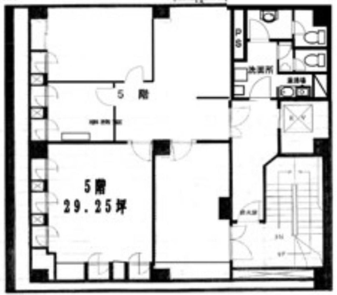
間取り図
-
近隣相場情報
京橋2丁目(20~30坪)の相場
22729 円 (坪)
※ビルサク調べ
周辺施設情報
| コンビニ |
ファミリーマート/京橋二丁目店/85m(徒歩1分) ファミリーマート/宝町店/31m(徒歩1分) |
|---|---|
| 郵便局/銀行 |
イーネット/ファミリーマート宝町/[営業時間]0:00~24:00/31m(徒歩1分) 三井住友銀行/ATM 京橋宝町出張所/[営業時間]平日 7:00~24:00 土曜 7:00~24:00 日曜 7:00~21:00/140m(徒歩1分) |
| 飲食店 |
本等鮨 海馬 京橋店/ 11時00分~23時00分/21m(徒歩1分) そばよし 京橋店/7時30分~20時00分/21m(徒歩1分) |
| カフェ |
プロント/読売八重洲ビル店/[営業時間]平日:カフェ 8:00~19:00 /71m(徒歩1分) 上島珈琲店/京橋2丁目店/[営業時間]平日 7:00~21:00 / 土日祝 8:00~19:00/160m(徒歩1分) |
| コインパーキング |
三井のリパーク/京橋1丁目第4 [料金] [料金]平日 00:00~24:00 10分/400円、日祝 00:00~24:00 10分/400円 [料金]日祝 00:00~24:00 10分/400円 [最大料金] 最大料金 【日祝】最大料金入庫当日24時まで2000円 [台数]3 公社駐車場/東京都 宝町 [料金] 30分200円 入庫後12時間まで最大2,400円 [最大料金] ワンデ-パス 3,000円/購入当日 [台数]190台 |
周辺地図
京橋エー・エスビルディングは東京都中央区京橋にある地下1階、地上7階建ての賃貸事務所です。最寄駅は東京メトロ銀座線の京橋駅から徒歩2分、都営浅草線の宝町駅から徒歩1分です。1964年2月竣工の基準階面積が37.5坪の鉄骨鉄筋コンクリート造です。設備としてはエレベーターが1基あり、機械警備もあります。トイレは男女別です。空調は個別空調です。床仕様はタイルカーペットです。最寄駅から駅近で便利な東京都中央区京橋の賃貸オフィスです。
全フロア情報
更新日:2025年11月10日
| 階 | 面積 | 賃料 | 共益費 | 敷金 | 入居日 | お問合せ | お気に入り | |
|---|---|---|---|---|---|---|---|---|
| B1F |
11 坪 36.36 ㎡ |
※現在空室情報はございません |
※現在空室情報は 確認する |
|||||
| 2F |
37.5 坪 123.97 ㎡ |
※現在空室情報はございません |
※現在空室情報は 確認する |
|||||
|
3F
(A区画) |
17.26 坪 57.06 ㎡ |
※現在空室情報はございません |
※現在空室情報は 確認する |
|||||
| 5F |
29.25 坪 96.69 ㎡ |
438,750 円 15,000 円(坪) |
58,500 円 2,000 円(坪) |
4,387,500 円 10 ヶ月 |
2026/04/01 |
|
|
|
お問い合わせ
似た条件の物件はこちら
-
新々会館
東京都中央区日本橋3-14-1
坪数:21.35 坪
坪単価:15,000 円(坪)
-
日本橋グレイスビル
東京都中央区日本橋2-12-9
坪数:31.2 坪
坪単価:17,000 円(坪)
-
朝日第3ビル
東京都中央区日本橋本石町4-4-12
坪数:20 坪
坪単価:14,300 円(坪)
-
イーストビル
東京都中央区京橋2-6-13
坪数:22 坪
坪単価:15,000 円(坪)
-
日本橋秋山ビル
東京都中央区日本橋本町4-1-12
坪数:26.33 坪
坪単価:15,002 円(坪)
-
讃金ビル
東京都中央区日本橋本町1-7-10
坪数:26.42 坪
坪単価:13,000 円(坪)
-
山三ビル
東京都中央区日本橋2-6-13
坪数:29.58 坪
坪単価:11,500 円(坪)
-
日本橋さくらビル
東京都中央区日本橋3-1-4
坪数:22.12 坪
坪単価:24,000 円(坪)
-
吉川ビル
東京都中央区日本橋本石町4-5-15
坪数:23 坪
坪単価:14,500 円(坪)