カールビル(物件No:01282119)
カールビルは台東区蔵前にある地上9階建ての賃貸事務所です。最寄駅は都営浅草線の蔵前駅から徒歩1分、都営大江戸線の蔵前駅から徒歩4分です。1979年竣工の基準階面積が55.75坪の鉄筋コンクリート造です。設備としては、エレベーターが1基あります。警備は機械警備です。トイレは男女別です。空調は個別空調です。耐震設計となっている、最寄駅から近くて便利な台東区蔵前の賃貸オフィスです。
-
物件情報
-
設備情報
- トイレ
- 室内男女別
- 床
- フリーアクセス相談
- 空調
- 個別空調
- セキュリティ
- 有
- 駐車場
- -
- 会議室
- -
- エレベーター
- 1基
- 天井高
- -
-
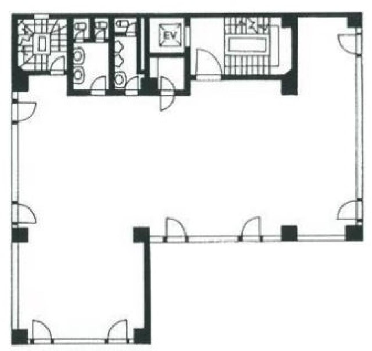
間取り図
-
近隣相場情報
蔵前3丁目(50~100坪)の相場
16000 円 (坪)
※ビルサク調べ
周辺地図
カールビルは台東区蔵前にある地上9階建ての賃貸事務所です。最寄駅は都営浅草線の蔵前駅から徒歩1分、都営大江戸線の蔵前駅から徒歩4分です。1979年竣工の基準階面積が55.75坪の鉄筋コンクリート造です。設備としては、エレベーターが1基あります。警備は機械警備です。トイレは男女別です。空調は個別空調です。耐震設計となっている、最寄駅から近くて便利な台東区蔵前の賃貸オフィスです。
全フロア情報
更新日:2025年10月29日
| 階 | 面積 | 賃料 | 共益費 | 敷金 | 入居日 | お問合せ | お気に入り | |
|---|---|---|---|---|---|---|---|---|
| 2F |
55.75 坪 184.3 ㎡ |
※現在空室情報はございません |
※現在空室情報は 確認する |
|||||
| 3F |
55.75 坪 184.3 ㎡ |
※現在空室情報はございません |
※現在空室情報は 確認する |
|||||
| 5F |
29.07 坪 96.1 ㎡ |
※現在空室情報はございません |
※現在空室情報は 確認する |
|||||
| 7F |
55.75 坪 184.3 ㎡ |
※現在空室情報はございません |
※現在空室情報は 確認する |
|||||
| 8F |
55.75 坪 184.3 ㎡ |
※現在空室情報はございません |
※現在空室情報は 確認する |
|||||
お問い合わせ
似た条件の物件はこちら
-
Biz-ark浅草橋駅前
東京都台東区浅草橋1-9-13
坪数:48.7 坪
坪単価:23,000 円(坪)
-
岩崎ビル
東京都台東区浅草橋1-7-2
坪数:47.32 坪
坪単価:14,000 円(坪)
-
AUSPICE浅草花川戸
東京都台東区花川戸1-9-1
坪数:51.05 坪
坪単価:20,000 円(坪)
-
浅草橋ミハマビル
東京都台東区浅草橋3-20-15
坪数:59.01 坪
坪単価:12,000 円(坪)
-
コスモス浅草橋酒井ビル
東京都台東区浅草橋1-32-6
坪数:48.93 坪
坪単価:16,000 円(坪)
-
サニーハイツ元浅草
東京都台東区元浅草2-4-6
坪数:40.7 坪
坪単価:11,057 円(坪)
-
フォーラム浅草田原町
東京都台東区寿2-10-16
坪数:53.28 坪
坪単価:11,505 円(坪)
-
小嶋ビル
東京都台東区柳橋1-3-7
坪数:46.32 坪
坪単価:10,794 円(坪)
-
久月ビル
東京都台東区柳橋1-20-4
坪数:52.27 坪
坪単価:10,000 円(坪)
-
蔵前酒井ビル
東京都台東区蔵前3-15-7
坪数:68.79 坪
坪単価:16,000 円(坪)